
|
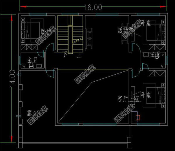
如今的農村,再也不是以前灰墻土瓦的舊模樣。現在空氣清新房子漂亮別致,也是美麗的風景線。生活水平好了,有房有車是生活的標配。那么蓋房時安排車庫就很有必要了,出行方便保護車子。今天小編帶來三款農村自建房帶車庫設計,打算建房的朋友可別錯過。 第一款:高端洋氣二層小樓房別墅設計圖以及戶型圖,戶型占地面積不大不小![]() ![]() ![]() 功能齊全,各空間尺寸適宜,一層設有車庫,一進門就是客廳,增加室內空間立體感。二樓有大露臺設計,延伸空間,同時能夠晾曬東西,也可以賞景、度過休閑的時間。 占地面積:16.6m*13.5m,193平方米左右; 建筑層高:二層; 建筑高度:9.4米(含屋頂); 設計功能: 一層戶型:客廳、廚房、餐廳、柴火灶、臥室(帶衛生間)、臥室x2、洗衣間、衛生間、車庫; 二層戶型:客廳上空、客廳、健身房、書房、臥室(帶衛生間)、衣帽間、臥室、衛生間、露臺; ![]() ![]() 第二款:鄉村帶車庫的二層四間別墅設計圖以及戶型圖,貼心設計,合理布局![]() 力求打造最完美的家。別墅外觀現代時尚,簡約雅致,整體感覺明朗歡快。周末歸家,放下城里的喧囂與忙碌的身心,帶給居住者干凈、素凈的身心感受。內部帶車庫、獨立廚房。白色的面磚搭配褐色涂料恰到好處;斜屋頂蓋上灰色屋面瓦,增添一抹亮點;大門前配上方形羅馬柱,十分大氣。開放式車庫,進門設有玄關,作為進出別墅的公共過渡區域,與客廳相連通,空間有余,獨立廚房與餐廳相連,用推拉門隔開,提供無油煙的良好就餐環境;二層小客廳設置在樓層中心位置,與陽臺直接相連,作為家庭活動的公共區域,必不可缺。 占地面積:14.76m*10.06m,139.85平方米左右; 建筑層高:二層; 建筑高度:9米(含屋頂); 設計功能: 一層戶型:玄關、客廳、廚房兼柴火房、餐廳、洗衣房、臥室x2、衛生間、車庫; 二層戶型:小客廳、儲藏室、臥室x3、陽臺、露臺 ![]() ![]() 第三款:農村二層半現代別墅設計圖以及戶型圖,帶開放車庫,現代風格![]() 時尚漂亮,現代別墅設計是一大時興設計風格,成為現代年輕人的最愛。什么是現代風格? 現代風格不管房子有多大,看起來都很寬敞。 不需要繁雜的裝飾。立面底部以文化石展現質感,配合上方白色真石漆和藍色屋頂達到顏色的自然過渡,讓建筑整體性和連貫性更好。同時,這種配色較為耐臟,方便日常打理和保養。一樓臥室在一角,作為老人房非常安靜宜居車庫劃分出停車休閑區和入戶區,非常的方便。如果您家里剛好院子地方大,不需要車庫,那么其實可以把車庫改為一間臥室。 占地面積:16m*14m,174.78平方米左右; 建筑層高:三層; 建筑高度:12.66米(含屋頂); 設計功能: 一層戶型:客廳、餐廳、廚房、臥室(帶衛生間)、書房、車庫、衛生間;帶地下酒窖; 二層戶型:客廳上空、活動室、臥室(帶衛生間)X2、臥室、露臺; 三層戶型:健身區、書房、衛生間、露臺; ![]() ![]() ![]() 以上就是小編推薦的農村帶車庫的錯層農村自建房設計圖以及戶型圖,你家建幾層?評論區告訴我。
圖紙之家-專注農村別墅/自建房設計18年,集合國內200余位經驗豐富的設計師,被評為口碑最好的農村建筑設計公司! |

17X12米三層雙拼別墅自建房設計圖,歐式風格,戶型方正
占地:190平方米
歐式豪華三層別墅設計圖,占地面積170平米,高端大氣帶露臺
占地:170平方米
新農村自建二層樓房戶型設計圖,簡單大氣,外觀漂亮精致
占地:多種戶型
面寬12米新中式三層別墅設計圖,回家建房就選它,全家人都愛的
占地:180平方米
農村120方三層自建房子圖,好看又不貴的三層農村別墅
占地:120平方米
別致漂亮二層別墅設計圖紙,占地160平米左右,精致的外觀,讓人
占地:160平方米
帶商鋪挑高的三層別墅房屋設計圖,商鋪挑高,層高比較高
占地:118平方米
小青瓦一層中式小院三合院設計施工圖,白墻青瓦古色古香
占地:155.3平方米
四開間一層自建房設計圖,四臥二廳+棋牌室+書房
占地:181.29平方米
農村15萬元二層小樓圖,占地100平米左右,簡單實用,戶型合理
占地:100平方米
三層歐式自建房別墅設計方案,11x11米洋氣實用,飽受大家好評
占地:127平方米
農村中式兩層雙拼別墅房屋設計圖,含效果圖片
占地:200平方米
農村最好看兩層小樓圖及全套CAD施工圖紙,新中式風格,簡潔大氣
占地:150平方米
二層氣質現代小洋樓設計圖,堪比城市別墅,全村最美沒商量
占地:121.07
16米X12米四開間二層別墅設計圖,造型美觀經濟實用
占地:198平方米
一層平房小面積雙拼房屋住宅設計圖,造價低,面積適中
占地:245.7平方米
農村二層帶閣樓四間別墅設計圖,外觀美觀,戶型實用
占地:175平方米
農村三層復式樓房住宅設計圖,私人別墅設計
占地:165平方米
帶車庫徽派風格三層別墅房屋設計圖,新農村住宅設計推薦
占地:140平方米
好看實用農村2開間二層別墅設計圖,主體19萬
占地:117.36平方米
推薦:10套新農村自建房設計圖,2026年最新設計
閱讀次數:4825737次
100套鄉村別墅圖片大全,2026年最新設計
閱讀次數:2492203次
6款農村蓋一層平房的設計圖,10萬元就能建起來
閱讀次數:1852637次
這11個一層農村自建房別墅火爆了朋友圈!我最喜歡戶型十!你呢
閱讀次數:750268次
農村6萬元建一層小別墅圖,你敢相信嗎
閱讀次數:567686次
農村5萬塊就能自建房,6套普通房子設計圖分享,你沒看錯!
閱讀次數:419410次
8套農村漂亮三間平房圖片,非常適合在農村修建!
閱讀次數:411197次
農村自建房化糞池怎么做?附方案及施工過程
閱讀次數:391783次
農村一層三間平房設計圖,告別土氣養老房,讓人忍不住點贊
閱讀次數:350581次
新農村二層樓房圖片造價12萬,挑一套回家建房吧!
閱讀次數:349126次
