
|
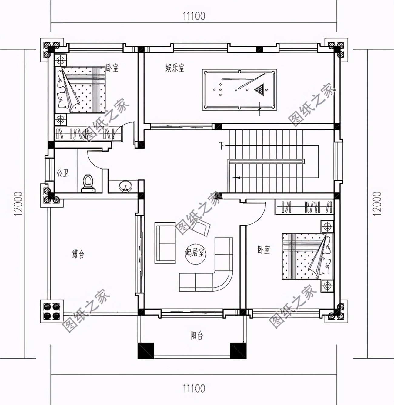
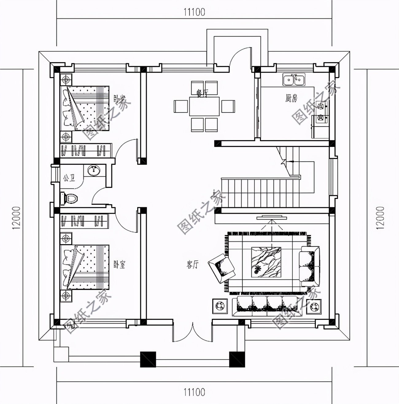
在農村里蓋房不像從前那樣隨便,一頓飯一包煙的請個包工頭來家里拿紙筆,看看誰家的房子好看畫個草圖拷貝一份就開始建。現在大家的生活水平高了,蓋房的要求自然也提高了。都很講究細節,希望自家房子別具一格又漂亮時尚。今天小編分享三款農村二層別墅設計,在農村十分受歡迎。 第一款:二層簡歐風格別墅設計圖以及戶型圖,簡約主義與傳統歐式的碰撞![]() 別墅低調奢華有內涵,它很好地柔和了簡約主義的簡潔、利落和傳統歐式風格的精致,讓整個外觀變得典雅、大氣、更貼近自然。一層動靜分離,樓梯隔開兩個區域,使其互不干擾。衛生間緊挨房間,老人起宿方便。其他的也沒什么好說的,應有盡有,滿足日常生活。二樓四臥兩衛,書房用來辦公學習,休閑室作為休閑娛樂 占地面積:11.45m*11.6m,132.4平方米左右; 建筑層高:二層; 建筑高度:9.695米(含屋頂); 設計功能: 一層戶型:客廳、娛樂室、餐廳、廚房、臥室(帶衛生間)、衛生間; 二層戶型:客廳、休閑室、臥室(帶衛生間)、臥室x3、衛生間、陽臺 ![]() ![]() 第二款:農村兩層歐式別墅設計圖以及戶型圖,外觀簡約優雅![]() ![]() ![]() 采光好,造價低,美觀精致,內部布局舒適合理,最主要是面積和尺寸適合大多數自建房尺寸,很良心的一款設計,自建房不錯的選擇。二樓的露臺是增加用戶的空間利用率,從內部結構看,該戶型功能設計合理,布局緊湊,實用性較強,非常適合農村自建房 占地面積:11.1m*12m,125平方米左右; 建筑層高:二層; 建筑高度:9.95米(含屋頂); 設計功能: 一層戶型:客廳、廚房、餐廳、臥室x2、衛生間; 二層戶型:起居室、臥室x2、衛生間、娛樂室、陽臺、露臺 ![]() ![]() 第三款:農村兩層新中式別墅設計圖以及戶型圖,外觀對稱設計![]() 21萬左右,一層老人房與衛生間相鄰,方便老人使用,房間窗戶也大,采光充足,適合年紀大的人居住,兩層共3間臥室,數量也能夠滿足農村生活需要,陽臺可供晾曬休閑之用,非常便利。 占地面積:10.8m*11.8m,108平方米左右; 建筑層高:二層; 建筑高度:9.67米(含屋頂); 設計功能: 一層戶型:客廳、廚房、餐廳、臥室、衛生間; 二層戶型:起居室、客廳、臥室x3、衛生間、陽臺; ![]() ![]() 以上就是小編推薦的農村11乘12米二層別墅設計圖以及戶型圖,喜歡給家里人看看!
圖紙之家-專注農村別墅/自建房設計18年,集合國內200余位經驗豐富的設計師,被評為口碑最好的農村建筑設計公司! |

30萬農村小別墅設計圖片,30萬別墅設計戶型推薦
占地:130平方米
農村三層帶地下室小樓房設計圖,客廳中空,帶書房,旋轉樓梯
占地:130平方米
三層奢華歐式別墅圖片及全套設計圖,帶地下室和車庫
占地:208平方米左右
大氣農村一層自建別墅方案,絕對讓人羨慕的“平房”
占地:158.39平方米
五間兩層農村自建房設計圖,大門居中真氣派,空間寬敞生活質量
占地:219.94平方米
最美二層樓別墅圖片大全及全套建筑設計圖紙,20萬左右
占地:140平方米
農村18萬元二層小樓圖,帶開放式車庫
占地:110平方米
簡約實用農村自建房戶型圖,美觀經濟又通透,南北通透住得爽!
占地:160.6平方米
帶地下室+挑空客廳,農村三層洋樓別墅誰家圖在
占地:97.74平方米
240平方米新農村漂亮的兄弟雙拼別墅設計圖紙,單戶120平
占地:239平方米
農村實用三層樓房圖片,占地140平米左右,客廳中空
占地:140平方米
面寬13米二層鄉村自建別墅戶型圖,帶堂屋和露臺
占地:135.47平方米
小戶型兄弟雙拼別墅房屋設計圖,帶外觀效果圖
占地:150平方米
農村三層中式仿古別墅設計圖紙,中國風自建房戶型
占地:158.64平方米
適合農村建的二層別墅設計圖,簡約美觀,讓人心動不已
占地:153平方米
一眼就驚艷的二層新中式別墅設計圖,大氣做夢都想回家蓋棟!
占地:128.58平方米
農村160平四間兩層樓房設計圖,全套施工圖+外觀效果圖片
占地:160平方米
110平方米二層自建小別墅設計CAD施工圖紙帶效果圖,12x13米
占地:110平方米
110平方米農村三層復式房屋施工圖,通透時尚,低調又奢華
占地:107.98平方米
時尚漂亮的二層小洋樓設計圖,設計師建房都選這個方案
占地:149.27平方米
推薦:10套新農村自建房設計圖,2026年最新設計
閱讀次數:4825737次
100套鄉村別墅圖片大全,2026年最新設計
閱讀次數:2492203次
6款農村蓋一層平房的設計圖,10萬元就能建起來
閱讀次數:1852637次
這11個一層農村自建房別墅火爆了朋友圈!我最喜歡戶型十!你呢
閱讀次數:750268次
農村6萬元建一層小別墅圖,你敢相信嗎
閱讀次數:567686次
農村5萬塊就能自建房,6套普通房子設計圖分享,你沒看錯!
閱讀次數:419410次
8套農村漂亮三間平房圖片,非常適合在農村修建!
閱讀次數:411197次
農村自建房化糞池怎么做?附方案及施工過程
閱讀次數:391783次
農村一層三間平房設計圖,告別土氣養老房,讓人忍不住點贊
閱讀次數:350581次
新農村二層樓房圖片造價12萬,挑一套回家建房吧!
閱讀次數:349126次
