
|
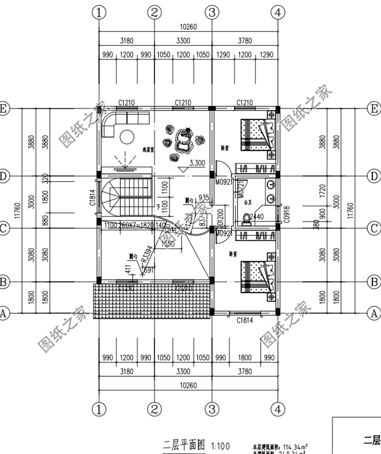
對于農村一般家庭來說,建一個二層的樓房足夠了,再把外觀設計的好看一些,室內布局合理了,就是一棟很不錯的房子了,基本上滿足日常生活需求。今天推薦三款開間10米二層樓設計圖,外觀好看大氣,室內布局也合理,主要是造價不高,一般家庭都能建的起,喜歡的朋友來一棟。 第一款:農村二層別墅設計圖,占地130平米左右,主體造價15萬圖紙介紹:這款兩層別墅占地130平米左右,主體造價15萬,外觀好看大方,讓人喜歡;室內布局合理,共有四間臥室,適合農村建造。 占地面積:10.26m*11.76m,130平方米左右; 建筑層高:二層; 建筑高度:6.7米(含屋頂); 設計功能: 一層戶型:客廳、餐廳、廚房、衛生間、主臥×2、門廊; 二層戶型:客廳上空、起居室、臥室x2、衛生間; ![]() ![]() ![]() ![]() 第二款:農村二層樓房設計圖,占地98平米,戶型小巧精致圖紙介紹:這款二層占地面積100平以內,戶型雖然小但是很精致又很溫馨,造價經濟,施工難度不大,外觀很精致,入戶門廳很大,十分大氣。 占地面積:10.50m*8.90m,98平方米左右; 建筑層高:二層; 建筑高度:9.29米(含屋頂); 設計功能: 一層戶型:客廳、神位、餐廳、廚房 、臥室、衛生間; 二層戶型:娛樂區、書房、臥室x3、衛生間、陽臺; ![]() ![]() ![]() ![]() 第三款:農村二層別墅設計圖,占地126平米左右,客廳中空設計圖紙介紹:這款二層樓房占地126平米左右,歐式風格,客廳中空設計,外觀好看,造價低,住起來溫馨舒適。 占地面積:10.7m*13.06m,126平方米左右; 建筑層高:二層; 建筑高度:10.05米(含屋頂); 設計功能: 一層戶型:客廳、餐廳、廚房、衛生間、主臥(帶衛生間)、臥室,儲藏間; 二層戶型:客廳上空、家庭室、主臥(帶衛生間)、臥室x2、開放式衣帽間、衛生間、陽臺; ![]() ![]() ![]() ![]() 這三款戶型蓋過得朋友都說值了,喜歡的話千萬不要錯過。
圖紙之家-專注農村別墅/自建房設計18年,集合國內200余位經驗豐富的設計師,被評為口碑最好的農村建筑設計公司! |

新農村中式二層樓房設計圖紙及效果圖,125,150,170三個戶型可行
占地:多種戶型
高端三層新中式農村別墅設計圖,仿合院布局,外觀霸氣
占地:133.64平方米
開間12米的三層簡歐別墅設計圖,農村建房布局實用住的舒服
占地:108.15平方米
農村三間三層豪宅設計圖,自建別墅推薦戶型,帶地下室
占地:170平方米
140平方米歐式三層別墅建筑設計圖紙,復式結構
占地:140平方米
一層5間歐式平房小洋樓建筑設計圖紙,大戶型一層別墅戶型
占地:216平方米
高顏值又實用的一層雙拼鄉村別墅設計圖,舒適度堪比豪宅
占地:217.3平方米
農村160平四間兩層樓房設計圖,全套施工圖+外觀效果圖片
占地:160平方米
農村三層帶露臺、帶車庫房屋設計圖,含外觀圖片
占地:155平方米
小型三層別墅cad建筑圖紙帶效果圖,帶屋頂露臺
占地:101平方米左右
最好看的農村三層樓房設計圖,占地113平米,小平米大格局
占地:110平方米
帶地下室的一層別墅設計圖,農村自建很實用
占地:192平方米
中國最好看的二層農村房子圖片及施工圖紙,20萬現代風格
占地:130平方米
三層兄弟雙拼別墅設計圖,外觀大氣漂亮,顏色搭配協調,一層為
占地:270平方米
鄉村兄弟小戶型雙拼一層房屋設計圖,雙拼別墅格局精煉,實用性
占地:160平方米
農村二層半帶露臺別墅圖片及設計圖,戶型方案比較經典
占地:123平方米
現代二層農村別墅全套設計圖,大旋轉露臺+超大中空客廳
占地:133平方米
歐式三層豪宅樓設計圖紙及外觀效果圖,占地180平左右
占地:177.82平方米
造價便宜的二層雙拼別墅設計圖,造型簡約大氣,進深10米
占地:SP23059
一層帶地下室雙拼別墅設計圖,理想鄉村生活的標配
占地:416平方米
推薦:10套新農村自建房設計圖,2026年最新設計
閱讀次數:4825737次
100套鄉村別墅圖片大全,2026年最新設計
閱讀次數:2492203次
6款農村蓋一層平房的設計圖,10萬元就能建起來
閱讀次數:1852637次
這11個一層農村自建房別墅火爆了朋友圈!我最喜歡戶型十!你呢
閱讀次數:750268次
農村6萬元建一層小別墅圖,你敢相信嗎
閱讀次數:567686次
農村5萬塊就能自建房,6套普通房子設計圖分享,你沒看錯!
閱讀次數:419410次
8套農村漂亮三間平房圖片,非常適合在農村修建!
閱讀次數:411197次
農村自建房化糞池怎么做?附方案及施工過程
閱讀次數:391783次
農村一層三間平房設計圖,告別土氣養老房,讓人忍不住點贊
閱讀次數:350581次
新農村二層樓房圖片造價12萬,挑一套回家建房吧!
閱讀次數:349126次
