
|
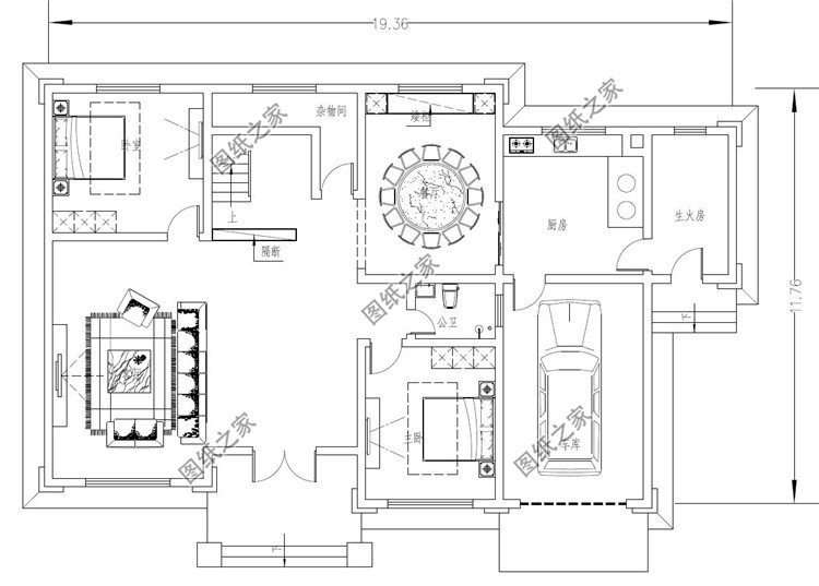
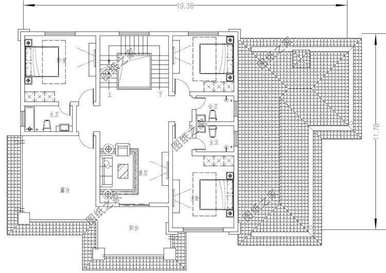
如果在農村建房子的話方方正正的戶型是比較受歡迎的,因為農村人都覺得戶型方正的房子沉穩大氣,而且外觀簡單。快來看看今天小編推薦的這三款超火的農村大戶型四開間戶型圖,外觀是大多數朋友喜歡的樣子,室內布局合理,住起來也十分舒適,喜歡的朋友不容錯過。 第一款:農村四開間二層別墅設計圖,占地170平米,帶露臺設計圖紙介紹:本戶型占地170平米,歐式風格大氣時尚,端莊典雅,別墅外墻主體用米黃色外墻磚裝飾,黃色外墻磚點綴,屋頂是橘紅色琉璃瓦,清新自然,十分賞心悅目。入戶是玄關,玄關與客廳兩者結合,使室內更加的寬敞氣派。 占地面積:17m*11.8m,170平方米左右; 建筑層高:二層; 建筑高度:10.011米(含屋頂); 設計功能: 一層戶型:玄關、神位、客廳、廚房、餐廳、臥室x3、衛生間x2; 二層戶型:客廳、臥室(帶衛生間)、臥室x4、衛生間、陽臺、露臺; ![]() ![]() ![]() 第二款:農村二層別墅設計圖,戶型大氣時尚,帶旋轉樓梯設計圖紙介紹:本戶型占地189平米,帶旋轉樓梯設計,簡歐風格大氣時尚,建在農村很合適。整體溫馨柔和,看著就給人家的感覺,一層門廊與二樓陽臺有機結合,立面造型更加連貫,設計感十足。入戶既是大客廳,接待客人以及自己生活都很方便,大落地窗使得別墅更有造型感,觀景效果也是極佳。二樓布置三間臥室,讓家中的每個成員都有各自的私享空間,大面窗采光效果好,居住舒適滿意,娛樂室室讓是家庭成員共同活動的空間,方便一家人聯絡感情。 占地面積:16.5m*11.6m,189.26平方米左右; 建筑層高:二層; 建筑高度:10.668米(含屋頂); 設計功能: 一層戶型:客廳、廚房、餐廳、土灶房、臥室x3、衛生間; 二層戶型:客廳上空、娛樂區域、臥室x3、衛生間、陽臺、露臺; ![]() ![]() ![]() 第三款:農村二層別墅設計圖,占地202平米,帶柴火房和車庫設計圖紙介紹:本戶型占地202平米左右,帶柴火房(配房)和車庫設計,外觀褐色面磚點綴暖黃色外墻面磚,古樸大氣。多窗的設計利于室內通風,保證采光。灰色坡屋利于排水散熱,提升整體質感。一層大廳寬敞透亮,土灶房與室內廚房分開,干凈衛生。土灶房和后門可以通向后院,適合農村的生活需求。二層三個臥室,一個休息廳,一個露臺,一個陽臺。功能布置齊全,滿足家中各人年齡段的人使用需求。 占地面積:19.36m*11.76m,202.99平方米左右; 建筑層高:二層; 建筑高度:9.425米(含屋頂); 設計功能: 一層戶型:客廳、廚房、餐廳、生火房、雜物間、車庫、臥室x2、衛生間; 二層戶型:客廳、臥室(帶衛生間)x2、臥室、衛生間、陽臺、露臺; ![]() ![]() ![]() 喜歡這三款戶型的朋友不要錯,不然后悔也來不及啦。
圖紙之家-專注農村別墅/自建房設計18年,集合國內200余位經驗豐富的設計師,被評為口碑最好的農村建筑設計公司! |

2026最新兄弟簡歐雙拼別墅設計圖紙,單戶130平米左右
占地:260平方米
一層共用,二層兄弟雙拼的二層別墅設計圖
占地:182.48平方米
占地200平農村二層自建房設計方案戶型,陽面臥室多
占地:208平方米
歐式三層農村別墅設計圖,占地130平方米自建房,低調又奢華鄉村
占地:129.8平方米
雅致的鄉下二層蓋別墅設計圖紙,造價35萬左右
占地:178平方米
極簡大氣二層別墅設計圖,15米面寬,簡約大氣,年輕人的最愛!
占地:150平方米
占地120平米清新脫俗簡單二層別墅設計方案,含效果圖
占地:119.01平方米
100平內的三層豪華歐式別墅房屋設計圖紙 ,簡歐風格
占地:94平方米左右
一二層都帶廚房餐廳的獨棟二層別墅設計圖,帶雙廚房
占地:143.68平方米
11x13米兩層半現代風別墅設計圖,??看過的都后悔建早了!
占地:126.02平方米
帶配房的農村三層別墅設計圖,全家享精致生活
占地:167.29平方米
農村10萬元一層小別墅設計圖,農村一層自建房屋設計圖
占地:多種戶型
新農村自建三層樓房設計圖紙,外觀簡單大方
占地:137平方米
四層農村別墅設計圖,一二層都有廚房和餐廳的戶型方案
占地:128.52平方米
自建一層三合院別墅圖,雅致鄉村居造價經濟,南北通透更宜居!
占地:176.36平方米
新中式農村三層樓房設計圖紙,全套圖紙設計,線條錯落有致
占地:130平方米
三層新農村別墅設計圖片及全套圖紙,外形對稱,帶露臺,這個戶
占地:160平方米
160平米三層別墅設計圖,功能齊全,外觀漂亮,適合和父母同住
占地:160平方米
一層平屋頂自建房圖,簡單而舒適,既省錢不說還不愁沒地曬糧食
占地:106平方米
新農村自建20萬二層小樓外觀圖及戶型圖,簡單大方,漂亮接地氣
占地:130平方米
推薦:10套新農村自建房設計圖,2026年最新設計
閱讀次數:4825737次
100套鄉村別墅圖片大全,2026年最新設計
閱讀次數:2492203次
6款農村蓋一層平房的設計圖,10萬元就能建起來
閱讀次數:1852637次
這11個一層農村自建房別墅火爆了朋友圈!我最喜歡戶型十!你呢
閱讀次數:750268次
農村6萬元建一層小別墅圖,你敢相信嗎
閱讀次數:567686次
農村5萬塊就能自建房,6套普通房子設計圖分享,你沒看錯!
閱讀次數:419410次
8套農村漂亮三間平房圖片,非常適合在農村修建!
閱讀次數:411197次
農村自建房化糞池怎么做?附方案及施工過程
閱讀次數:391783次
農村一層三間平房設計圖,告別土氣養老房,讓人忍不住點贊
閱讀次數:350581次
新農村二層樓房圖片造價12萬,挑一套回家建房吧!
閱讀次數:349126次
