
|
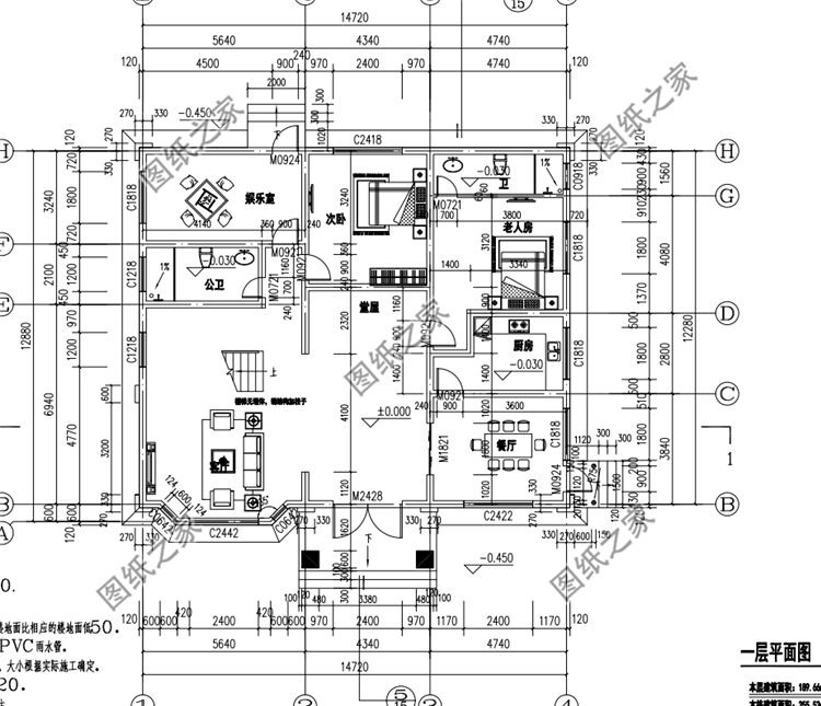
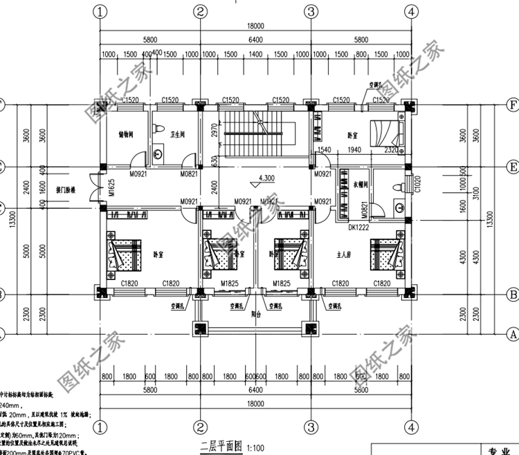
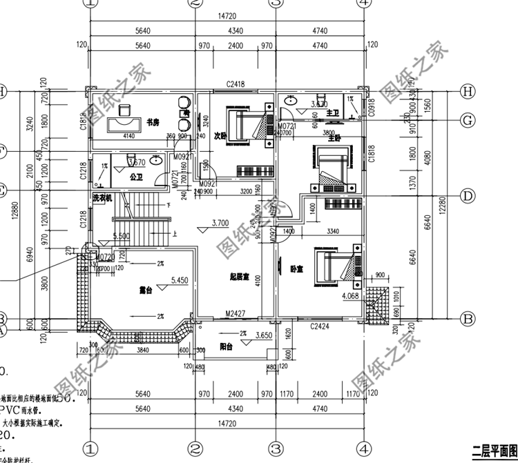
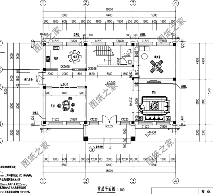
要說這農村建房子,可能一輩子也就這一回,想到這那可得好好設計,不然以后不喜歡了也不能說拆就拆吧,所以戶型選對很重要。今天給大家推薦的這三款經典二層別墅設計圖,戶型非常的流行,在農村建一棟不容易過時,而且設計的比城里的樓房都漂亮,保證別人看了都羨慕。 第一款:農村二層別墅設計圖,外觀簡單好看,施工簡單圖紙介紹:這款二層別墅占地200平米,外觀簡單好看,造價經濟實惠,施工也簡單,最適合農村!別墅外型設計比較時尚,采用歐式現代風格,外墻使用真石漆,優雅清新的米白色使人感到舒適,美觀大氣! 占地面積:18.0m*13.3m,200平方米左右; 建筑層高:二層; 建筑高度:11.55米(含屋頂); 設計功能: 一層戶型:客廳、餐廳、廚房、衛生間、茶室、棋牌室; 二層戶型:主臥(帶衣帽間、衛生間)、臥室x4、衛生間、雜物間、陽臺; ![]() ![]() ![]() ![]() 第二款:農村二層自建樓房設計圖,歐式風格設計,帶車庫圖紙介紹:這款二層別墅占地200平米左右,歐式風格,帶車庫設計,別墅戶型外觀美,造價低,深受大眾的喜歡。外墻貼的是奶白色的瓷磚很大氣。搭配藍色屋頂,整體給人感覺很舒服協調,別墅雖只有二層,但卻豪氣十足,農村自建一棟,一點不比城市的花園洋樓差。 占地面積:18.06m*11.56m,211平方米左右; 建筑層高:二層; 建筑高度:10.06米(含屋頂); 設計功能: 一層戶型:客廳、神位、餐廳、廚房 、臥室、臥室(帶衣帽間、衛生間)、衛生間、雜物間、車庫; 二層戶型:臥室(帶衣帽間、衛生間)、健身房、臥室x2、衛生間、雜物間、陽光房、露臺; ![]() ![]() ![]() ![]() 第三款:農村二層自建房設計圖,占地189平米,歐式風格設計圖紙介紹:這款二層自建房占地189平米,歐式風格,外觀時尚又大氣,大大的玻璃落地窗,讓簡單的外觀多了一些時尚感。暖色系的真石漆,搭配紅色的坡屋頂,給人一種溫暖又沉穩的感覺。造型時尚經典,建出來一定會是當地農村的經典戶型。 占地面積:14.72m*12.28m,189平方米; 建筑層高:二層; 建筑高度:9.1米(含屋頂); 設計功能: 一層戶型:娛樂室,公衛,客廳,堂屋,次臥,廚房,餐廳,老人房(帶衛生間); 二層戶型:書房,公衛,次臥X2,主臥(帶衛生間),起居室,露臺,陽臺; ![]() ![]() ![]() ![]() 這三款戶型不知道大家最喜歡哪一款?歡迎下方評論留言。
圖紙之家-專注農村別墅/自建房設計18年,集合國內200余位經驗豐富的設計師,被評為口碑最好的農村建筑設計公司! |

260平方米兩層帶車庫四合院房屋設計圖紙及效果圖
占地:260平方米
造價低經濟簡單的二層農村自建房圖紙設計,簡潔實用
占地:136.08平方米
三層歐式豪華別墅設計方案,全套圖紙+效果圖
占地:168平方米
新農村三拼別墅三戶連體別墅設計圖,設計新穎美觀
占地:380平方米
2026新款農村三層雙拼自建房設計圖,占地150平米左右
占地:150平方米
農家中式小院一層三合院自建房,布局寬敞大氣又舒適
占地:186.07平方米
共用中堂雙拼兄弟三層別墅設計圖,簡歐式風格
占地:230平方米
農村一層平房設計圖及效果圖,一層房屋設計方案推薦
占地:270平方米
農村一層7字型平房別墅設計圖,“L”自行戶型,外觀簡約低調
占地:213.39平方米
鄉村兩層半別墅設計圖,一層160平,主體30萬左右
占地:168平方米左右
一層半小別墅設計圖帶效果圖,農村自建帶閣樓一層半方案
占地:155平方米
三層帶地下室+旋轉樓梯別墅設計圖紙,復式挑空客廳
占地:多種戶型
70平農村小戶型二層別墅設計圖,小宅基地的福音
占地:70平方米
簡潔大氣140平方三層房子設計圖,帶車庫戶型極佳
占地:140平方米
小青瓦一層中式小院三合院設計施工圖,白墻青瓦古色古香
占地:155.3平方米
二層現代別墅設計圖及效果圖,外觀美觀,大氣
占地:195平方米
預算30萬三層樓房設計圖含效果圖,戶型經典
占地:125平方米
農村4間2層樓房設計圖,帶車庫,外觀時尚,帶屋頂花園
占地:210平方米
最新140平米三層自建房屋設計圖紙,本戶型帶小院
占地:140平米
一層帶地下室雙拼別墅設計圖,理想鄉村生活的標配
占地:416平方米
推薦:10套新農村自建房設計圖,2026年最新設計
閱讀次數:4825737次
100套鄉村別墅圖片大全,2026年最新設計
閱讀次數:2492203次
6款農村蓋一層平房的設計圖,10萬元就能建起來
閱讀次數:1852637次
這11個一層農村自建房別墅火爆了朋友圈!我最喜歡戶型十!你呢
閱讀次數:750268次
農村6萬元建一層小別墅圖,你敢相信嗎
閱讀次數:567686次
農村5萬塊就能自建房,6套普通房子設計圖分享,你沒看錯!
閱讀次數:419410次
8套農村漂亮三間平房圖片,非常適合在農村修建!
閱讀次數:411197次
農村自建房化糞池怎么做?附方案及施工過程
閱讀次數:391783次
農村一層三間平房設計圖,告別土氣養老房,讓人忍不住點贊
閱讀次數:350581次
新農村二層樓房圖片造價12萬,挑一套回家建房吧!
閱讀次數:349126次
