
|
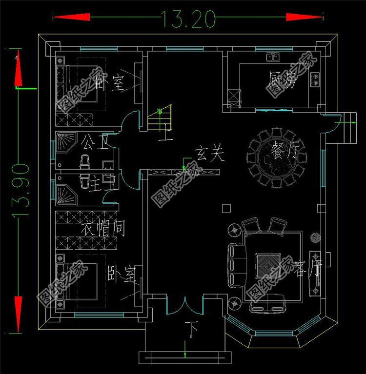
現在農村建房挺受限的,占地尺寸、層高等都有國家規定,建房朝向、風水等又有風俗限制。想要建個好房著實不容易。所以有句話說“沒有最好的房子,只有最適合你的房子”!所以小編今天就給大家推薦三款進深13米自建房三層設計圖,相對來說比較能被大眾接受的圖紙,一起來看看吧! 第一款:獨棟歐式三層農村樓房設計圖以及戶型圖,別墅外觀大氣豪華![]() 米黃色和褐色的碰撞渾然天成,多面窗的設計又采光又時尚,弧形落地窗使房屋整體美觀又吸睛,大理石點綴富有田園氣息,整個建筑層次分明,設計感滿分!一層進門就是門廳,很好 占地面積:13m*13m,144.75平方米左右; 建筑層高:三層; 建筑高度:13米(含屋頂); 設計功能: 一層戶型:客廳、廚房、餐廳、儲物間、臥室(衛生間)、衛生間; 二層戶型:客廳上空、起居室、臥室(衛生間、衣帽間)、臥室、衛生間、陽臺; 三層戶型:娛樂區、臥室(衛生間)x2、臥室、衛生間、露臺; ![]() ![]() ![]() 第二款:農村歐式三層別墅豪宅樓設計圖以及戶型圖,占地180平方米左右![]() 別墅占地方正,外觀恢宏大氣,豐富多樣的明亮落地窗,結合美觀的歐式構件,方正耐看。提升居住舒適度,一層入門即玄關,可放置衣架或者鞋柜,或者堂屋神龕都很實用。一層南面老人房設置成套間,方便老人的使用,北面的臥室可以作為客房;二層設有四處臥室,此外還設有小客廳陽臺方便休息。三層在功能規劃上十分全面,多房間的設計使得建筑整層可以滿足業主日常生活中的各種使用需求。 占地面積:13.2m*13.9m,177.82平方米左右; 建筑層高:三層; 建筑高度:15.075米(含屋頂); 設計功能: 一層戶型:客廳、廚房、餐廳、臥室(帶衛生間、衣帽間)、臥室、衛生間; 二層戶型:客廳、書房、臥室(帶衛生間、衣帽間)、臥室x3、衛生間; 三層戶型:起居室、臥室(帶衣帽間)、臥室(帶衛生間)、臥室x2、衛生間、露臺 ![]() ![]() ![]() 第三款:經典新中式三層別墅設計圖以及戶型圖,新款自建房戶型![]() 一樣的農村,不一樣的生活體驗。恰到好處的外觀色彩與層次感,立面通透的大窗時刻保證室內充足的采光。外觀方正的別墅立面設計結合陽臺設計的門斗,秀麗簡約,大氣不俗。四面環窗的設計,保證了充足的通風采光,又豐富了別墅外觀造型。進門是一個堂屋,客廳 占地面積:12.7m*13.8m,158.19平方米左右; 建筑層高:三層; 建筑高度:12.288米(含屋頂); 設計功能: 一層戶型:堂屋、客廳、儲藏室、家庭影音、廚房、餐廳、臥室、衛生間; 二層戶型:客廳上空、茶室、臥室x2、臥室(帶衣帽間)、衛生間、陽臺x2; 三層戶型:健身房、洗衣房、書房、臥室x2、臥室(衛生間)、衛生間、露臺 ![]() ![]() ![]() 以上就是小編推薦的進深13米自建房三層設計圖,符合你家面積嗎?趕快選一套吧!
圖紙之家-專注農村別墅/自建房設計18年,集合國內200余位經驗豐富的設計師,被評為口碑最好的農村建筑設計公司! |

300平四層別墅房屋設計圖,含外觀效果圖,大面積、多臥室
占地:261平方米
新農村中式一層三合院效果圖及全套設計圖,喜歡合院的有福了
占地:118平方米
異形宅基地二層農村別墅設計圖,現代風時尚又大氣
占地:242.03平方米
最美建筑四合院別墅設計方案,大氣經典,開間19米
占地:168.61平方米
農村27萬二層自建別墅設計圖,占地140平米左右,戶型極好
占地:140平方米
100平左右農村一層平房小洋樓建筑設計圖紙,14米×8米
占地:98平方米
最實用中式一層三合院別墅設計圖,簡約精致布局實用
占地:162.49平方米
農村小戶型二層房屋別墅設計圖,帶外觀效果圖
占地:95平方米
經典小戶型二層新農村房屋設計圖紙,客廳中空,造價20萬
占地:94平方米
10套農村經典二層樓房設計圖紙,多戶型,多尺寸,總有一款適合
占地:多種
二開間二層別墅設計圖,面寬9米,不可多得的好選擇!
占地:93.24平方米
新款農村三拼三戶別墅設計圖及效果圖三層戶型,外觀靚麗新穎
占地:360平方米
105平一層簡單農村別墅設計圖,造價8萬左右
占地:105平方米
農村一層大別墅施工圖,18米乘12米,讓生活充滿儀式感
占地:216平方米
農村三間三層豪宅設計圖,自建別墅推薦戶型,帶地下室
占地:170平方米
全套歐式二層別墅設計cad圖紙,含效果圖,帶車庫
占地:211平方米
農村自建房就選它!一層新中式設計,日常居住需求全搞定
占地:128.45平方米
170平方米新農村現代樓中樓三層別墅設計施工圖紙及效果圖
占地:170平方米
經濟型實用歐式一層小樓房別墅平房設計圖,11X10米
占地:103平方米
面寬16米方正實用二層別墅設計圖,中式風格不輸村里的別墅洋房
占地:182.82平方米
推薦:10套新農村自建房設計圖,2026年最新設計
閱讀次數:4825737次
100套鄉村別墅圖片大全,2026年最新設計
閱讀次數:2492203次
6款農村蓋一層平房的設計圖,10萬元就能建起來
閱讀次數:1852637次
這11個一層農村自建房別墅火爆了朋友圈!我最喜歡戶型十!你呢
閱讀次數:750268次
農村6萬元建一層小別墅圖,你敢相信嗎
閱讀次數:567686次
農村5萬塊就能自建房,6套普通房子設計圖分享,你沒看錯!
閱讀次數:419410次
8套農村漂亮三間平房圖片,非常適合在農村修建!
閱讀次數:411197次
農村自建房化糞池怎么做?附方案及施工過程
閱讀次數:391783次
農村一層三間平房設計圖,告別土氣養老房,讓人忍不住點贊
閱讀次數:350581次
新農村二層樓房圖片造價12萬,挑一套回家建房吧!
閱讀次數:349126次
