
|
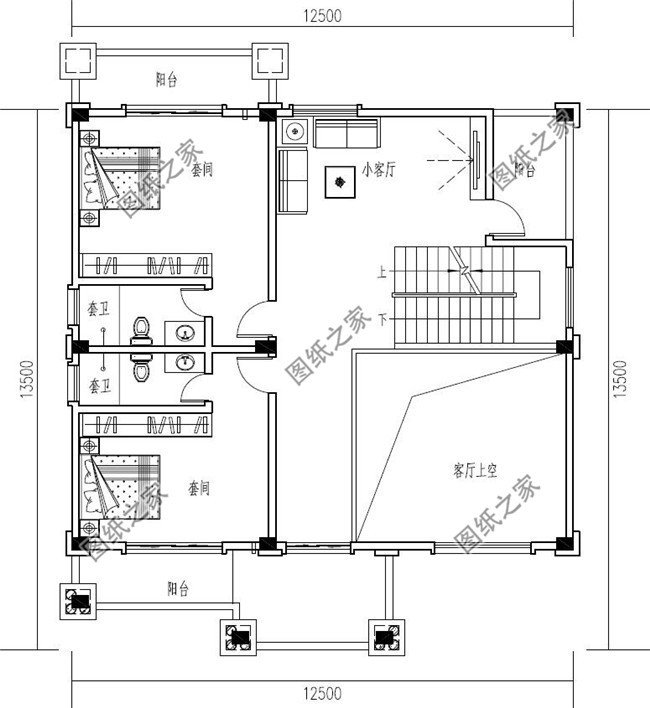
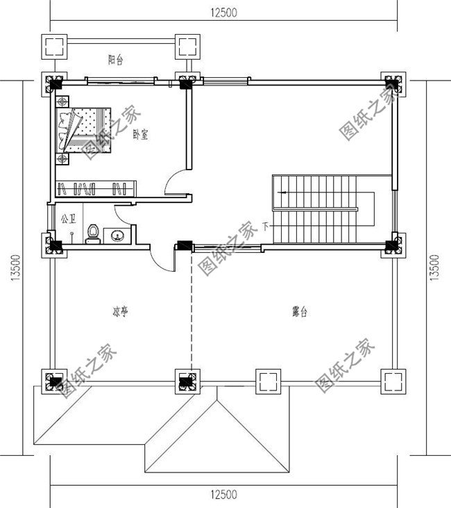
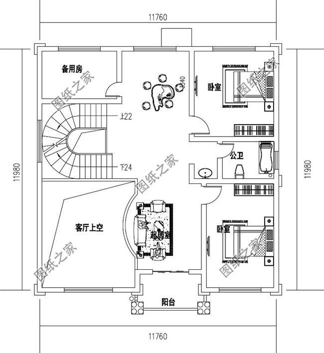
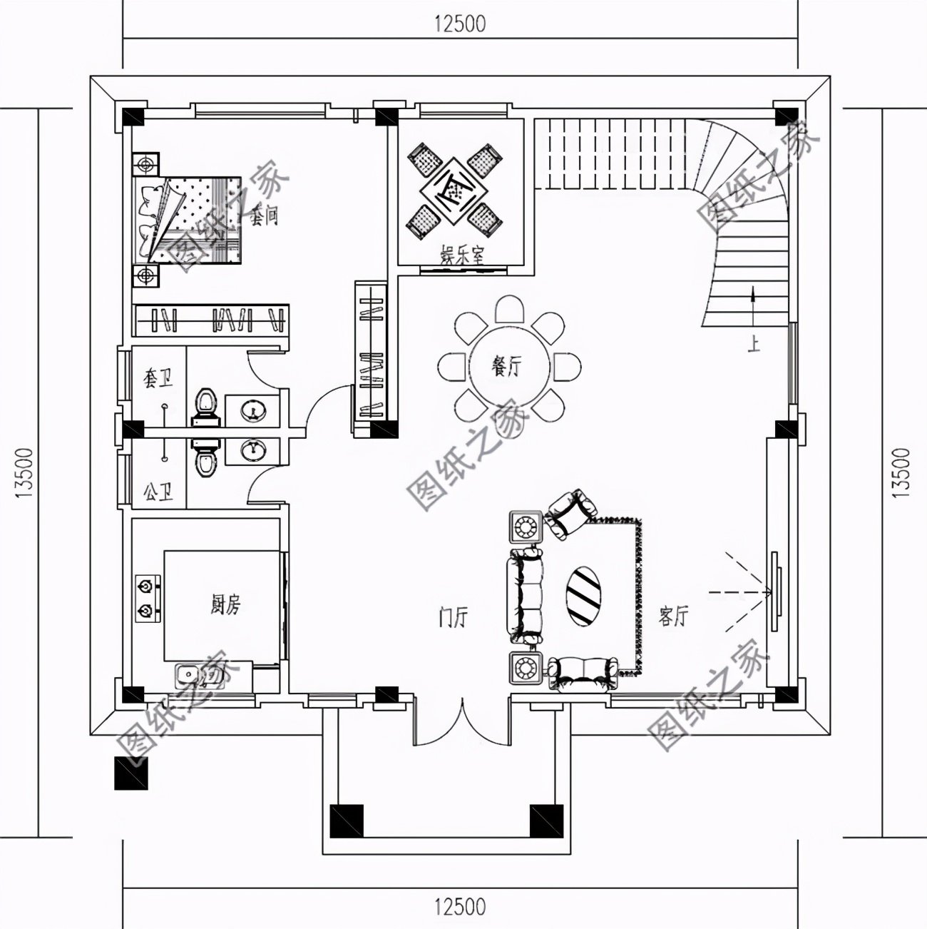
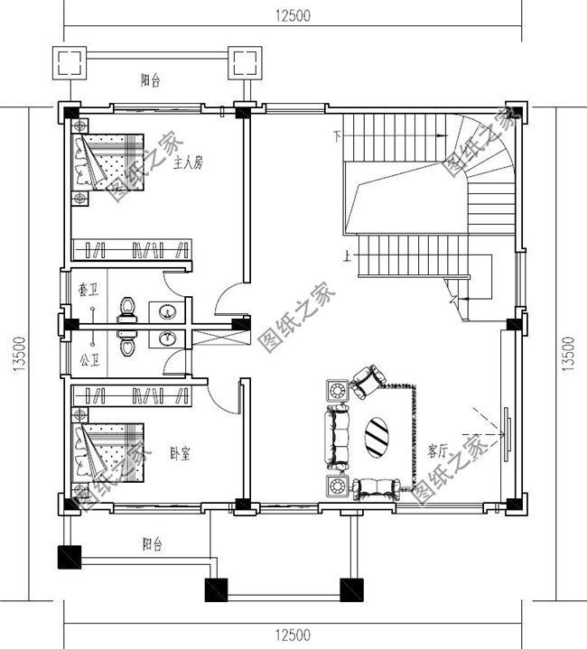
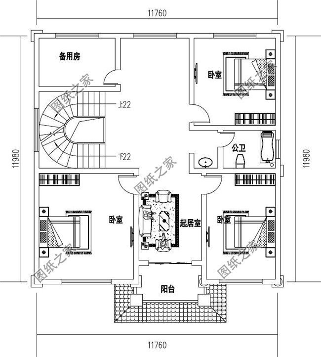
現代人,過膩了喧囂的城市生活,開始向往農村生活,有青山有綠水,有花草有田野,與城市的喧囂相比,農村更顯出一絲寧靜與悠閑,是每個人心中的理想生活。今天小編推薦三款農村四層別墅設計,優雅的裝飾和雕刻,不只是精致大氣,更多的是愜意和浪漫的布局。 第一款:鄉墅建房三層半別墅設計圖以及戶型圖,農村四層豪宅戶型方案![]() 這款戶型的墻面裝飾有用到少量的淺黃色文化石,還有大面積的米黃色真石漆裝飾,屋頂用磚紅色琉璃瓦,背面鑲嵌有多個窗戶,加強室內采光,窗戶之間可用浮雕裝飾,能加強美觀性。多邊形窗的使用,同樣能加強造型的立體感,且室內采光更好,大門處的門廳設計很重要,配以方形羅馬柱很大氣。屋面的俯瞰效果,同樣很讓人心動,尤其是搭配涼亭,效果更好。 占地面積:13m*15.8m,185.04平方米左右; 建筑層高:四層; 建筑高度:16.144米(含屋頂); 設計功能: 一層戶型:玄關、客廳、廚房、餐廳、茶室(棋牌室)、臥室(帶衣帽間)、衛生間; 二層戶型:客廳、書房、臥室(帶衛生間)、臥室x3、衛生間、陽臺; 三層戶型:客廳、書房、臥室(帶衛生間)、臥室x3、衛生間、陽臺; 四層戶型:書房、臥室x2、衛生間、露臺、涼亭; ![]() ![]() ![]() 第二款:農村大氣四層房屋別墅設計圖以及戶型圖,外觀大氣![]() ![]() ![]() 簡歐風格干凈簡潔,米黃色的外墻搭配藍色屋頂,同色系色的窗套起到色彩呼應的作用,大落地窗的浮雕更是有設計感,左右兩面連通體窗戶和裝飾柱,更是增添了該戶型的大氣感。室內設有中空客廳、健身區以及休閑區等,正是符合新農村建房的標準。 占地面積:11.76m*11.98m,143平方米左右; 建筑層高:四層; 建筑高度:16.59米(含屋頂); 設計功能: 一層戶型:客廳、廚房、餐廳、臥室、儲藏室、衛生間; 二層戶型:客廳上空、起居室、休閑區、備用房、臥室x2、衛生間、陽臺; 三層戶型:起居室、備用房、臥室x3、衛生間、陽臺; 四層戶型:臥室x2、休閑區、儲藏室、健身區、衛生間、露臺 ![]() ![]() ![]() 第三款:新款私人定制四層歐式獨棟住宅別墅設計圖以及戶型圖,帶露臺設計![]() ![]() ![]() 這款歐式風格的別墅,給人以雍容高貴之感,從內到外注重品質感的締造,建筑外立面上的拱形落地窗,以及多處陽臺等,不僅使得房屋造型更加豐富,同時也優化了居住感受,是一套適合大家庭居住的高品質別墅。 占地面積:12.5m*13.5m,138平方米左右; 建筑層高:四層; 建筑高度:16.43米(含屋頂); 設計功能: 一層戶型:門廳、客廳、廚房、餐廳、娛樂室、臥室(帶衛生間)、衛生間; 二層戶型:客廳、主人房(帶衛生間)、臥室、衛生間、陽臺; 三層戶型:客廳上空、小客廳、臥室(帶衛生間)x2、陽臺; 四層戶型:臥室、衛生間、涼亭、露臺; ![]() ![]() ![]() ![]() 以上就是小編推薦的農村四層別墅設計圖以及戶型圖,你喜歡什么樣式的?
圖紙之家-專注農村別墅/自建房設計18年,集合國內200余位經驗豐富的設計師,被評為口碑最好的農村建筑設計公司! |

漂亮實用的新農村二層小樓圖,造價20萬左右,超大景觀露臺
占地:130平方米
150平米左右歐式三層鄉村別墅設計圖,客廳中空
占地:150平方米
農村三層帶電梯小別墅設計施工圖,120平方米左右12.2x10.8米
占地:123平方米
農村二層中式小三合院別墅全套設計圖,民族特色風格
占地:122平方米
農村二層帶車庫四合院別墅設計圖,新中式外觀圖片,戶型實用方
占地:247平方米
11×10米農村二層別墅圖,百平占地經典實用舒適大氣
占地:103.47平方米
一層半小別墅設計圖帶效果圖,農村自建帶閣樓一層半方案
占地:155平方米
四開間一層半別墅設計圖,帶閣樓設計的戶型方案
占地:190.7平方米
帶地下室KTV三層農村自建別墅設計圖,12米乘12.5米
占地:131.7平方米
造價便宜的二層雙拼別墅設計圖,造型簡約大氣,進深10米
占地:SP23059
占地105平實用三層樓房別墅設計圖紙,造型方正簡單大氣
占地:105平方米
20萬左右農村雙拼別墅住宅設計圖,簡單小戶型設計
占地:120平方米
120平米左右農村房屋設計圖占地面積適宜,外觀舒適大氣
占地:120平方米
140平方米兩層別墅CAD設計圖紙及效果圖,13x11米
占地:138平方米
200平米二層自建房別墅設計圖,外觀漂亮布局實用
占地:207.09平方米
新農村住宅設計圖集,三層房屋設計圖紙展示
占地:110平方米
經濟實用二層樓房設計圖紙,功能布局多,12×11米
占地:130平方米
帶小院七字形一層自建房戶型設計圖,平屋頂圖紙
占地:201.08平方米
農村四間二層小洋樓設計圖,歐式別墅、現代洋氣
占地:200平方米
一層帶小院自建房設計,穩重經濟,適合老人自住養老
占地:179.19平方米
推薦:10套新農村自建房設計圖,2026年最新設計
閱讀次數:4825737次
100套鄉村別墅圖片大全,2026年最新設計
閱讀次數:2492203次
6款農村蓋一層平房的設計圖,10萬元就能建起來
閱讀次數:1852637次
這11個一層農村自建房別墅火爆了朋友圈!我最喜歡戶型十!你呢
閱讀次數:750268次
農村6萬元建一層小別墅圖,你敢相信嗎
閱讀次數:567686次
農村5萬塊就能自建房,6套普通房子設計圖分享,你沒看錯!
閱讀次數:419410次
8套農村漂亮三間平房圖片,非常適合在農村修建!
閱讀次數:411197次
農村自建房化糞池怎么做?附方案及施工過程
閱讀次數:391783次
農村一層三間平房設計圖,告別土氣養老房,讓人忍不住點贊
閱讀次數:350581次
新農村二層樓房圖片造價12萬,挑一套回家建房吧!
閱讀次數:349126次
