
|
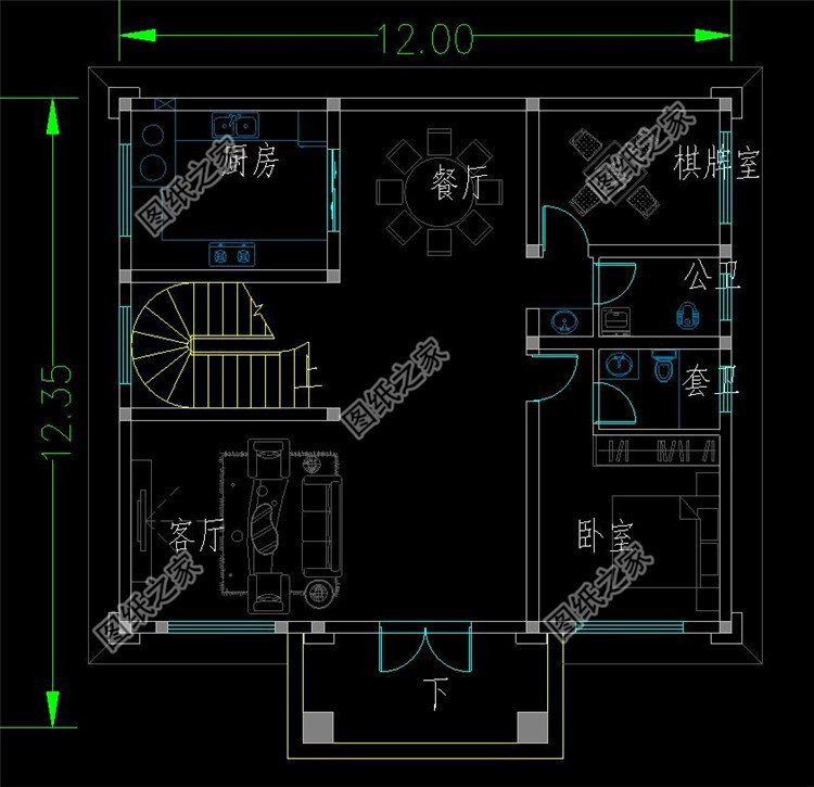
農村家庭人口多,子女一般都外出打工,家里基本上就留給父母住了,但是即使這樣,也不能蓋得他隨便,畢竟自己逢年過節的時候還是要回去住的。由于考慮大大多數時間都是父母住,所以要符合老人的生活習慣。今天推薦三款獨棟三層別墅設計圖,帶超大落地窗設計,陽光充足,適合父母居住。 方案一:農村三層別墅設計圖,占地126平米,歐式風格時尚漂亮圖紙介紹:本戶型占地126平米,歐式風格設計,戶型清新典雅,主體采用黃色基調,干凈清透,裝飾簡單,給人渾然天成的舒適觀感。多面窗的設計又采光又時尚,紅色屋頂的點綴富有田園氣息,整個建筑層次分明,設計感滿分! ![]() ![]() ![]() ![]() 方案二:農村三層自建房設計圖,占地119平米,帶地下室設計圖紙介紹:本戶型占地119平米,現代風別墅,帶地下室設計,別墅布局合理,使用舒適。多開窗的設計,保證室內陽光充足,也很好的隔斷了空間,避免了開門見山的煩惱。封閉的廚房很好的減少了油煙的污染,遠離客廳臥室,出門就是餐廳,十分的便捷。二層三間臥室,書房靠近陽臺,環境舒適。三層大露臺能夠很好的滿足日常晾曬,和朋友在露臺上喝杯下午茶,吃飯聚餐都是非常好的選擇視野開闊,環境宜人。 占地面積:12.5m*10.3m,119.79平方米左右; 建筑層高:三層; 建筑高度:12.038米(含屋頂); 設計功能: 地下室戶型:儲物間、影音室、臺球室、 一層戶型:玄關、客廳、廚房、餐廳、臥室、衛生間; 二層戶型:書房、臥室(帶衣帽間、衛生間)、臥室x2、衛生間、陽臺x3; 三層戶型:起居室、臥室、臥室(帶衣帽間、衛生間)、衛生間、露臺x2; ![]() ![]() ![]() ![]() ![]() 方案三:農村三層別墅戶型圖,占地128平米,進深15米左右圖紙介紹:本戶型占地128平米,進深15米左右,室內帶電梯設計,新中式風格外觀造型美觀大方,色彩清新淡雅,富有時代的韻味。 占地面積:8.7m*15m,128平方米左右; 建筑層高:三層; 建筑高度:12.75米(含屋頂); 設計功能: 一層戶型:門廳、客廳、餐廳、廚房、棋牌室、電梯廳、衛生間; 二層戶型:老人房(帶衛生間)、女兒房(衣帽間衛生間)、客臥、衣帽間、雜物間、陽臺; 三層戶型:女兒房(衣帽間衛生間)、休閑廳茶室、衣帽間、洗衣房、露臺; ![]() ![]() ![]() ![]() 這三款獨棟三層別墅戶型大,房間多,家里人多住著也不怕了。
圖紙之家-專注農村別墅/自建房設計18年,集合國內200余位經驗豐富的設計師,被評為口碑最好的農村建筑設計公司! |

最好看的農村三層樓房設計圖,占地113平米,小平米大格局
占地:110平方米
面寬不到8米的農村二層半別墅建筑圖紙及效果圖
占地:96平方米左右
鄉村三層別墅CAD建筑設計圖,110平方米戶型,帶效果圖和全套施工
占地:110平方米
偏中式徽派的二層房屋農村別墅設計圖,馬頭墻小青瓦
占地:123.36平方米
帶車庫的別墅設計圖紙,外觀效果圖二層半設計,全套建筑施工圖
占地:174平方米左右
一層平房小面積雙拼房屋住宅設計圖,造價低,面積適中
占地:245.7平方米
農村10萬元一層小別墅平房設計圖大全,含效果圖
占地:120平方米
農村一層獨棟別墅設計圖,帶閣樓,設計感十足
占地:250平方米
2026年新款二層半農村自建小別墅設計圖紙,占地150平方米
占地:150平方米
鄉下建房一層半戶型圖,占地160平米,帶閣樓
占地:多種戶型
預算30萬三層樓房設計圖含效果圖,戶型經典
占地:125平方米
農村兩層新中式別墅圖紙設計圖,外觀圖片大氣,21萬左右
占地:108平方米
三層新中式別墅設計圖,面寬12米經典漂亮
占地:154.93平方米
帶庭院中式二層四合院別墅設計效果圖片,方方正正
占地:404平方米
一層平屋頂自建房圖,簡單而舒適,既省錢不說還不愁沒地曬糧食
占地:106平方米
二層美式花園洋房設計圖,帶堂屋戶型,外觀簡直美爆了
占地:159.32平方米
現代三層復式小別墅設計圖及外觀圖片,25萬造價
占地:105平方米
農村60萬三層別墅新款式設計圖,外觀和實用性并駕齊驅
占地:170平方米
新中式三層豪華大氣三層別墅自建房屋設計圖,帶地下室,土豪專
占地:194平方米
農村五開間大平層設計圖,主體15萬就能建。
占地:182.43平方米
推薦:10套新農村自建房設計圖,2026年最新設計
閱讀次數:4825737次
100套鄉村別墅圖片大全,2026年最新設計
閱讀次數:2492203次
6款農村蓋一層平房的設計圖,10萬元就能建起來
閱讀次數:1852637次
這11個一層農村自建房別墅火爆了朋友圈!我最喜歡戶型十!你呢
閱讀次數:750268次
農村6萬元建一層小別墅圖,你敢相信嗎
閱讀次數:567686次
農村5萬塊就能自建房,6套普通房子設計圖分享,你沒看錯!
閱讀次數:419410次
8套農村漂亮三間平房圖片,非常適合在農村修建!
閱讀次數:411197次
農村自建房化糞池怎么做?附方案及施工過程
閱讀次數:391783次
農村一層三間平房設計圖,告別土氣養老房,讓人忍不住點贊
閱讀次數:350581次
新農村二層樓房圖片造價12萬,挑一套回家建房吧!
閱讀次數:349126次
