
|
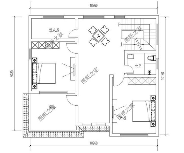
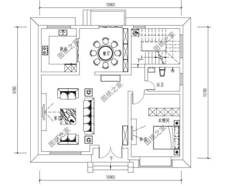
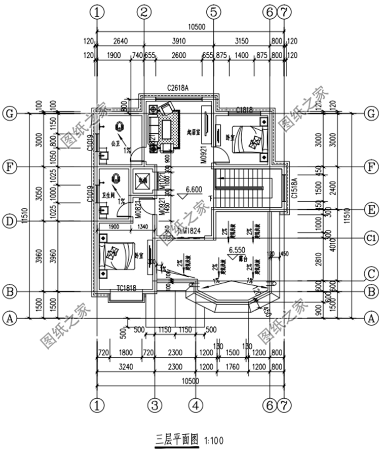
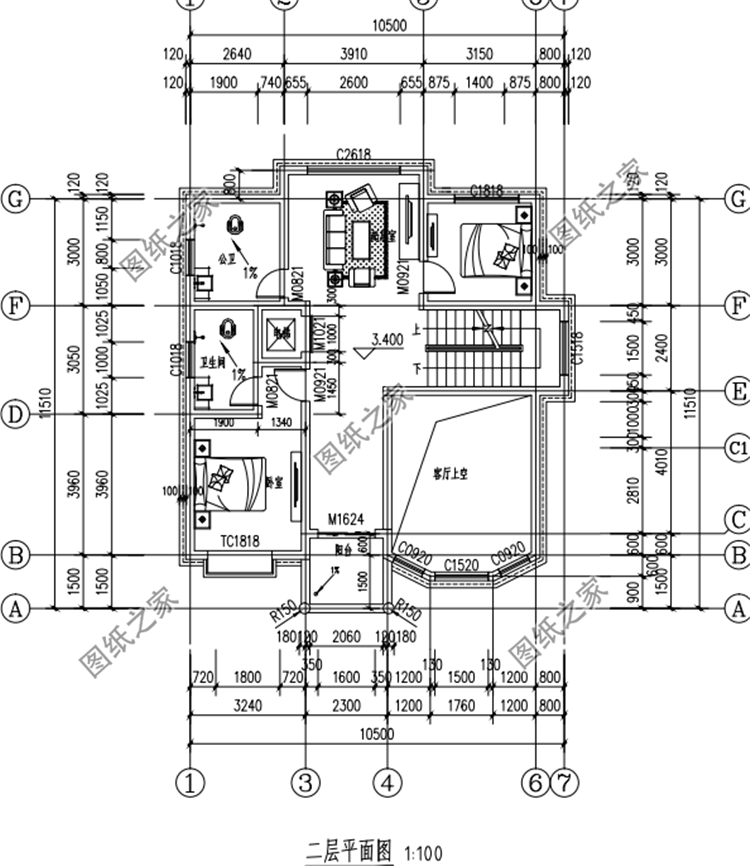
現在的農村人好多都整一套小別墅,沒有別墅的起碼也是小洋房了,有的院子內還有游泳池,周圍種著等,養著幾只狗和貓,后院種菜,養雞養鴨……早上出去干農活,中午干完農活回來就躺在樹下的網床上休息,傍晚又出去干活,這種生活也挺好的,自由自在,舒服!今天小編分享三款占地110平米房子設計圖,需要建房的可以收藏了! 第一款:農村三層別墅設計圖,占地110平米,帶電梯和露臺設計圖紙介紹:這款三層小洋樓占地110平米左右,樓中樓結構,帶電梯和露臺設計,打造成露臺花園,不僅可以美化環境,而且是很好的休閑娛樂場所。 占地面積:10.5m*11.5m,一層占地110平方米左右; 建筑層高:三層; 建筑高度:13.01米(含屋頂); 設計功能: 一 層:客廳、餐廳、父母房(帶衛生間)、衛生間、健身房; 二 層:客廳上空、起居室、臥室(帶衛生間)、臥室、公衛; 三 層:起居室、臥室(帶衛生間)、臥室、公衛、露臺; ![]() ![]() ![]() ![]() 第二款:農村三層自建別墅設計圖,占地112平米左右,戶型大氣實用圖紙介紹:這款三層自建房占地112平米左右,外觀大氣實用,大膽的外觀配色巧妙地增加了整體的美感,凸窗設計讓整棟別墅耳目一新,多窗的設計充分考慮別墅的采光和通風性能。灰色坡屋頂錯落有致,適合農村自建。 占地面積:10.96m*10.18m,112.56平方米左右; 建筑層高:三層; 建筑高度:12.392米(含屋頂); 設計功能: 一層戶型:客廳、餐廳、廚房、臥室(帶衣帽間)、衛生間; 二層戶型:書房、茶室、臥室x3、衛生間X2、陽臺; 三層戶型:娛樂區、臥室x2、書房、衛生間、洗衣房、露臺; ![]() ![]() ![]() ![]() 第三款:農村三層自建別墅設計圖,占地110平米左右,歐式外觀圖紙介紹:本戶型占地110平米左右,歐式外觀,端莊耐看不過時,在農村一直屬于顏值頗高。落地窗唯美又實用,同時露臺觀景的愿望也能得到滿足。 占地面積:11.7m*11.2m,一層占地110平方米左右; 建筑層高:三層; 建筑高度:12.29米(含屋頂); 設計功能: 一 層:客廳、廚房、餐廳、臥室、衛生間、洗衣房; 二 層:活動室、臥室(帶衛生間)、臥室x3、衛生間、露臺; 三 層:活動室、主臥(帶衛生間、衣帽間)、臥室、衛生間、大露臺; ![]() ![]() ![]() ![]() 不知道這三款戶型大家最喜歡哪一款?歡迎下方評論留言。
圖紙之家-專注農村別墅/自建房設計18年,集合國內200余位經驗豐富的設計師,被評為口碑最好的農村建筑設計公司! |

農村三層帶電梯小別墅設計施工圖,120平方米左右12.2x10.8米
占地:123平方米
簡單農村二層自建房子設計圖,主體18萬就能建好,太心動了!
占地:124.53
10×12米三層別墅戶型,挑空大客廳設計,圈粉無數的爆款方案
占地:120平方米
時尚現代的二層農村別墅設計圖,年輕人建房的不二之選
占地:131.76平方米
10米×12米30萬以內農村建房三層豪華歐式別墅圖,處處顯品味
占地:120平方米
簡約大氣農村自建三層別墅設計圖,布局合理,很適合農村人自建
占地:139.471平方米
200多平方米新農村雙拼別墅設計圖紙,堂屋和樓梯共用
占地:207平方米左右
歐式風二層別墅設計圖,帶陽光房設計,時尚美觀還很實用
占地:多戶型可選
2026最新款獨棟中西雙餐廳三層別墅設計圖,精巧實用好看不貴
占地:226.12平方米
150平米左右農村二層房屋設計圖,造價25萬左右漂亮實用
占地:150平方米
一層農村房子設計圖,含外觀效果圖,自建推薦戶型
占地:200平方米
2026年最新款四間二層別墅設計圖,15米乘13米
占地:171.01平方米
占地105平實用三層樓房別墅設計圖紙,造型方正簡單大氣
占地:105平方米
開間8米的小戶型二層別墅設計圖,2開間占地不到60平
占地:56平方米左右
新款三層農村自建別墅設計圖,中式風復式客廳
占地:158.96平方米
簡單漂亮實用的三層自建房設計圖,帶露臺,占地170平方米
占地:170平方米
農村兄弟合建一層雙拼房別墅圖,對稱設計,工整大方!
占地:170平方米
16米X12米四開間二層別墅設計圖,造型美觀經濟實用
占地:198平方米
面寬14.5米三層獨棟別墅設計圖,經典設計,大氣之作
占地:123.85平方米
帶車庫的三層房屋方案設計圖,帶堂屋全套圖紙
占地:163.8平方米
推薦:10套新農村自建房設計圖,2026年最新設計
閱讀次數:4825737次
100套鄉村別墅圖片大全,2026年最新設計
閱讀次數:2492203次
6款農村蓋一層平房的設計圖,10萬元就能建起來
閱讀次數:1852637次
這11個一層農村自建房別墅火爆了朋友圈!我最喜歡戶型十!你呢
閱讀次數:750268次
農村6萬元建一層小別墅圖,你敢相信嗎
閱讀次數:567686次
農村5萬塊就能自建房,6套普通房子設計圖分享,你沒看錯!
閱讀次數:419410次
8套農村漂亮三間平房圖片,非常適合在農村修建!
閱讀次數:411197次
農村自建房化糞池怎么做?附方案及施工過程
閱讀次數:391783次
農村一層三間平房設計圖,告別土氣養老房,讓人忍不住點贊
閱讀次數:350581次
新農村二層樓房圖片造價12萬,挑一套回家建房吧!
閱讀次數:349126次
