
|
歐式風格的別墅在國內一直都是主要的設計風格。歐式風格最出名的就是浪漫和舒適,讓人看上去心都會不自覺地軟化下來,宛如生活在童話里。歐式風格的線條感和立體感也很強,不管是門廳還是窗戶,歐式風格都是秉承著要意境突出的設計,讓人難以忘懷。最明顯的還是羅馬柱,加上羅馬柱之后,建筑整體都會帶上一絲歷史文化感,看上去更加大氣。今天給大家帶來三款歐式三開間二層自建房設計圖紙,感興趣的朋友和我一起來看看吧。 別墅圖一:清新脫俗二層簡歐風格二層別墅設計圖村里絕對是第一棟,大家都羨慕。要說農村建房風格最多,無疑是歐式。經典大方的造型,加上各種裝飾線條的搭配,很有氣勢。別墅外墻主體采用米色真石漆裝飾,經典暖色,建筑美觀溫馨。屋頂是紅色琉璃瓦,清新自然,賞心悅目。露臺的存在讓建筑的功能性得到了提升,不僅可以晾曬衣物,還可以晾曬糧食,午后休憩,飲下午茶等等。布局合理緊湊,空間利用率高。非常適合農村生活。
別墅效果圖 占地面積:12.7m*12.6m,137.16平方米左右; 建筑層高:二層; 建筑高度:9.664米(含屋頂); 設計功能: 一層戶型:客廳、廚房、餐廳、臥室(帶衛生間)臥室、衛生間; 二層戶型:起居室、臥室(帶衣帽間)、臥室(帶衛生間)、臥室、衛生間、露臺;
一層平面圖
二層平面圖 別墅圖二:180平米農村二層小別墅設計圖外觀漂亮,帶露臺,回老家建一棟,生活老有所居。回農村建房,已成為一種趨勢,人老了,總要有一個地方可以歇息。深紅色的坡屋頂,加上羅馬柱的存在,讓整棟建筑更加的大氣,讓人第一眼印象深刻。露臺的存在不僅增加了建筑的多功能性,還增加了建筑的趣味性,讓生活更為舒適。老家如果有一棟,生活就有了退路,老家才是最好的歸宿。
別墅效果圖 占地面積:16.9m*13.0m,占地180平方米左右; 建筑層高:二層; 建筑高度:9.8米(含屋頂); 設計功能: 一層戶型:玄關、堂屋、客廳、衛生間、主臥(帶衛生間)、臥室、棋牌室;堂屋可改造成廚房餐廳。 二層戶型:客廳、主臥(帶衣帽間,衛生間)、臥室(帶衣帽間)x2、廚房、衛生間、大露臺;
鳥瞰效果圖
背面效果圖
一層平面圖
二層平面圖 別墅圖三:230平方米豪華歐式二層別墅CAD設計圖紙帶外觀效果圖大開間戶型,帶車庫設計,外觀配色采用最淡雅的米白色,讓別墅更加讓人眼前一亮,與低調的深灰色坡屋頂,相得益彰,讓整棟別墅變的更加典雅,多窗的設計讓整棟建筑的采光和通風得到了加強,生活也會更加舒適。兩邊都有露臺的設計讓別墅的功能性更強。羅馬柱的設計讓別墅看上去更加大氣,讓人第一眼印象十分深刻。
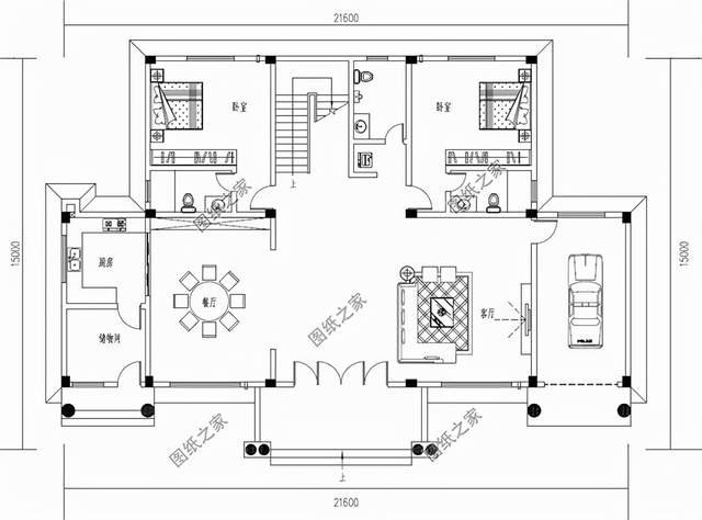
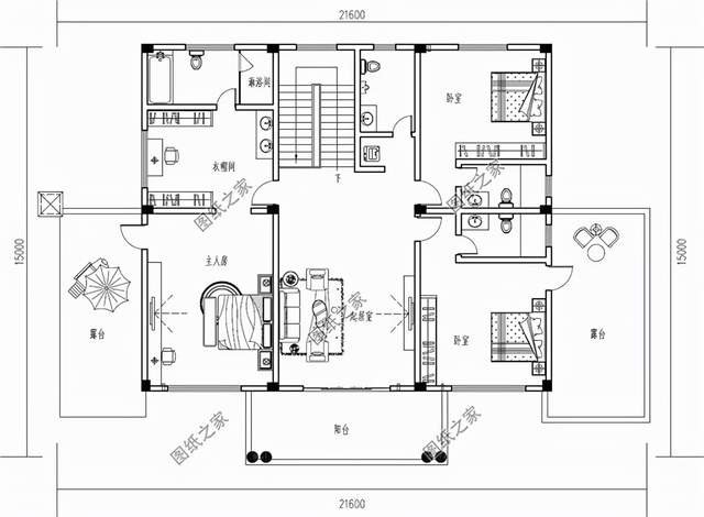
別墅效果圖 占地面積:21.6m*15m,236平方米左右; 建筑層高:二層; 建筑高度:9.8米(含屋頂); 設計功能: 一層戶型:客廳、廚房、餐廳、臥室(帶衛生間)x2、儲物間、衛生間、車庫; 二層戶型:起居室、臥室(帶衛生間)x2、臥室(帶衣帽間衛生間)、衛生間、陽臺、露臺;
背面效果圖
鳥瞰效果圖
一層平面圖
二層平面圖 這就是今天給大家帶來的全部內容了,感興趣的朋友記得收藏喲。 圖紙之家-專注農村別墅/自建房設計18年,集合國內200余位經驗豐富的設計師,被評為口碑最好的農村建筑設計公司! |

雙拼小別墅設計圖紙(含效果圖),二層別墅設計方案精選
占地:130平方米
面寬13米帶堂屋三層農村別墅圖,新中式大氣風格
占地:151.58平方米
110平農村二層房屋設計圖,新農村自建房戶型推薦
占地:110平方米
農村一層中式三合院別墅設計圖紙,外觀漂亮極了
占地:195平方米
四層豪華歐式別墅自建樓房設計圖紙,帶效果圖和全套施工圖
占地:300平方米
地中海風格二層別墅設計圖方案,含外觀效果圖
占地:130平方米
80平方米新農村二層房屋設計圖紙,造價15萬左右
占地:80平方米
100平方米自建三層半別墅設計圖紙,帶地下車庫
占地:100平方米
好看又簡單二層仿古中式四合院樓房設計圖
占地:352平方米
超現代風格平頂別墅設計圖,外觀時尚,80、90很喜歡
占地:112.18平方米
農村中式四合院房屋圖片及設計圖,白墻黛瓦的江南風格
占地:337平方米
13X13米新農村中式風三層別墅設計方案,內部布局緊湊溫馨
占地:168.43平方米
農村三層房屋設計圖紙,三層農村住宅設計效果圖,11米*10米
占地:100平方米
農村4間2層樓房設計圖,帶車庫,外觀時尚,帶屋頂花園
占地:210平方米
小L型新款二層別墅設計圖,復式客廳旋轉樓梯,14米乘13米
占地:182平方米
農村三層雙拼別墅設計圖,兄弟建房開間20米,單戶80平方
占地:160平方米
140平方米三層半新農村房屋別墅設計圖,帶車庫
占地:140平方米
二層農村雙拼別墅帶露臺設計圖,20×11.8米,單戶110平米
占地:220平方米
面寬15米大氣的農村二層復式戶型別墅設計圖紙及外觀圖片
占地:173.28平方米
275平方米新農村雙拼樓中樓戶型別墅設計圖紙及效果圖21X14米
占地:275平方米
推薦:10套新農村自建房設計圖,2026年最新設計
閱讀次數:4825737次
100套鄉村別墅圖片大全,2026年最新設計
閱讀次數:2492203次
6款農村蓋一層平房的設計圖,10萬元就能建起來
閱讀次數:1852637次
這11個一層農村自建房別墅火爆了朋友圈!我最喜歡戶型十!你呢
閱讀次數:750268次
農村6萬元建一層小別墅圖,你敢相信嗎
閱讀次數:567686次
農村5萬塊就能自建房,6套普通房子設計圖分享,你沒看錯!
閱讀次數:419410次
8套農村漂亮三間平房圖片,非常適合在農村修建!
閱讀次數:411197次
農村自建房化糞池怎么做?附方案及施工過程
閱讀次數:391783次
農村一層三間平房設計圖,告別土氣養老房,讓人忍不住點贊
閱讀次數:350581次
新農村二層樓房圖片造價12萬,挑一套回家建房吧!
閱讀次數:349126次
