
|
在當今農村快速發展的趨勢下,高層住宅可以更好地滿足每個人的住房建設需求。同時,建筑成本經濟、保溫效果好、外觀更靈活等優點,使高層住宅深受大家的喜愛。許多生活空間讓每個家人都有一個獨立的休息空間,為家庭創造一個實用和舒適的住宅!今天小編將推薦一個農村四層別墅設計,房屋類型簡單、美觀、實用,是高層住宅的首選!一個溫暖舒適的家,和家人在一起,生活溫暖而美麗。 圖紙介紹:新農村四層獨棟別墅設計圖整棟別墅戶型簡單實用,簡歐外觀風格設計,外墻面色彩運用比較豐富,一二層主要用黃色真石漆,三四層主要用淡黃色真石漆裝飾,門柱采用粉色真石漆,再搭配紅色屋頂,樓層高且造型美,顯得非常氣派。室內帶豪華套房、棋牌室以及娛樂室,這樣的生活不會顯得太枯燥,這樣的房子建在農村,肯定人人羨慕。 占地面積:12m*12.89m,141平方米左右; 建筑層高:四層; 建筑高度:16.62米(含屋頂); 設計功能:
正面效果圖
鳥瞰效果圖
側面效果圖
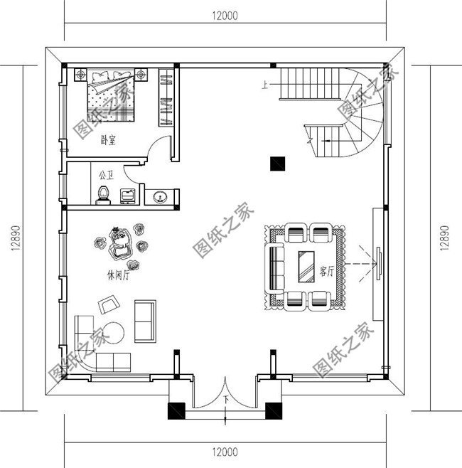
一層戶型圖 一層戶型:客廳、休閑廳、臥室、衛生間;
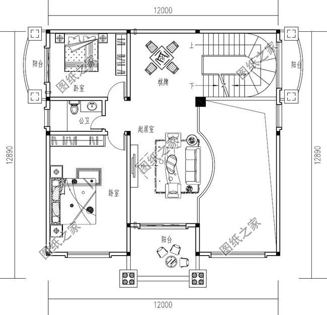
二層戶型圖 二層戶型:客廳上空、起居室、棋牌室、臥室x2、衛生間、陽臺;
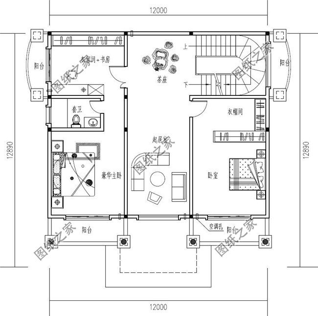
三層戶型圖 三層戶型:起居室、茶座、豪華主臥(帶衛生間、衣帽間、書房)、臥室(帶衣帽間)、陽臺;
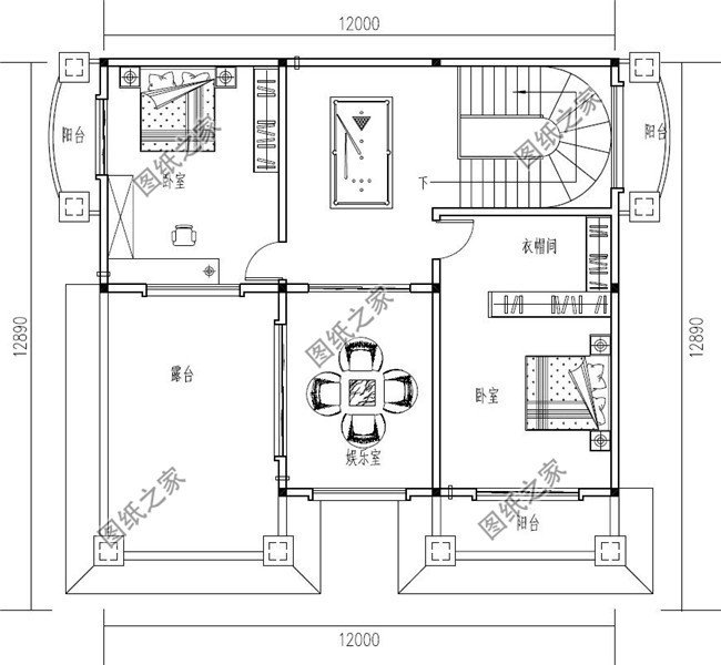
四層戶型圖 四層戶型:娛樂室、臥室(帶衣帽間)、臥室、露臺; 圖紙之家-專注農村別墅/自建房設計18年,集合國內200余位經驗豐富的設計師,被評為口碑最好的農村建筑設計公司! |

農村中式兩層雙拼別墅房屋設計圖,含效果圖片
占地:200平方米
占地百平農村三層戶型方案,簡約實用,獨具特色,理想新居等你
占地:105.61平方米
兩層三間農村自建房圖,125平有7間臥室,全家人都能住得下
占地:125.34平方米
農村自建三層別墅設計圖,開間17米進深13米,外觀對稱設計
占地:187.6平方米
50萬左右農村三層別墅設計圖紙,帶大露臺,外觀大氣
占地:150平方米
新中式高端豪宅三層別墅自建房設計圖,大戶型經典
占地:270平方米左右
經典小戶型新農村房屋住宅設計圖,10萬左右
占地:80平方米
兩層樓房設計圖,兩層新農村樓房圖紙,外觀典雅古樸
占地:140平方米
二層農村房屋設計圖紙,帶效果圖和全套施工方案圖
占地:多種戶型
農村兩層新中式仿古四合院別墅戶型圖,小型占地不到200平
占地:193平方米
農村120平三層樓房設計圖,造型現代,帶屋頂花園
占地:120平方米
二開間二層別墅設計圖,面寬9米,不可多得的好選擇!
占地:93.24平方米
100平二層精致小別墅房屋設計圖,外觀精致、漂亮
占地:100平方米
鄉村二層簡歐小戶型別墅圖設計,占地90平方米左右
占地:92.12平方米
獨棟三層樓房設計圖紙及效果圖,農村蓋房推薦
占地:125平方米
2026最新款獨棟中西雙餐廳三層別墅設計圖,精巧實用好看不貴
占地:226.12平方米
農村蓋平房設計大全圖,鄉下建房一層戶型圖及效果圖
占地:160平方米
精致農村別墅圖,150平米一層三合院設計,四臥二廳舒適宜居
占地:149.43平方米
2026年最新款四間二層別墅設計圖,15米乘13米
占地:171.01平方米
農村25萬元二層小樓圖,經典大氣建成20年不過時
占地:150平方米
推薦:10套新農村自建房設計圖,2026年最新設計
閱讀次數:4825737次
100套鄉村別墅圖片大全,2026年最新設計
閱讀次數:2492203次
6款農村蓋一層平房的設計圖,10萬元就能建起來
閱讀次數:1852637次
這11個一層農村自建房別墅火爆了朋友圈!我最喜歡戶型十!你呢
閱讀次數:750268次
農村6萬元建一層小別墅圖,你敢相信嗎
閱讀次數:567686次
農村5萬塊就能自建房,6套普通房子設計圖分享,你沒看錯!
閱讀次數:419410次
8套農村漂亮三間平房圖片,非常適合在農村修建!
閱讀次數:411197次
農村自建房化糞池怎么做?附方案及施工過程
閱讀次數:391783次
農村一層三間平房設計圖,告別土氣養老房,讓人忍不住點贊
閱讀次數:350581次
新農村二層樓房圖片造價12萬,挑一套回家建房吧!
閱讀次數:349126次
