
|
現在,在農村地區的領導下,它已經發生了巨大的變化,特別是那些依山傍水的農村地區,他們會在家鄉建造一的二層別墅,這可以帶來良好的收入。一樓做商店開門做生意,二樓自己住。如果家人不經常住,他們也可以租出去,每個月躺在收取租金豈不是美滋滋。今天,小編將為您帶來一個中式的二層商店別墅設計,認為好的兄弟們跟我一起來看看吧! 圖紙介紹;中式風格帶商鋪二層別墅設計圖紙及效果圖整體別墅采用當下人們喜歡的仿古式風格設計,散發著古式住宅的韻味。墻體使用白色真石漆搭配灰色文化石,配色簡單好看迎合了中式簡約的設計理念。就算放到現在我們老一輩的住宅設計依舊還是強勢的,尤其是它與生俱來的氣勢,仿佛一座歷史悠久的古代宮殿似的,給大家帶來了強大的震撼感。黑色面瓦鋪設的屋頂,經典耐看向外延伸的屋檐設計采用中式住宅延續下來的設計,不僅美觀而且具有很好的排水性能!對中式建筑感興趣的建房者們一定不要錯過喲! 占地面積:20m*14.76m,263.1平方米左右;
正面效果圖
鳥瞰效果圖
側面效果圖
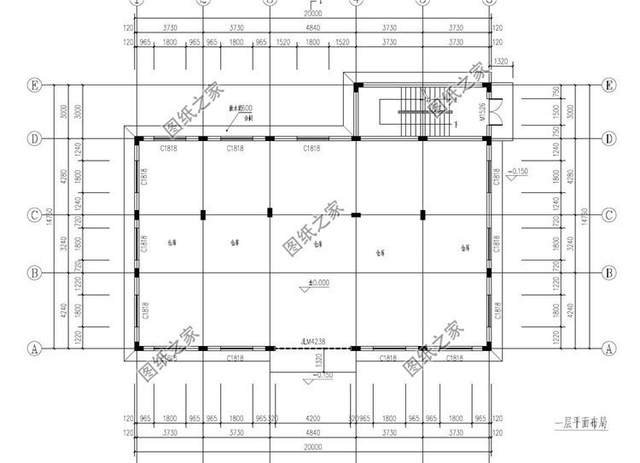
一層戶型圖 一層戶型:商鋪;
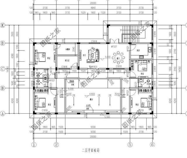
二層戶型圖 二層戶型:客廳、廚房、餐廳、臥室(帶衛生間,衣帽間)、臥室x3、娛樂室、衛生間x2、露臺; 二樓屋內布局:二樓比較注重生活休息區域,設有四室兩廳滿足一切的日常起居的需求! 圖紙之家-專注農村別墅/自建房設計18年,集合國內200余位經驗豐富的設計師,被評為口碑最好的農村建筑設計公司! |

100平方米實用二層半小別墅設計圖紙(帶閣樓層),住著安逸
占地:100平方米左右
二層氣質現代小洋樓設計圖,堪比城市別墅,全村最美沒商量
占地:121.07
小型新中式二層小別墅圖紙設計方案,好看造價不高
占地:232.98平方米
最美建筑四合院別墅設計方案,大氣經典,開間19米
占地:168.61平方米
農村40萬房子圖片外觀設計效果圖,帶地下室,外觀時尚大氣
占地:110平方米
農村三層樓房設計圖及效果圖,復式磚混結構
占地:148平方米
帶庭院的農村一層別墅圖紙設計,外觀時尚好看
占地:多戶型可選
三層兄弟雙拼別墅設計圖,外觀大氣漂亮,顏色搭配協調,一層為
占地:270平方米
好看又簡單二層仿古中式四合院樓房設計圖
占地:352平方米
50萬以內的歐式三層房屋別墅施工設計圖紙及效果圖
占地:169平方米
私人經濟小別墅設計圖,農村自建小洋樓100平左右戶型
占地:104平方米
中式兄弟雙拼別墅設計圖紙,類似合院造型,美爆了
占地:221.9平方米
網紅農村一層小別墅設計圖,建一層的必看
占地:多戶型可選
平屋頂四間一層農村自建房設計圖紙,經濟時尚
占地:144平方米
13×10米現代簡約風格三層別墅圖,坡屋頂和平屋頂完美結合
占地:120平方米
最新農村三層樓房設計圖紙,客廳中空,采用暖黃色為主色
占地:160平方米
小戶型兄弟雙拼別墅房屋設計圖,帶外觀效果圖
占地:150平方米
氣派的帶旋轉樓梯三層別墅房屋設計圖,戶型很好
占地:150平方米
120平方米農村一層平房別墅設計圖紙,含外觀效果圖
占地:125平方米
二層復式小別墅設計圖,樓中樓結構,外觀漂亮,簡單
占地:120平方米
推薦:10套新農村自建房設計圖,2026年最新設計
閱讀次數:4825737次
100套鄉村別墅圖片大全,2026年最新設計
閱讀次數:2492203次
6款農村蓋一層平房的設計圖,10萬元就能建起來
閱讀次數:1852637次
這11個一層農村自建房別墅火爆了朋友圈!我最喜歡戶型十!你呢
閱讀次數:750268次
農村6萬元建一層小別墅圖,你敢相信嗎
閱讀次數:567686次
農村5萬塊就能自建房,6套普通房子設計圖分享,你沒看錯!
閱讀次數:419410次
8套農村漂亮三間平房圖片,非常適合在農村修建!
閱讀次數:411197次
農村自建房化糞池怎么做?附方案及施工過程
閱讀次數:391783次
農村一層三間平房設計圖,告別土氣養老房,讓人忍不住點贊
閱讀次數:350581次
新農村二層樓房圖片造價12萬,挑一套回家建房吧!
閱讀次數:349126次
