
|
中式別墅一直被稱為中國人的理想住宅,古典的白墻和黑瓦,精心雕刻的飛檐,非常中國風味,直到現在也受到贊揚。它不僅是一種住宅風格,而且是一艘承載著數百年住宅文化的船,在中國歷史的長河中流向遠方。在旅途中,它添加了各種新元素,使整體風格發生了質的變化,誕生了新的外觀也保留了原來的味道。本期小邊為您帶來了5個新的中國別墅設計,感覺不錯的兄弟們一起看看! 別墅圖紙一介紹:新中式風格二層住宅設計圖占地面積:15.8m*10.66m,144.5平方米; 建筑層高:二層; 建筑高度:9.53米(含屋頂);
別墅效果圖 設計功能:
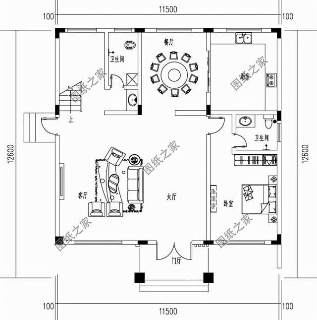
一層平面圖 一層戶型:客廳、大廳、廚房、餐廳、臥室(帶衛生間)、臥室、衛生間;
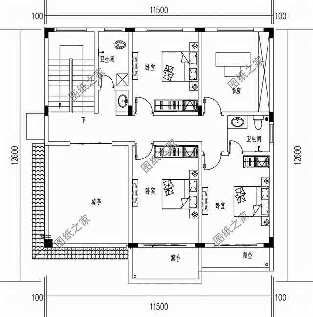
二層平面圖 二層戶型:起居室、臥室(帶衛生間)、臥室x2、衛生間、露臺、涼亭(帶頂 別墅圖二介紹:108平方米新中式小戶型二層別墅效果圖片占地面積:12m*10.5m,108平方米左右; 建筑層高:二層; 建筑高度:9.04米(含屋頂);
別墅效果圖 設計功能:
一層平面圖 一層戶型:客廳、廚房、餐廳、臥室、衛生間;
二層平面圖 二層戶型:客廳、臥室x3、衛生間、陽臺、露臺; 別墅圖三介紹:農村新中式二層別墅設計施工圖占地面積:15.6m*9.5m,141.11平方米左右; 建筑層高:二層; 建筑高度:9.52米(含屋頂);
別墅效果圖 設計功能:
一層戶型圖 一層戶型:前廳,客廳、獨立廚房(中島)、餐廳、臥室x2、衛生間;
二層戶型圖 二層戶型:客廳、臥室(帶衛生間)臥室x3、衛生間、陽臺、露臺; 別墅圖紙三介紹:130平方米現代簡約農村兩層樓房施工設計圖紙帶外觀圖建筑層高:二層; 建筑高度:9.36米(含屋頂);
正面效果圖
鳥瞰效果圖
側面效果圖 設計功能:
一層平面圖
二層平面圖 一層戶型:大廳、客廳、廚房、餐廳、臥室(帶衛生間)、衛生間; 二層戶型:臥室(帶衛生間)、臥室x2、書房、衛生間、露臺、陽臺、涼亭; 別墅圖紙四介紹:農村新中式二層別墅設計施工圖占地面積:15.6m*9.5m,141.11平方米左右; 建筑層高:二層; 建筑高度:9.52米(含屋頂);
別墅效果圖 設計功能:
一層平面圖 一層戶型:前廳,客廳、獨立廚房(中島)、餐廳、臥室x2、衛生間;
二層平面圖 二層戶型:客廳、臥室(帶衛生間)臥室x3、衛生間、陽臺、露臺; 別墅圖五介紹:120平方米新農村房屋設計圖紙占地面積:10.16m*11.3m,120平方米左右; 建筑層高:三層; 建筑高度:12.37米(含屋頂);
正面效果圖
鳥瞰效果圖
側面效果圖 設計功能:
一層平面圖 一層戶型:客廳、廚房、餐廳、臥室(帶衛生間)、衛生間;
二層平面圖 二層戶型:客廳上空、起居室、臥室(帶衛生間)、臥室x2、衛生間、陽臺;
三層平面圖 三層戶型:臥室x2、臥室(帶衛生間)、衛生間、陽臺、露臺; 圖紙之家-專注農村別墅/自建房設計18年,集合國內200余位經驗豐富的設計師,被評為口碑最好的農村建筑設計公司! |

經典小戶型雙拼二層新農村房屋住宅設計圖,含效果圖
占地:80平方米
驚艷全村的三層別墅設計圖,12×16米美觀大氣布局超合理
占地:179.8平方米
農村實用三層樓房圖片,占地140平米左右,客廳中空
占地:140平方米
一層半中式合院別墅設計圖,帶配房,有庭有院有品位
占地:135平方米左右
新中式農村自建三層別墅房屋施工,12x10米簡潔雅致
占地:121.77平方米
最美建筑四合院別墅設計方案,大氣經典,開間19米
占地:168.61平方米
帶架空層的農村一層小別墅設計圖,大氣穩重又很實用
占地:123.5平方米
20萬左右農村雙拼別墅住宅設計圖,簡單小戶型設計
占地:120平方米
現代三層農村民房設計圖及圖片,外觀高端、大氣
占地:196平方米
150平方米自建現代二層別墅施工設計圖帶外觀圖,15x10米
占地:多戶型可選
新中式三層別墅設計圖紙(含效果圖),110平農村自建房施工圖推
占地:110平方米
新款農村三拼三戶別墅設計圖及效果圖三層戶型,外觀靚麗新穎
占地:360平方米
10套農村經典二層樓房設計圖紙,多戶型,多尺寸,總有一款適合
占地:多種
簡單實用農村自建四層小別墅設計圖(三層半),95平米
占地:95平方米
兩層半20萬農村自建房,占地120平米左右
占地:120平方米
一層帶閣樓農村別墅設計圖,多得一層可變空間,太值了!
占地:165.89平方米
農村自建三間三層樓房設計圖,帶露臺,經典實用
占地:135平方米
大氣新中式三層雙拼別墅設計圖及外觀,總面寬20米多
占地:205.76平方米
農村一層四開間養老別墅設計圖,造型美布局佳
占地:164.27平方米
超大氣的農村一層雙拼自建別墅設計方案,絕對讓人羨慕的“平房
占地:424平方米
推薦:10套新農村自建房設計圖,2026年最新設計
閱讀次數:4825737次
100套鄉村別墅圖片大全,2026年最新設計
閱讀次數:2492203次
6款農村蓋一層平房的設計圖,10萬元就能建起來
閱讀次數:1852637次
這11個一層農村自建房別墅火爆了朋友圈!我最喜歡戶型十!你呢
閱讀次數:750268次
農村6萬元建一層小別墅圖,你敢相信嗎
閱讀次數:567686次
農村5萬塊就能自建房,6套普通房子設計圖分享,你沒看錯!
閱讀次數:419410次
8套農村漂亮三間平房圖片,非常適合在農村修建!
閱讀次數:411197次
農村自建房化糞池怎么做?附方案及施工過程
閱讀次數:391783次
農村一層三間平房設計圖,告別土氣養老房,讓人忍不住點贊
閱讀次數:350581次
新農村二層樓房圖片造價12萬,挑一套回家建房吧!
閱讀次數:349126次
