
|
據不完全統計,回鄉建房者的年紀大部分是70/80后,在這批人中他們更加鐘意新中式別墅設計風格。除了滿足日常的居住功能之外,風格主題表達出來的古典大氣,也越來越受到人們的好評與喜愛!在沉穩的古式傳統住宅中加入了更符合現在人們的流行因素,使得新中式風格更加鮮活與靈動,具有不是傳統與時俱進的時尚,本期小編就整理出來了五款新中式別墅設計合集感興趣的朋友們可以隨我一起來看看。 別墅圖一展示占地面積:16.9m*15.45m,239.96平方米左右; 建筑層高:一層; 建筑結構:框架結構; 主體造價:24萬左右;
別墅效果圖 建筑高度:8.414米(含屋頂); 設計功能:
一層戶型圖 一層戶型:客廳、廚房、餐廳、臥室(帶衣帽間、衛生間)x2、臥室(帶衣帽間)、衛生間 別墅圖二展示:占地面積:14.4m*12.4m,152.64平方米左右; 建筑層高:二層; 建筑高度:10.249米(含屋頂);
別墅效果圖 設計功能:
一層戶型圖 一層戶型:玄關、客廳、廚房、餐廳、臥室(帶衛生間)、臥室、衛生間;
二層戶型圖 二層戶型:起居室、健身區、臥室(帶衛生間)、臥室x2、衛生間、儲物間、陽臺; 別墅圖三展示:占地面積:12m*15m,140.74平方米左右;
正面效果圖
鳥瞰效果圖
側面效果圖
一層平面圖
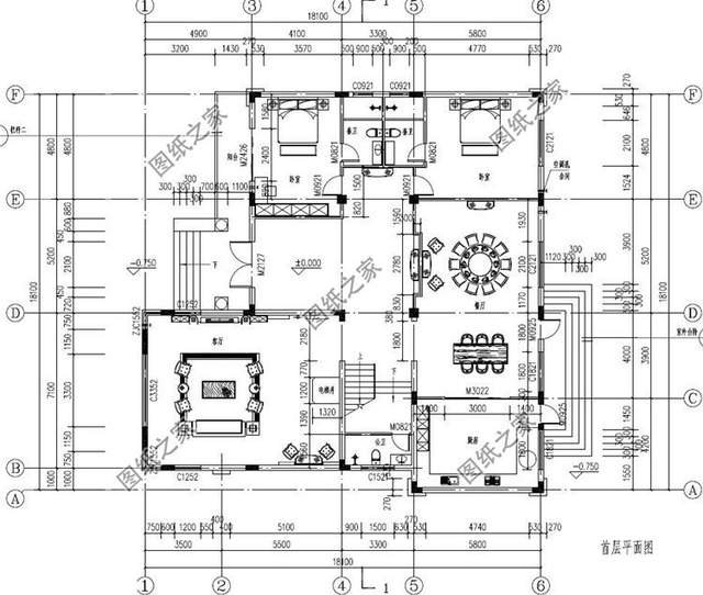
二層平面圖 二層戶型:起居室、臥室(帶衣帽間、衛生間)x2、臥室、陽臺; 別墅圖四展示:占地面積:18.1m*18.1m,275.06平方米左右;
正面效果圖
鳥瞰效果圖
側面效果圖
一層平面圖
二層平面圖 二層戶型:客廳上空、臥室(帶書房,衣帽間,衛生間,陽臺)、臥室x2、衛生間、電梯;
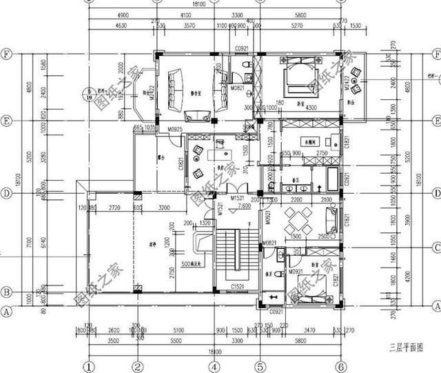
三層平面圖 三層戶型:臥室(帶書房,衣帽間,衛生間,陽臺)臥室(帶衛生間、小客廳)、影音室、露臺 別墅圖五展示:占地面積:13.8m*11.1m,135.47平方米左右; 建筑層高:二層; 建筑高度:8.788米(含屋頂);
別墅效果圖 設計功能:
一層戶型圖 一層戶型:堂屋、客廳、餐廳、廚房、臥室x2、衛生間;
二層戶型圖 二層戶型:客廳、書房、臥室x3、衛生間、露臺; 圖紙之家-專注農村別墅/自建房設計18年,集合國內200余位經驗豐富的設計師,被評為口碑最好的農村建筑設計公司! |

簡約實用農村自建房戶型圖,美觀經濟又通透,南北通透住得爽!
占地:160.6平方米
2026新款農村15萬元二層小樓圖,占地90平米左右
占地:多種戶型
帶車庫農村二層雙拼別墅設計圖,外觀現代
占地:235平方米
三層新農村別墅設計圖片及全套圖紙,外形對稱,帶露臺,這個戶
占地:160平方米
開間12米的三層簡歐別墅設計圖,農村建房布局實用住的舒服
占地:108.15平方米
農村中式二層雙拼四合院別墅設計圖,兄弟父母三戶典雅大氣
占地:360平方米
仿古中式四合院別墅設計戶型圖,外觀圖古典風格
占地:524平方米
高端三層豪宅別墅設計方案圖,帶地下室,過悠然愜意生活
占地:127.06平方米
20萬左右歐式二層小別墅設計圖,100平米和130兩個戶型
占地:多種戶型
新中式農村三層四合院別墅設計圖,四合院風格的別墅圖
占地:177平方米
農村一層養老別墅設計圖,14.8x17.9米,戶型對稱,實用布局
占地:193平方米
農村兩間兩層樓房設計圖,造價15萬左右,獨立的廚房設計,干凈
占地:95平方米
農村自建一層房子設計圖,大開間小進深,20米x10米
占地:188平方米
農村帶車庫兩層歐式農村別墅設計圖紙,占地220平方米左右
占地:221平方米
農村三層雙拼別墅戶型圖及全套施工圖紙,帶書房,帶衣帽間
占地:260平方米
農村小別墅一層設計圖紙,全套施工圖兩款戶型可選
占地:多種戶型可選
農村自建三層別墅設計圖,開間17米進深13米,外觀對稱設計
占地:187.6平方米
四層簡單新農村房屋設計圖紙,造價低,適合農村自建
占地:多種戶型
新農村中式一層三合院效果圖及全套設計圖,喜歡合院的有福了
占地:118平方米
農村自建三間三層樓房設計圖,帶露臺,經典實用
占地:135平方米
推薦:10套新農村自建房設計圖,2026年最新設計
閱讀次數:4825737次
100套鄉村別墅圖片大全,2026年最新設計
閱讀次數:2492203次
6款農村蓋一層平房的設計圖,10萬元就能建起來
閱讀次數:1852637次
這11個一層農村自建房別墅火爆了朋友圈!我最喜歡戶型十!你呢
閱讀次數:750268次
農村6萬元建一層小別墅圖,你敢相信嗎
閱讀次數:567686次
農村5萬塊就能自建房,6套普通房子設計圖分享,你沒看錯!
閱讀次數:419410次
8套農村漂亮三間平房圖片,非常適合在農村修建!
閱讀次數:411197次
農村自建房化糞池怎么做?附方案及施工過程
閱讀次數:391783次
農村一層三間平房設計圖,告別土氣養老房,讓人忍不住點贊
閱讀次數:350581次
新農村二層樓房圖片造價12萬,挑一套回家建房吧!
閱讀次數:349126次
