
|
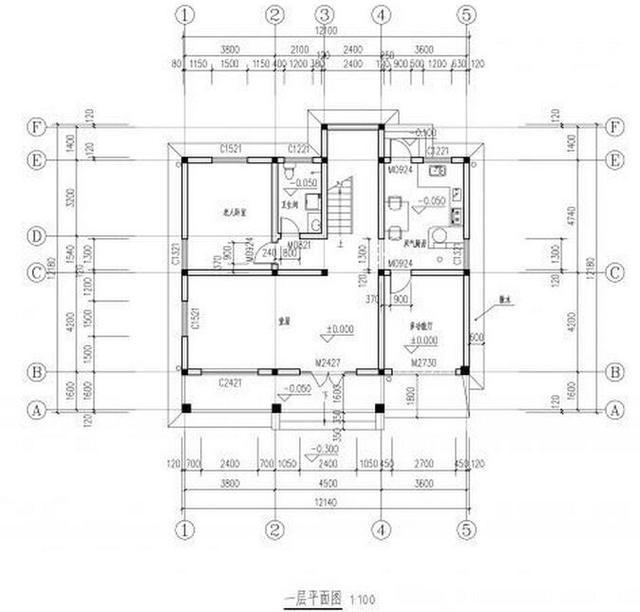
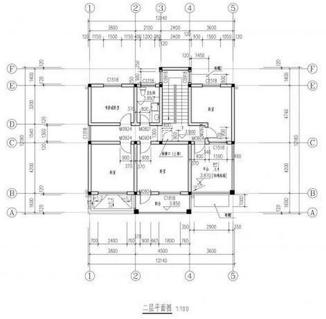
家在中原,房屋是按坐北朝南建的,習慣性保留了堂屋。曾經考慮過中式是否是要再建東西屋、廚房、雜物房?后來再三思考,只是單純覺著過去的房子是防潮不好,建兩層可以避免。二層簡單一點的別墅圖
元旦帶回農村老家的圖紙,交給當地建筑師傅,開始施工,開始心里很忐忑,不知道這地方游擊隊能不能看懂正規軍的圖紙。接觸后發現地師水平還是比較高的
真心話:給我設計圖紙時,兩個工程師對一處有爭議,沒有定死,就以一位工程師的意見定了圖紙,另一個工程師認為不太妥,讓我跟地師商量。地師拿到圖紙后,一眼就看出了那個地方,并提出自己的意見,這意見竟跟后一位工程師一樣。地師馬上讓我充滿了信心。 原生態圖,留個紀念。
從開挖到做好墊層的過程圖片
冬天開工的,進度要慢點
人工費人均180元/平,老師傅260 ,小工160 ,木工80,材料自己買,總共下來估計20多 各位老板,我這出價還行吧,你們那是多少?
兩周沒回,房子已起一層,速度比計劃中要快。也辛苦老父親了,既要上班,又要照顧施工,晚上還要睡在外面照看材料。
房頂做了較大幅度的修改,取消了檐口設計,變成了房檐設計。剛下的一場雪造成師傅家鄰居房頂上的雪在稍微融化后一下子出溜下來了,如果是檐口結構,恐怕全給推壞了,基于此,修改了。
經歷了一場風雪之后,師傅們毅然把主體立了起來
出具雛形了,不過跟設計效果還是有不少差距,不過也難為這些工友了。
最后總結下蓋完房的一些經驗分享給各位: 1、冬天反季節施工真的很麻煩,有些困難是想象不到的,; 2、經濟適用的第一要點就是在于堅守建房的初衷:就是住著舒適,外觀上大方簡潔,其他花哨的設計盡量不用就不用,畢竟農村施工隊水平還是有限; 3、房間數量盡量要多,避免逢年過節家里回來人不夠用的尷尬處境,缺少中式元素也是心里的一點遺憾; 4、一定要在建房過程中多與施工隊交流,畢竟房子是自己住,人家只有圖紙,不一定能理解你的想法,這點特別重要,切記! 如果能有幫到各位一丁點兒,動動小手分享給周圍更多正在或者準備建房的朋友吧,沒準兒正是他們需要看到的! 圖紙之家-專注農村別墅/自建房設計18年,集合國內200余位經驗豐富的設計師,被評為口碑最好的農村建筑設計公司! |

農村二層半樓房效果圖及全套設計圖紙,自建房簡單實用
占地:121平方米
四開間2層別墅設計圖,外觀圖配色清新淡雅,占地200平米
占地:200平方米
新農村田園風格兩層半別墅設計圖,外觀造型非常漂亮
占地:147.8平方米
新農村一層平屋頂簡單自建房別墅設計圖紙,全套設計
占地:130平方米
適合小面寬宅基地的兩開間別墅設計圖,8.5米乘13.5米
占地:107.66平方米
農村二層半兄弟共建房別墅設計圖,復式戶型帶車庫,面寬24米
占地:312平方米左右
精致小巧新農村二層別墅設計圖紙,占地90平米左右,造價15萬左
占地:90平方米
私人二層農村小樓設計圖,外觀靚麗,富有現代氣息
占地:160平方米
農村一層7字型平房別墅設計圖,“L”自行戶型,外觀簡約低調
占地:213.39平方米
二層半新中式別墅設計圖,農村自建24萬,帶庭院規劃設計
占地:140.68平方米
全套歐式二層別墅設計cad圖紙,含效果圖,帶車庫
占地:211平方米
中式四合院風格別墅設計圖,平屋頂,書房、茶室、健身房一應俱
占地:370平方米
2026年新款二層半農村自建小別墅設計圖紙,占地150平方米
占地:150平方米
奢華歐式二層樓房設計圖,入戶設有玄關,一層大窗設計
占地:190平方米
二層復式農村別墅設計圖,進深12米,戶型堪稱完美
占地:193.2平方米
農村27萬二層自建別墅設計圖,占地140平米左右,戶型極好
占地:140平方米
最新140平米三層自建房屋設計圖紙,本戶型帶小院
占地:140平米
15米面寬田園風一層別墅!戶型新穎太吸睛,看過都想建
占地:141.13平方米
農村二層半新中式小別墅設計圖(帶閣樓層),二層半自建房戶型
占地:144平方米
二層美式自建別墅設計圖,全套施工圖+外觀效果圖
占地:145平方米
推薦:10套新農村自建房設計圖,2026年最新設計
閱讀次數:4825737次
100套鄉村別墅圖片大全,2026年最新設計
閱讀次數:2492203次
6款農村蓋一層平房的設計圖,10萬元就能建起來
閱讀次數:1852637次
這11個一層農村自建房別墅火爆了朋友圈!我最喜歡戶型十!你呢
閱讀次數:750268次
農村6萬元建一層小別墅圖,你敢相信嗎
閱讀次數:567686次
農村5萬塊就能自建房,6套普通房子設計圖分享,你沒看錯!
閱讀次數:419410次
8套農村漂亮三間平房圖片,非常適合在農村修建!
閱讀次數:411197次
農村自建房化糞池怎么做?附方案及施工過程
閱讀次數:391783次
農村一層三間平房設計圖,告別土氣養老房,讓人忍不住點贊
閱讀次數:350581次
新農村二層樓房圖片造價12萬,挑一套回家建房吧!
閱讀次數:349126次
