
|
中國幅員遼闊,鄉村生活舒適、灑脫。尤其是在北方農村,宅基地較大,家家戶戶都有小院,建兩三層的房子有點浪費,一層夠住,剛剛好,健身房之類的完全可以交給小院。圖紙之家下面就為大家分享3套15萬元以內農村別墅圖,看看你更喜歡哪套呢?
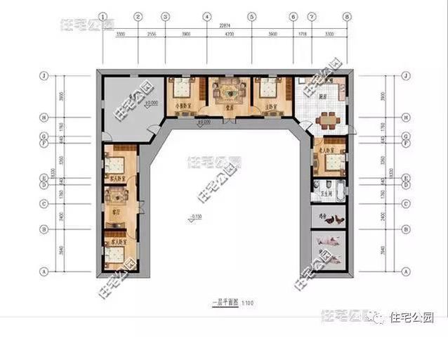
第一套:
此別墅開間大小為22.874米,進深18.5米,是一個三合院的設計。灰色的屋頂、白色的外墻,木質的門窗,再掛上幾個大紅燈籠,古樸、唯美而又田園。 平面布局圖: 住房中間是堂屋,兩側分布著兩個臥室;東側的廂房是老人房、衛生間、雞舍和豬圈;西側的廂房中間是客廳,兩側同樣是兩個房間;廚房在主房和東側廂房的拐角處,主房和西側廂房的拐角處是倉庫。
第二套:
此別墅開間13米,進深11.68米,車庫挨著房子,以一個車棚的形式存在,是一個簡單的一層小別墅。院中有池塘、盆栽、花池,生活寧靜、愜意。 平面布局圖: 此戶型設有3個臥室、1客廳、1餐廳、1廚房、1衛生間、1儲藏室。
第三套:
此別墅開間大小為20米,進深12米,小院中種滿綠植,院內是一個白色的小房子,干凈、素雅,與綠色小院對比鮮明。別墅中間是一個弧形落地窗式的入戶門,充滿了現代的美感。 平面布局圖: 此戶型有4個臥室,其中3個在陽面,主臥有獨立衛生間。客廳和餐廳在北側,廚房在房子后面一個凸出的地方,開有后門,為半開放式的。此外,房子西側還有封閉式車庫和倉庫。
這三套一層農家小院,你更喜歡哪套呢?
圖紙之家-專注農村別墅/自建房設計18年,集合國內200余位經驗豐富的設計師,被評為口碑最好的農村建筑設計公司! |

120平方米農村四層別墅設計圖,含全套施工圖
占地:120平方米
造價30萬多的三層簡歐新農村別墅設計施工圖紙及效果圖
占地:133平方米左右
簡歐式三層小別墅設計圖,帶地下室,客廳中空,占地150平米
占地:150平方米
帶架空層的三層農村別墅設計火了!雨季不怕返潮
占地:147.15平方米
農村16萬一層平房小院設計圖,左右對稱布局好,南北方都能建
占地:195.9平方米
農村二層半新中式小別墅設計圖(帶閣樓層),二層半自建房戶型
占地:144平方米
開間9到10米簡約別墅設計圖紙帶效果圖,全套別墅設計方案
占地:122平方米
經典三層別墅設計圖,時尚典雅美觀大氣,新農村自建的理想之選
占地:119.45平方米
時尚二層現代風別墅設計圖紙,平屋頂方案13×10米
占地:98平方米
六開間三層農村自建別墅設計圖,盡享豪華舒適生活
占地:341.91平方米
50萬左右農村三層別墅設計圖紙,帶大露臺,外觀大氣
占地:150平方米
獨棟兩層歐式別墅設計圖紙(效果圖+建筑施工圖)
占地:125平方米
16×12米二層歐式帶車庫農村小別墅,既舒適又美觀
占地:180平方米
一層農村自建房設計,背面不開窗,15乘10米,內部布局實用
占地:多戶型可選
現代別墅設計圖紙帶效果圖,85平、100平、145平三個戶型方案
占地:多種戶型
一層共用,二層兄弟雙拼的二層別墅設計圖
占地:182.48平方米
130平方米農村兩層別墅圖紙及效果圖12X11米
占地:133平方米
14米乘10米農村二層別墅新款,外觀對稱設計,經久耐看!
占地:140平方米
仿古建筑中式祠堂設計圖紙及外觀效果圖
占地:546平方米
推薦:10套新農村自建房設計圖,2026年最新設計
閱讀次數:4825737次
100套鄉村別墅圖片大全,2026年最新設計
閱讀次數:2492203次
6款農村蓋一層平房的設計圖,10萬元就能建起來
閱讀次數:1852637次
這11個一層農村自建房別墅火爆了朋友圈!我最喜歡戶型十!你呢
閱讀次數:750268次
農村6萬元建一層小別墅圖,你敢相信嗎
閱讀次數:567686次
農村5萬塊就能自建房,6套普通房子設計圖分享,你沒看錯!
閱讀次數:419410次
8套農村漂亮三間平房圖片,非常適合在農村修建!
閱讀次數:411197次
農村自建房化糞池怎么做?附方案及施工過程
閱讀次數:391783次
農村一層三間平房設計圖,告別土氣養老房,讓人忍不住點贊
閱讀次數:350581次
新農村二層樓房圖片造價12萬,挑一套回家建房吧!
閱讀次數:349126次
