
|
一棟合格的房子要經得住歲月的摧殘和時間的侵蝕,經久不衰,歷經玩還滄桑依舊牢固。這才是人們心中的好房子。今天圖紙之家為大家準備了幾套新款農村三層樓房圖片。套套美觀大氣,經得起時間的推敲,耐得住潮流的變化。
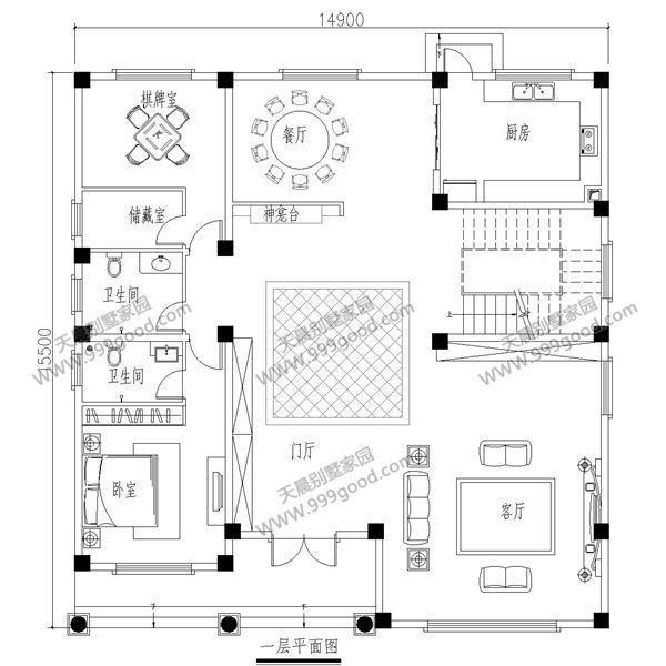
戶型一:
此戶型是三層,外觀造型優美,大落地窗和挑空客廳大氣美觀,方正戶型轉腳霸氣,增加別墅的立體效果。
別墅一層進門右邊是客廳,兩臥室對面而設,方便戶型照應起居生活。一體化的客廳和樓梯設計襯托客廳的大氣。
為滿足家人更好的生活需求,設計了豐富的陽臺樓臺和棋牌室,可以讓家人肆意享受生活的美好。
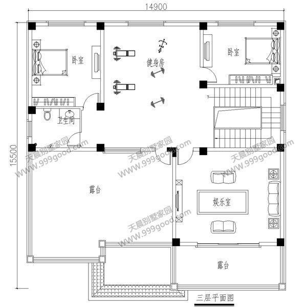
戶型二:
戶型大方,恢弘大氣,紅色的瓷磚和米白的涂料,由深入淺循序漸進。別墅沉穩適合居住。
戶型合理,布局細膩考究,注重自然光的攝入。別墅正立面超大面積的落地窗在正好更好的獲得穩定的光照。
臥室設2間,中間用來設置健身房,靠近南面的是娛樂室和露臺,盡情享受午后休閑的時光。
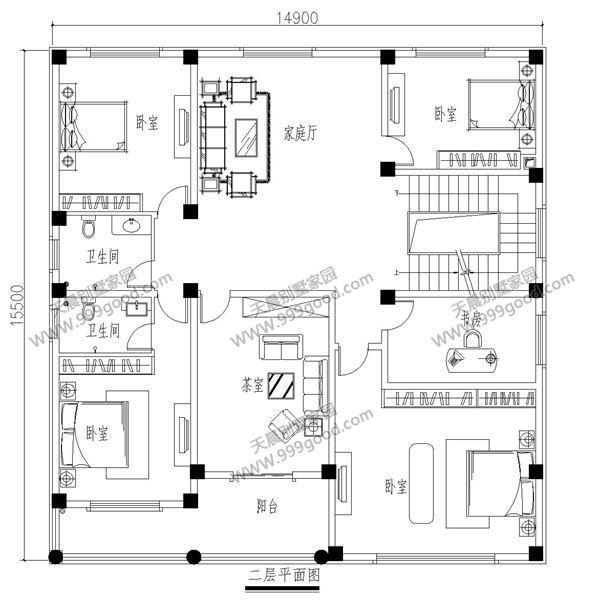
戶型三:
此套戶型可以認為是三層半戶型,帶地下室配上額外的生活設施,讓生活根回歸大自然,放松疲憊的心。
別墅首層為保證室內良好的生活居住條件,北面同時開門,臨近餐廳,用餐時正好享受室外的風景。提升生活的意境。
主臥通過書房和衣帽間作為屏障,更好地保護戶主的隱私。享受寧心靜氣的優雅生活。
三層避免施工繁瑣,格局差不多。簡約大氣格局卻不簡單,適應生活的方方面面。
圖紙之家-專注農村別墅/自建房設計18年,集合國內200余位經驗豐富的設計師,被評為口碑最好的農村建筑設計公司! |

經典農村三層樓房設計圖,10個不同尺寸戶型,各種戶型供您選擇
占地:多種
開間20米雙拼別墅三層設計圖,兄弟合建省時省力又省心
占地:205.8平方米
185平米自建三層別墅房屋施工設計圖紙及效果圖
占地:187平方米
新農村二層帶庭院的小別墅設計圖及效果圖
占地:137平方米
20萬農村二層小洋樓設計圖,帶鍋爐房,漂亮簡單實用
占地:165平方米
建房老師傅力薦!這塊二層簡歐設計圖,花錢少、顏值高,必火
占地:131.65平方米
中國最好看的二層農村房子圖片及施工圖紙,20萬現代風格
占地:130平方米
單棟多戶三層別墅設計圖,適合兩三家一起住
占地:125平米
農村三層雙拼別墅戶型圖設計圖,整體外觀氣派
占地:220平方米
二層現代別墅設計圖及效果圖,外觀美觀,大氣
占地:195平方米
偏徽派風格民居三層農村住宅設計圖,白墻黛瓦的古雅簡潔
占地:101.01平方米
古典韻味的四層房屋設計圖,占地140平米左右,這樣的外觀配上紅
占地:140平方米
95平米二層別墅必蓋戶型圖,造型洋氣,布局接地氣,趕緊回村建
占地:95.38平方米
獨棟別墅設計戶型圖帶外觀效果圖,雙向樓梯設計
占地:155平方米
雙拼豪華高端三層別墅設計圖,外觀效果圖大氣
占地:300平方米
2026農村漂亮的一層平房圖片平面圖與全套施工圖紙,戶型周正
占地:150平方米
進深9米的農村自建一層養老房戶型方案,三室二廳兩衛
占地:133.2平方米
倆兄弟蓋房子的雙拼設計圖,小宅基地設計方案
占地:151.91平方米
農村一層中式三合院別墅戶型圖,這才是適合中國人建的好房子
占地:218.77平方米
小戶型二層四合院別墅設計圖,含外觀效果圖,小宅基地選擇
占地:134平方米
推薦:10套新農村自建房設計圖,2026年最新設計
閱讀次數:4825737次
100套鄉村別墅圖片大全,2026年最新設計
閱讀次數:2492203次
6款農村蓋一層平房的設計圖,10萬元就能建起來
閱讀次數:1852637次
這11個一層農村自建房別墅火爆了朋友圈!我最喜歡戶型十!你呢
閱讀次數:750268次
農村6萬元建一層小別墅圖,你敢相信嗎
閱讀次數:567686次
農村5萬塊就能自建房,6套普通房子設計圖分享,你沒看錯!
閱讀次數:419410次
8套農村漂亮三間平房圖片,非常適合在農村修建!
閱讀次數:411197次
農村自建房化糞池怎么做?附方案及施工過程
閱讀次數:391783次
農村一層三間平房設計圖,告別土氣養老房,讓人忍不住點贊
閱讀次數:350581次
新農村二層樓房圖片造價12萬,挑一套回家建房吧!
閱讀次數:349126次
