
|
現在很是流行鄉村別墅,新農村規劃也讓越來越多的人向往擁有一套屬于自己的自建房。其實,一套自建房的造價要遠低于城市一套房子的價格,其空間大小格局構造也是商品套房所不能比的。如果你有一塊地,不妨建造一棟屬于自己的房子,享受一下獨棟別墅生活。 今天就為大家推薦一款經濟實用,尺寸大小適中,適合大多數家庭的樓房設計圖,內部布局合理,依照老百姓的生活方式設計的農村自建房。
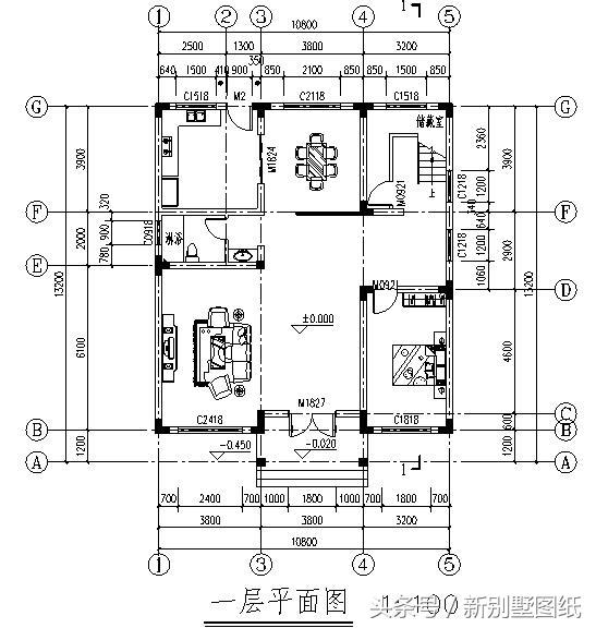
圖片編號:03170101 ▲圖片編號:03170101 別墅基本信息
面寬:10.8米 進深:13.2米 占地面積:142.6平方米 建筑總面積:370平米(不含入戶平臺、陽臺、露臺) 總層高:12.1米 屋檐口高:9.9米 建筑結構:框架結構 三大材料用量預算: 磚:162立方 混凝土:142立方 鋼筋:19.8噸 毛坯造價:33萬左右 框架造價:50萬以內
點擊查看大圖 該戶型外觀造型簡潔大方,平面布置緊湊、經濟實用、外墻色彩明朗溫馨,房間尺度設計適宜,空間利用率高,造價適中,并富有新農村時代氣息。 功能設計一層設計:客廳、門廳、衛生間、廚房、臥室、儲藏間、餐廳等; 二層設計:主臥室、次臥2、書房、客廳、衛生間; 三層設計:客廳、臥室2、衛生間1、露臺等自定義;
點擊查看大圖
點擊查看大圖
點擊查看大圖
點擊查看大圖 小編個人最喜歡這套建筑,陽臺、露臺都有,配色鮮明,一二層對稱,第三層又解決了對稱給人帶來的死板,戶型方正、南北通透,住著肯定舒服。
(樓梯詳圖)點擊查看大圖 其實,現在農村人蓋別墅早就不是什么新鮮事了。以前我們蓋房,家家戶戶都長一個樣,因為大家都沒錢,日子緊巴巴。現在不一樣了,大家都想蓋一棟時尚的小別墅,都想與鄰居家的不同,那么:如果在農村蓋房子,你會選擇專業設計的圖紙?還是照著別人家的樣子蓋呢? 本套圖紙明細如下:
圖紙明細表,歡迎詳詢 圖紙之家-專注農村別墅/自建房設計18年,集合國內200余位經驗豐富的設計師,被評為口碑最好的農村建筑設計公司! |

面寬13米二層新農村別墅自建房設計圖,功能實用,外觀大氣
占地:168.96平方米
高顏值農村二層別墅設計圖,顏值在線造價不高,建房好選擇!
占地:216.93平方米
小戶型徽派建筑別墅設計方案大全,三層別墅設計圖推薦
占地:95平方米
農村四間兩層樓房設計圖,外觀時尚,戶型實用
占地:180平方米
高端三層獨棟歐式別墅效果圖,帶大衛生間,CAD全套施工設計圖
占地:158平方米
110平房子設計圖,經典的農村自建房屋設計圖
占地:110平方米
歐式新農村三層復式樓自建房別墅圖紙,旋轉樓梯設計
占地:128平方米
時尚的農村二層別墅圖紙設計,現代風格,簡約的外觀
占地:152平方米左右
面寬9米的三層農村自建房設計圖,適合鄉下地區自建
占地:121.94平方米
現代風平屋頂一層自建房設計,經濟時尚
占地:147.17平方米
平屋頂12米寬別墅三層設計圖,平頂照樣建的漂亮
占地:129.6平方米
農村建房兄弟雙拼兩層住宅設計圖,單戶150平米左右
占地:300平方米
不帶廚房餐廳的二層別墅設計圖,農村建房很多人都這樣做
占地:124平方米左右
三層歐式自建房別墅設計方案,11x11米洋氣實用,飽受大家好評
占地:127平方米
新農村二層住宅設計圖紙,簡單別墅設計圖(含效果圖)
占地:77.6平方米
100平方米農村二層CAD設計圖紙帶外觀圖,12X8米
占地:100平方米
新農村二層帶露臺經濟型小別墅設計圖紙,含外觀效果圖
占地:120平方米
農村4間2層樓房設計圖,帶車庫,外觀時尚,帶屋頂花園
占地:210平方米
新農村自建三層樓房設計圖紙,外觀簡單大方
占地:137平方米
三層新農村自建小型別墅設計圖及效果圖,三間三層樓房戶型
占地:114平方米
推薦:10套新農村自建房設計圖,2026年最新設計
閱讀次數:4825737次
100套鄉村別墅圖片大全,2026年最新設計
閱讀次數:2492203次
6款農村蓋一層平房的設計圖,10萬元就能建起來
閱讀次數:1852637次
這11個一層農村自建房別墅火爆了朋友圈!我最喜歡戶型十!你呢
閱讀次數:750268次
農村6萬元建一層小別墅圖,你敢相信嗎
閱讀次數:567686次
農村5萬塊就能自建房,6套普通房子設計圖分享,你沒看錯!
閱讀次數:419410次
8套農村漂亮三間平房圖片,非常適合在農村修建!
閱讀次數:411197次
農村自建房化糞池怎么做?附方案及施工過程
閱讀次數:391783次
農村一層三間平房設計圖,告別土氣養老房,讓人忍不住點贊
閱讀次數:350581次
新農村二層樓房圖片造價12萬,挑一套回家建房吧!
閱讀次數:349126次
