
|
古典大氣的法式別墅能瞬間提升房屋的檔次,讓你在眾多平凡農村自建房中脫穎而出。它代表的不僅是浪漫,還是面子和地位的象征,這也是為什么而大多數網民朋友喜歡建法式別墅的原因。今天小編為大家介紹這么一套獨棟別墅設計。涵蓋了法式的浪漫和歐式的時尚。
別墅平面圖:地下室是別墅的基礎部分,需要花費大量的資金和精力來打理,裝修好的地下室能為生活帶來便捷。這套戶型地下室設有車庫,臥室和家庭影院。
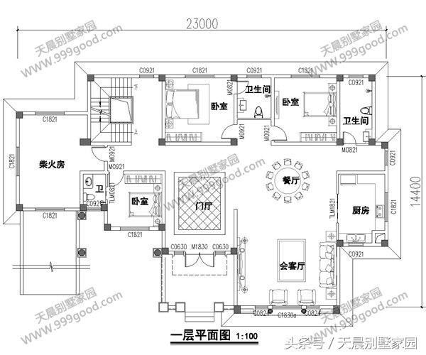
首層臥室的布局和地下室層相似,方便排水。廚房推拉門節省了大量的生活空間,為了實保持居室的整齊美觀,柴火房獨立不影響生活又與生活相聯系。
二層空間布局之間聯系緊密,布局緊湊。主臥帶衣帽間,家庭廳更提升別墅的氣質。
別墅屋頂層平面圖:
別墅立面圖:
圖紙之家-專注農村別墅/自建房設計18年,集合國內200余位經驗豐富的設計師,被評為口碑最好的農村建筑設計公司! |

10套農村經典二層樓房設計圖紙,多戶型,多尺寸,總有一款適合
占地:多種
最好看的農村三層樓房設計圖,占地113平米,小平米大格局
占地:110平方米
新農村二層自建房設計圖帶外觀圖片,自建戶型大全
占地:160平方米
150平方米自建現代二層別墅施工設計圖帶外觀圖,15x10米
占地:多戶型可選
經典農村三層樓房設計圖,10個不同尺寸戶型,各種戶型供您選擇
占地:多種
180平方別墅房屋設計圖,外觀效果圖美觀
占地:180平方米
面寬8米多的三層農村別墅設計圖,小開間宅基地推薦
占地:112.82平方米
240平方米新農村四合院兩層樓房施工設計圖紙帶外觀圖
占地:234平方米
面寬13米簡簡單單一層農村自建別墅設計圖,方正大氣經濟宜居
占地:126.1平方米
小青瓦一層中式小院三合院設計施工圖,白墻青瓦古色古香
占地:155.3平方米
農村7字形漂亮房子設計圖及外觀效果圖
占地:189.3平方米
8.5×12米四層歐式房屋設計圖紙,占地100平,落地窗中嵌入了雕花
占地:100平方米
帶架空層的一層自建房太香了!防潮、停車、儲物全兼顧
占地:152.06平方米
高端三層新中式農村別墅設計圖,仿合院布局,外觀霸氣
占地:133.64平方米
歐式三層小洋樓設計圖,歐式最美三層別墅外觀效果圖
占地:124.28平方米
農村三間兩層樓房設計圖,帶外觀效果圖
占地:140平方米
新農村住宅設計圖紙含效果圖,方方正正的別墅方案
占地:134平方米左右
12×12米農村二層經濟型自建房設計圖,設計了6間臥室
占地:140平方米
帶院子的四間二層別墅房屋設計圖,帶獨立車庫
占地:350平方米
新農村三層房屋設計圖紙(含效果圖),農村小別墅圖紙推薦
占地:116.15平方米
推薦:10套新農村自建房設計圖,2026年最新設計
閱讀次數:4825737次
100套鄉村別墅圖片大全,2026年最新設計
閱讀次數:2492203次
6款農村蓋一層平房的設計圖,10萬元就能建起來
閱讀次數:1852637次
這11個一層農村自建房別墅火爆了朋友圈!我最喜歡戶型十!你呢
閱讀次數:750268次
農村6萬元建一層小別墅圖,你敢相信嗎
閱讀次數:567686次
農村5萬塊就能自建房,6套普通房子設計圖分享,你沒看錯!
閱讀次數:419410次
8套農村漂亮三間平房圖片,非常適合在農村修建!
閱讀次數:411197次
農村自建房化糞池怎么做?附方案及施工過程
閱讀次數:391783次
農村一層三間平房設計圖,告別土氣養老房,讓人忍不住點贊
閱讀次數:350581次
新農村二層樓房圖片造價12萬,挑一套回家建房吧!
閱讀次數:349126次
