
|
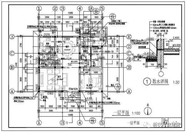
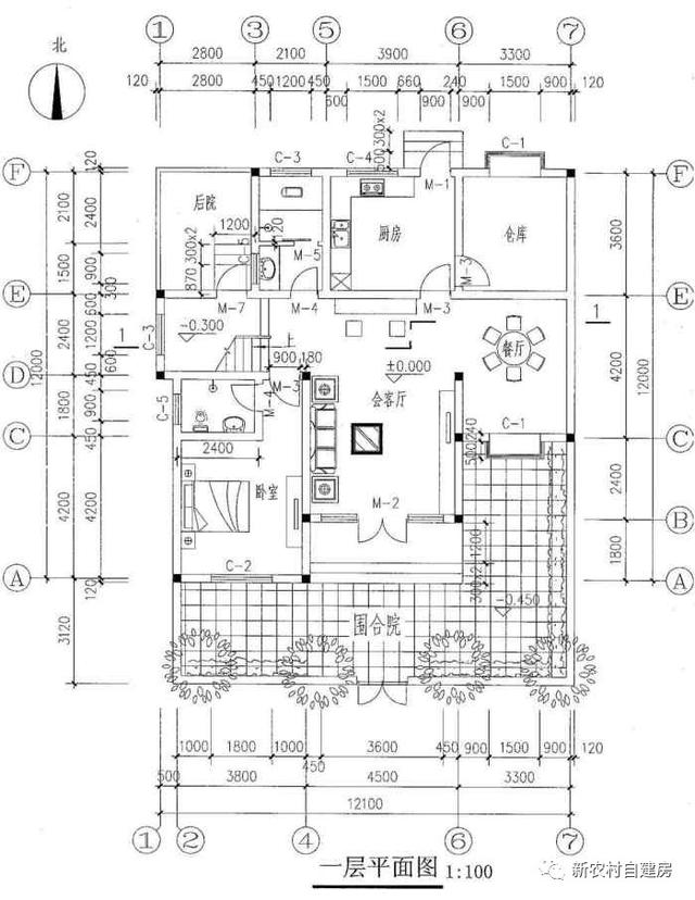
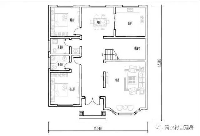
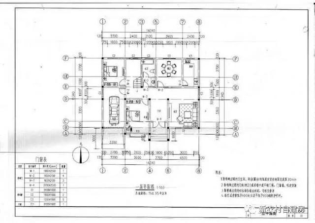
最近這部《人民的名義》到處被刷屏 它不是武俠劇,不是言情劇,韓劇 就是這樣的部反腐劇 紅遍了網絡 但是今天的主題根這部電視劇其實沒有太多的關系 我只是為了追追熱點 這樣就能第一時間給大家推薦好的圖紙了 10套20萬農村小別墅圖片,戶型都很實用,最重要的是經濟。 戶型一
戶型二
戶型三
戶型四
戶型五
戶型六
戶型七
戶型八
戶型九
戶型十
看著人民的名義里貪了2億多的現金卻不敢用, 覺得很傻,很苦逼是不是 所以錢再多,也只是一個數字 要把每一塊錢,都用在實處 建房子也是一樣 把錢用在實處, 建一套自己滿意,舒適的房子。 圖紙之家-專注農村別墅/自建房設計18年,集合國內200余位經驗豐富的設計師,被評為口碑最好的農村建筑設計公司! |

140平三層別墅房屋設計圖,含外觀圖片,外觀現代時尚
占地:143平方米
時尚漂亮的二層小洋樓設計圖,設計師建房都選這個方案
占地:149.27平方米
125平方米新農村三層自建別墅施工設計圖,13x10米
占地:125平方米
帶地下室的農村三層雙拼別墅設計圖,復式戶型,面寬23米
占地:261.6平方米左右
獨棟別墅設計戶型圖帶外觀效果圖,雙向樓梯設計
占地:155平方米
130平方米新農村三層房屋設計圖紙,外觀簡單大方
占地:130平方米
爆款120平米三層農村別墅房屋設計圖,室內布局功能齊全,色彩搭
占地:120平方米
現代風平屋頂一層自建房設計,經濟時尚
占地:147.17平方米
農村四層樓房設計圖,含外觀圖片,自建四層房屋推薦
占地:140平方米
120平方米新農村四層別墅設計圖紙12X10米50萬以內
占地:120平方米
最好看的農村三層樓房設計圖,占地113平米,小平米大格局
占地:110平方米
新農村二層房屋設計圖紙(全套建筑施工圖紙+外觀效果圖)
占地:85平方米
170平方米農村二層小別墅設計圖及效果圖
占地:170平方米
經典美式二層小別墅設計圖,回鄉建房不可不看的經典之作
占地:109.33平方米
美觀大氣二層歐式別墅設計圖,外觀效果圖高端上檔次
占地:189.8平方米
對稱設計二層歐式別墅設計圖,優雅時尚有品位
占地:151.85平方米
回農村建養老房,還是一層平頂戶型最合適,不單單只是省錢
占地:102.24平方米
農村30萬別墅款式三層設計圖紙,帶地下儲藏室,挑空客廳
占地:110平方米
造價15萬經濟美觀一層農村別墅設計圖,占地150平米
占地:多戶型可選
12x10三層別墅設計圖,農村自建房推薦戶型
占地:120平方米
推薦:10套新農村自建房設計圖,2026年最新設計
閱讀次數:4825737次
100套鄉村別墅圖片大全,2026年最新設計
閱讀次數:2492203次
6款農村蓋一層平房的設計圖,10萬元就能建起來
閱讀次數:1852637次
這11個一層農村自建房別墅火爆了朋友圈!我最喜歡戶型十!你呢
閱讀次數:750268次
農村6萬元建一層小別墅圖,你敢相信嗎
閱讀次數:567686次
農村5萬塊就能自建房,6套普通房子設計圖分享,你沒看錯!
閱讀次數:419410次
8套農村漂亮三間平房圖片,非常適合在農村修建!
閱讀次數:411197次
農村自建房化糞池怎么做?附方案及施工過程
閱讀次數:391783次
農村一層三間平房設計圖,告別土氣養老房,讓人忍不住點贊
閱讀次數:350581次
新農村二層樓房圖片造價12萬,挑一套回家建房吧!
閱讀次數:349126次
