
|
本案設計為富陽客戶定制民宅,源于一位有個性的客戶,想要建一個帶有中式禪意的現代民宅。設計來自剖切“一顆印”,半顆外置的外觀形象,然而又真的像顆印,北半個含蓄似乎是印身,南半個張揚似乎是印底。由于形象特殊,客戶形象地將它比作“元寶樓”
周邊情況
當地清一色歐式民宅,軍列式規劃,對于有追求的人確實一度會感覺審美疲勞。未來這里將逐步開發旅游等產業,部分民宅已然走在前列,開始經營民宿或工作室等。本案為此也考慮了后期可作經營空間的可能性,平面提供了環形開放空間,便于未來可靈活調整功能空間 別墅效果圖
北側沿路前院入口
東北透視
西北透視
東南透視
西南小瞰
南向正透 設計北向沿路立面表達是內向的,敞開的樹庭清新喜人,幾個內斂的窗洞,輕松不造作的入院方式,隱約一種神秘感;南向開闊的視野,全部對外、可觀景、可感受四季的開放陽臺,愜意、舒暢都有了……
北院小瞰
南院小透 別墅平面圖一方樹庭,一部樓梯,一個天井、一組陽臺,構筑了整個樓的精神內涵
負一層平面圖
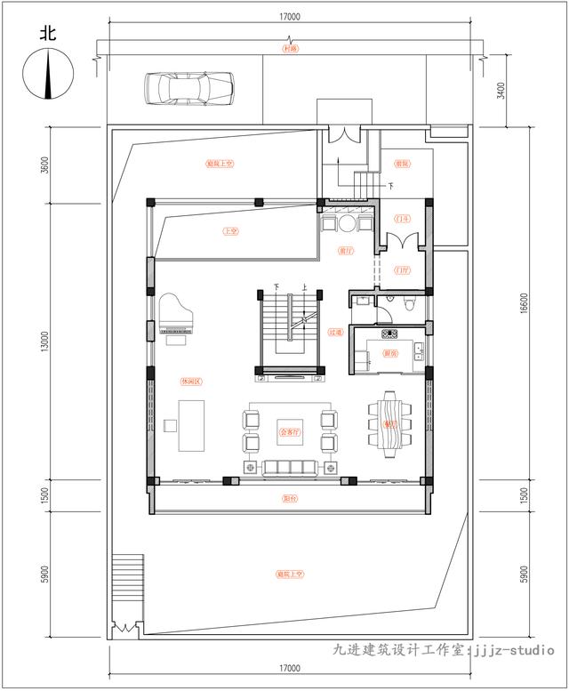
一層平面圖
二層平面圖
三層平面圖
四層平面圖 圖紙之家-專注農村別墅/自建房設計18年,集合國內200余位經驗豐富的設計師,被評為口碑最好的農村建筑設計公司! |

雙拼小別墅設計圖紙(含效果圖),二層別墅設計方案精選
占地:130平方米
造價40萬三層大氣自建房設計圖紙,鄉村別墅建造圖
占地:159.609平方
農村自建房就選它!一層新中式設計,日常居住需求全搞定
占地:128.45平方米
農村二層復式小別墅設計,進深12米,農村建房最受歡迎的款
占地:149.096 平方
170平方米歐式三層雙拼別墅建筑設計圖紙及效果圖片
占地:172平方米
獨棟三層樓房設計圖紙及效果圖,農村蓋房推薦
占地:125平方米
140平米二層半帶露臺別墅圖片及圖紙,戶型極佳
占地:140平方米
50萬農村自建三間三層別墅設計圖,占地130平米左右
占地:135平方米
新農村二層房屋建筑施工圖紙,廚房獨立在配房
占地:107平方米
三層兄弟雙拼別墅設計方案,外觀大氣布局實用,住的舒服
占地:197.67平方米
新農村四合院別墅圖片及戶型方案圖,全套圖紙可施工
占地:154平方米左右
新農村三層房屋cad建筑設計圖紙,磚混結構
占地:138平方米
農村二層半兄弟共建房別墅設計圖,復式戶型帶車庫,面寬24米
占地:312平方米左右
漂亮實用三層自建別墅設計圖紙,超高的性價比
占地:160平方米
170平方米新農村實用的三層雙拼設計圖紙,帶公用堂屋!
占地:173.62平方米
農村自建房別再做傳統客廳!“客廳+茶室”一體設計,寬敞明亮
占地:143.73平方米
120平方米農村經典二層房屋設計圖紙,造型精致好看
占地:121平方米
簡單大方四間二層小樓房設計圖,帶車庫,帶大露臺
占地:180平方米
豪華三層別墅設計圖紙,全套施工方案帶效果圖
占地:130平方米
歐式二層5大間別墅設計圖,新穎獨特的外觀,面寬20米
占地:180.14平方米
推薦:10套新農村自建房設計圖,2026年最新設計
閱讀次數:4825737次
100套鄉村別墅圖片大全,2026年最新設計
閱讀次數:2492203次
6款農村蓋一層平房的設計圖,10萬元就能建起來
閱讀次數:1852637次
這11個一層農村自建房別墅火爆了朋友圈!我最喜歡戶型十!你呢
閱讀次數:750268次
農村6萬元建一層小別墅圖,你敢相信嗎
閱讀次數:567686次
農村5萬塊就能自建房,6套普通房子設計圖分享,你沒看錯!
閱讀次數:419410次
8套農村漂亮三間平房圖片,非常適合在農村修建!
閱讀次數:411197次
農村自建房化糞池怎么做?附方案及施工過程
閱讀次數:391783次
農村一層三間平房設計圖,告別土氣養老房,讓人忍不住點贊
閱讀次數:350581次
新農村二層樓房圖片造價12萬,挑一套回家建房吧!
閱讀次數:349126次
