
|
層數: 三層 結構形式: 框架結構 主體造價: 34-40萬 開間: 13.3米 進深: 14.6米 占地面積: 147.7平方米 建筑面積: 366.4平方米
首層戶型圖
編號: DC0003 層數: 四層 結構形式: 框架結構 主體造價: 40-50萬 開間: 11.7米 進深: 12.9米 占地面積: 120.1平方米 建筑面積: 316.66平方米
首層戶型圖
編號: DC0094 層數: 三層 結構形式: 框架結構 主體造價: 35-42萬 開間: 11.8米 進深: 12.5米 占地面積: 134.94平方米 建筑面積: 360.63平方米
首層戶型圖
編號: DC0147 層數: 二層帶閣樓 結構形式: 磚混結構 主體造價: 24-28萬 開間: 12米 進深: 10.8米 占地面積:126.43平方米 建筑面積:312.77平方米
首層戶型圖
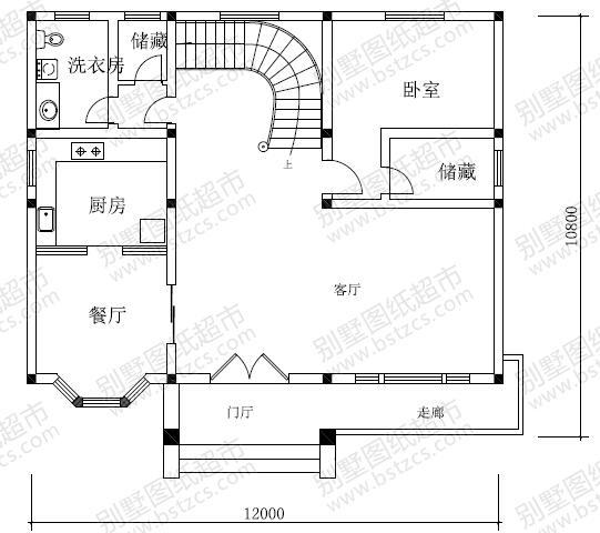
編號: DC0177 層數: 三層 結構形式: 框架結構 主體造價: 34-40萬 開間: 12.2米 進深: 13.5米 占地面積: 146.12平方米 建筑面積: 405.58平方米
這幾款自建房設計圖不管是從外觀來看還是從布局來看,都是比較經典大氣的,很適合農村居住,也符合大部分人的審美,趕緊收藏了 吧,說不定你們那天建房可以用上。 圖紙之家-專注農村別墅/自建房設計18年,集合國內200余位經驗豐富的設計師,被評為口碑最好的農村建筑設計公司! |

大氣的150平方米新中式三層別墅建筑圖及效果圖
占地:150平方米左右
140平方米新農村三層房屋設計圖,磚混結構帶地下室
占地:138平方米左右
農村三層帶電梯小別墅設計施工圖,120平方米左右12.2x10.8米
占地:123平方米
農村最好看兩層小樓圖及全套CAD施工圖紙,新中式風格,簡潔大氣
占地:150平方米
農村新款二層中式別墅設計圖效果圖,帶堂屋設計
占地:144平方米
新農村二層帶庭院的小別墅設計圖及效果圖
占地:137平方米
四開間一層半別墅設計圖,帶閣樓設計的戶型方案
占地:190.7平方米
一層合院中式小別院設計圖,白墻灰瓦,愜意十足!
占地:219平方米
新中式二層農村小樓房設計圖,戶型圖方正,外觀大氣
占地:143平方米
二層自建房子最新款設計圖,平屋頂簡約經濟,美觀不失大方。
占地:115.64平方米
小型中式一層三合院別墅設計圖,小宅基地照樣建合院
占地:119.73平方米
好評不斷二層簡歐房屋設計圖,占地150平,農村建房就選它
占地:150平方米左右
新農村自建三層復式結構房屋別墅設計圖紙及效果圖
占地:138平方米
歐式三層農村別墅設計圖,占地130平方米自建房,低調又奢華鄉村
占地:129.8平方米
美式二層別墅設計圖,含外觀效果圖,造型精美
占地:144平方米
歐式二層農村別墅設計圖,140平方米戶型方正的好方案
占地:142.51平方米
五開間一層農村平房設計圖,200平米大戶型,五間臥房足夠用了
占地:200.7平方米
2026年新款別墅外觀圖及全套施工圖紙,占地面積13×10米
占地:130平方米
占地200平農村二層自建房設計方案戶型,陽面臥室多
占地:208平方米
農村三層雙拼別墅設計圖,帶外觀效果圖,推薦
占地:190平方米
推薦:10套新農村自建房設計圖,2026年最新設計
閱讀次數:4825737次
100套鄉村別墅圖片大全,2026年最新設計
閱讀次數:2492203次
6款農村蓋一層平房的設計圖,10萬元就能建起來
閱讀次數:1852637次
這11個一層農村自建房別墅火爆了朋友圈!我最喜歡戶型十!你呢
閱讀次數:750268次
農村6萬元建一層小別墅圖,你敢相信嗎
閱讀次數:567686次
農村5萬塊就能自建房,6套普通房子設計圖分享,你沒看錯!
閱讀次數:419410次
8套農村漂亮三間平房圖片,非常適合在農村修建!
閱讀次數:411197次
農村自建房化糞池怎么做?附方案及施工過程
閱讀次數:391783次
農村一層三間平房設計圖,告別土氣養老房,讓人忍不住點贊
閱讀次數:350581次
新農村二層樓房圖片造價12萬,挑一套回家建房吧!
閱讀次數:349126次
