
|
湖南老張在北京市做建材生意的,在北京呆了15年,采訪了他,他就告訴我們在北京這樣的大城市,有時候過的很壓抑,沒有一點點家的感覺,就比如他告訴我們,不管任何時候去散步,永遠可以聞到汽車的尾氣,連呼吸都變成了奢侈品,就是因為這種環境,讓她逃離北京這樣的大城市,回歸了鄉村生活。 他現在在他們縣城開了一家建材店,他就在自己老家建了一棟別墅圖片欣賞,開車20分鐘就能到,他覺得現在的生活才有點樣子,而且現在農村不像以前了,什么都方便了,所以他覺得現在很幸福,接下來就是他給我們分享的他的別墅,都來圍觀一下吧!
效果圖
實景圖 施工全過程
最后他告訴我們,讓我們也吃了一驚,他說他的農村小別墅只花了18萬就把主體建起來了,他開玩笑在北京哪里可能連個廁所都買不到,想想現在的生活他很滿足。 圖紙之家-專注農村別墅/自建房設計18年,集合國內200余位經驗豐富的設計師,被評為口碑最好的農村建筑設計公司! |

新農村三層房屋設計圖紙大全,新農村住宅圖紙
占地:108平方米
最漂亮的農村二層小樓房自建別墅設計圖紙及效果圖
占地:168平方米
田園風格別墅設計圖及外觀圖片,樓中樓結構
占地:140平方米
二層歐式小別墅設計方案,全套建筑設計圖紙+外觀效果圖
占地:146平方米
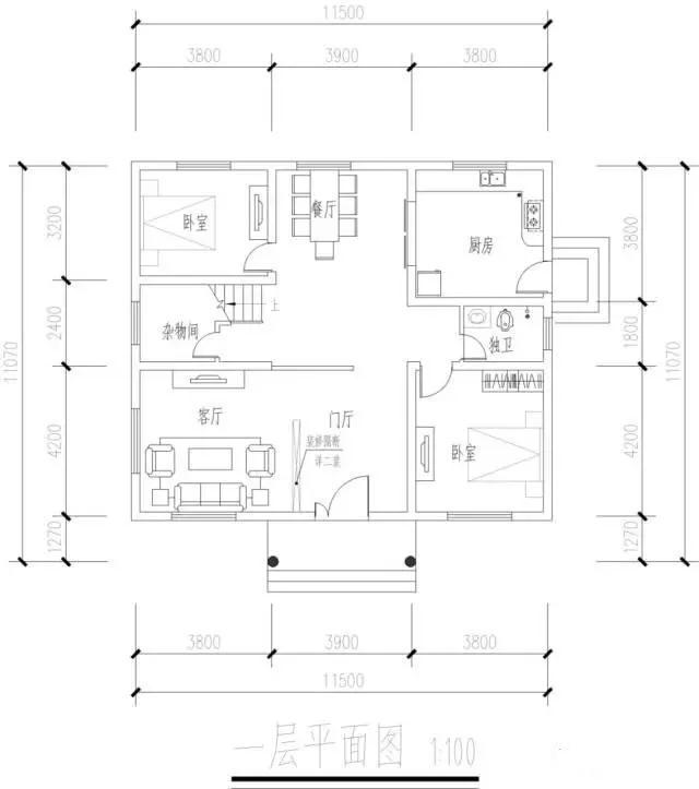
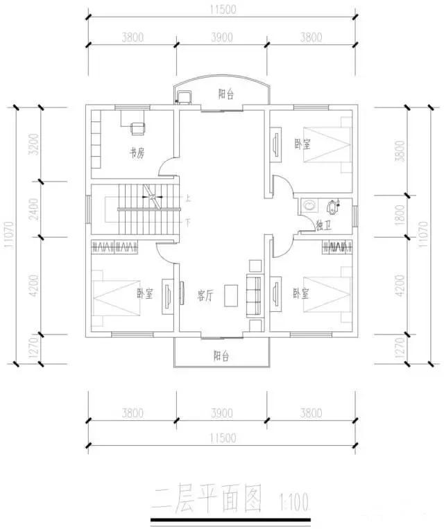
經濟實用二層復式樓房設計圖 ,占地150平方米,造價25萬左右
占地:150平方米
小戶型現代新農村三層房屋設計建筑圖及效果圖
占地:108平方米
帶架空層車庫/地下室自建一層別墅設計圖,隔潮又能儲物
占地:91.32平方米
帶車庫二層農村豪華別墅設計圖,主體25萬左右
占地:170平方米左右
140平方米現代偏中式實用型三層房屋設計圖紙,新農村建房推薦
占地:142平方米
二開間小戶型設計三層農村自建房方案,經濟型適合小宅基地建房
占地:107.02平方米
農村一層養老別墅設計圖,14.8x17.9米,戶型對稱,實用布局
占地:193平方米
農村別墅220-240平米的雙拼自建房設計圖,屋頂帶老虎窗
占地:220平方米
100平方三層樓房設計圖及圖片,戶型設計簡約時尚
占地:100平方米
小L型新款二層別墅設計圖,復式客廳旋轉樓梯,14米乘13米
占地:182平方米
新款漂亮農村三層別墅建筑設計圖紙帶效果圖片,3種戶型
占地:125平方米
經典三層別墅設計圖,時尚典雅美觀大氣,新農村自建的理想之選
占地:119.45平方米
雙拼豪華高端三層別墅設計圖,外觀效果圖大氣
占地:300平方米
二層帶架空層的農村別墅設計圖,功能齊全,超越十里八村
占地:130平方米
三層新農村小別墅設計圖紙,占地120平米,客廳中空,帶大露臺
占地:120平方米
歐式新農村三層復式樓自建房別墅圖紙,旋轉樓梯設計
占地:128平方米
推薦:10套新農村自建房設計圖,2026年最新設計
閱讀次數:4825737次
100套鄉村別墅圖片大全,2026年最新設計
閱讀次數:2492203次
6款農村蓋一層平房的設計圖,10萬元就能建起來
閱讀次數:1852637次
這11個一層農村自建房別墅火爆了朋友圈!我最喜歡戶型十!你呢
閱讀次數:750268次
農村6萬元建一層小別墅圖,你敢相信嗎
閱讀次數:567686次
農村5萬塊就能自建房,6套普通房子設計圖分享,你沒看錯!
閱讀次數:419410次
8套農村漂亮三間平房圖片,非常適合在農村修建!
閱讀次數:411197次
農村自建房化糞池怎么做?附方案及施工過程
閱讀次數:391783次
農村一層三間平房設計圖,告別土氣養老房,讓人忍不住點贊
閱讀次數:350581次
新農村二層樓房圖片造價12萬,挑一套回家建房吧!
閱讀次數:349126次
