
|
根據網友留言和意見反饋發現,農村宅基地面寬在10~15米之間,其中10米左右的居多。今天呢,住宅公園也有幸為大家精心挑選了5套面寬10米左右的別墅戶型,一層、二層、三層的都有,第5套造價最美麗,看看你想建哪一套呢? 第1套:
這是一套二層別墅設計網,開放式車庫、老虎窗、百葉窗,美觀洋氣。它的開間9.6米,進深13.84米,開間小,進深大,戶型方正。 平面布局圖:
一層有:客廳、車庫、廚房、餐廳、儲藏間、干濕分離的衛生間和一個帶衣帽間的老人房; 二層有:2臥室、1書房、1起居室、1公共衛生間、1晾曬間、1露臺。主臥室有獨立的衛生間和衣帽間。
第2套:
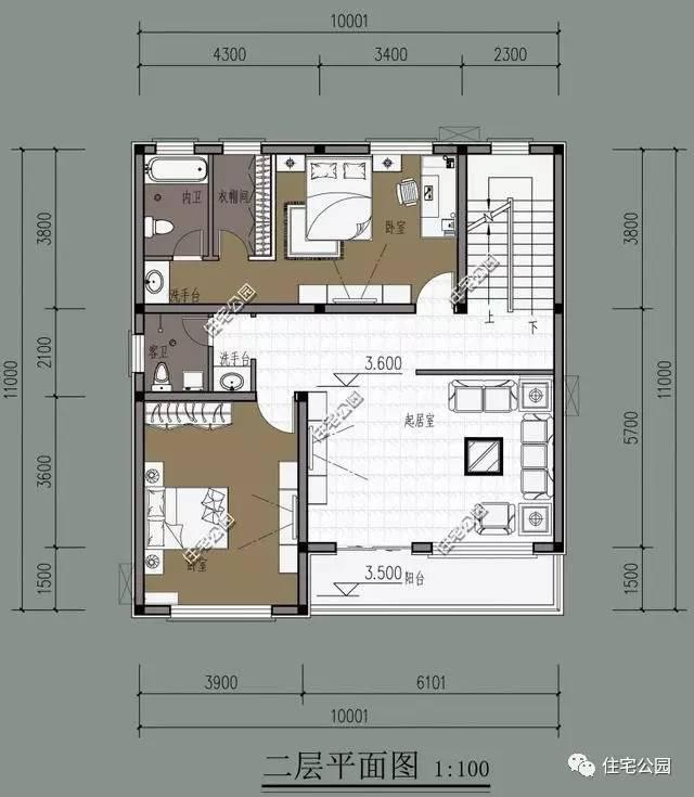
此套也是一個2層的別墅戶型,戶型坐北朝南,東西長10米,南北長12米,二層有一個較大的露臺可作為休閑平臺,也可以當做晾曬的場所。 平面布局圖:
一層有:2臥室、2衛生間、入戶玄關、客廳、廚房、餐廳; 二層有:3臥室、2衛生間、書房、露臺。
第3套:
這是一套三層的鄉村別墅,它開間10米,進深11米,戶型方正,南北通透。每層都有走廊、陽臺、露臺這樣的戶外光景臺,它的造型簡單樸實,造價經濟,戶型實用,很適合農村自建。 平面布局圖:
一層有:老人房、客廳、餐廳、廚房、衛生間、洗手臺、雜物間; 二層有:2臥室、1起居室、陽臺、公用衛生間;其中一臥室為套間,套間里有衣帽間、洗浴室; 三層有:1臥室、健身房、棋牌室、衛生間、露臺。
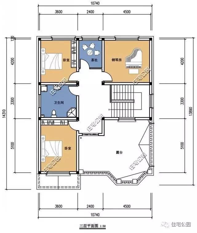
第4套:
這也是一套三層的別墅戶型,開間10.74米,進深17.94米。米色外墻、白色柱子和護欄,經典而不落俗套。是一套較為經典的歐式風格建筑。 平面布局圖:
一層有:2臥室、客廳、餐廳、廚房、柴火房、儲藏室、衛生間; 二層有:4臥室、2書房、1衛生間、1陽臺、1露臺; 三層有:2臥室、1茶室、1鋼琴房、1衛生間、1露臺。
第5套:
這套是個一層的戶型,開間9.5米,進深8.2米,造型像是一個小洋樓,精致實用,磚混結構就可以建造,毛坯房10多萬就能建起來。 平面布局圖: 戶型設有:2臥室、1客廳、廚房、衛生間 圖紙之家-專注農村別墅/自建房設計18年,集合國內200余位經驗豐富的設計師,被評為口碑最好的農村建筑設計公司! |

歐式三層別墅設計圖,低調奢華,實用布局,好設計不容錯過
占地:134.1平方米
L字型自建房屋設計圖,一層別墅類型,外觀效果圖漂亮
占地:188.62平方米
開間4米多的農村三層別墅設計圖,一開間三層自建房
占地:66.65平方米
最美建筑四合院別墅設計方案,大氣經典,開間19米
占地:168.61平方米
帶露臺陽光房二層建房別墅設計圖,13米乘12米,享受農村悠然慢
占地:143.54平方米
150平方米大平層別墅設計圖,時尚大氣舒適實用
占地:149.43平方米
帶地下室三層豪華大氣新農村房屋設計圖,占地150平米左右
占地:150平方米
新中式別墅一層自建房設計,戶型實用緊湊
占地:170.54平方米
一層帶架空層的農村別墅設計圖,防潮、停車、放農具全都滿足
占地:163.78平方米
簡單漂亮實用的三層自建房設計圖,帶露臺,占地170平方米
占地:170平方米
簡約現代的二層別墅自建房設計圖,13米乘9米
占地:124平方米
100平米兩間三層樓房設計圖,農村蓋房舒服實用最重要
占地:100平方米
最漂亮的農村二層小樓房自建別墅設計圖紙及效果圖
占地:168平方米
140平三層復式別墅設計圖及外觀效果圖
占地:140平方米
140平方米新農村三層房屋設計圖,磚混結構帶地下室
占地:138平方米左右
現代風平屋頂三層半農村小別墅設計圖,面寬僅7米
占地:90平方米
140平米平屋頂二層新農村自建房設計圖,極簡主義設計 ,實用優
占地:143平方米
帶地下室的農村三層雙拼別墅設計圖,復式戶型,面寬23米
占地:261.6平方米左右
150平方米農村二層磚混結構別墅施工建筑設計圖,平頂設計
占地:150平方米
簡單的復式住宅設計圖,客廳挑高,帶外觀效果圖片
占地:148平方米
推薦:10套新農村自建房設計圖,2026年最新設計
閱讀次數:4825737次
100套鄉村別墅圖片大全,2026年最新設計
閱讀次數:2492203次
6款農村蓋一層平房的設計圖,10萬元就能建起來
閱讀次數:1852637次
這11個一層農村自建房別墅火爆了朋友圈!我最喜歡戶型十!你呢
閱讀次數:750268次
農村6萬元建一層小別墅圖,你敢相信嗎
閱讀次數:567686次
農村5萬塊就能自建房,6套普通房子設計圖分享,你沒看錯!
閱讀次數:419410次
8套農村漂亮三間平房圖片,非常適合在農村修建!
閱讀次數:411197次
農村自建房化糞池怎么做?附方案及施工過程
閱讀次數:391783次
農村一層三間平房設計圖,告別土氣養老房,讓人忍不住點贊
閱讀次數:350581次
新農村二層樓房圖片造價12萬,挑一套回家建房吧!
閱讀次數:349126次
