
|
話說在某農村有兩兄弟,因從小家境窮苦,兄弟二人初中未畢業并結伴外出打工,經過二十多年的艱苦奮斗,紛紛在外鄉有了自己的一片天地并有了自己的事業,也在城里買了別墅娶妻生子。考慮到家鄉環境好 一是給年邁的父母建一棟別墅,而是準備老了可以回去養老,于是兄弟二人又在老家各自建了一棟復式樓房設計圖,外觀大氣時尚!
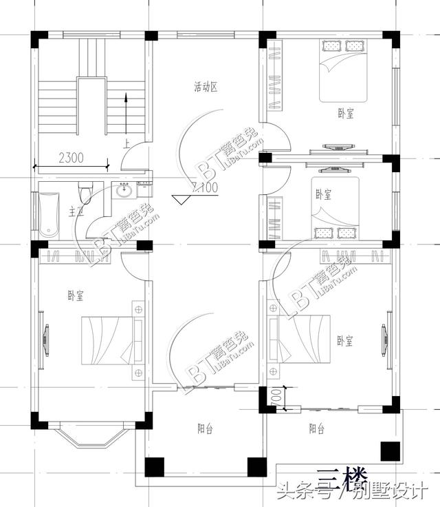
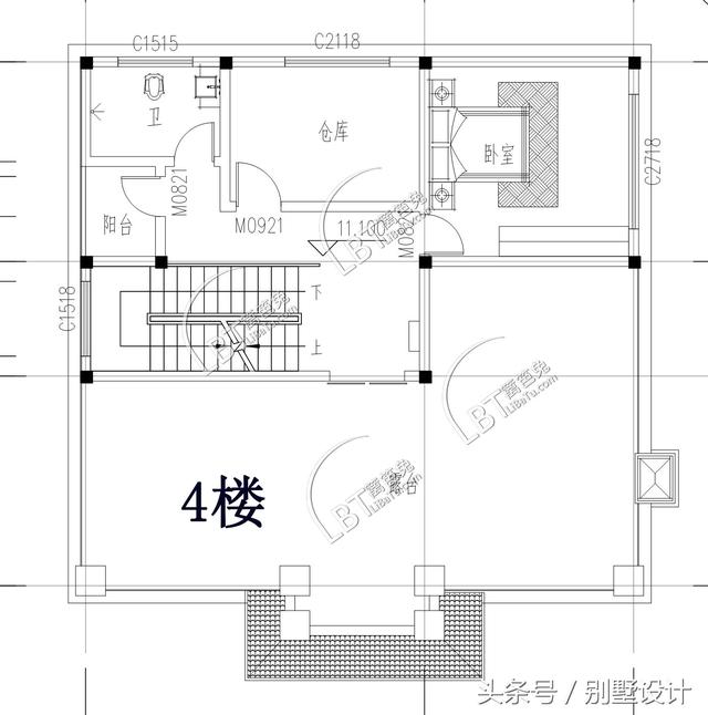
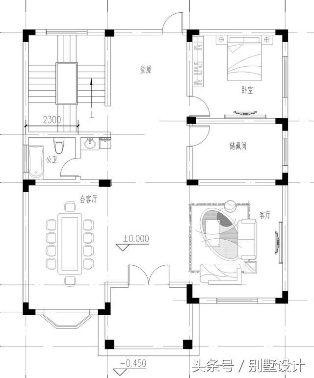
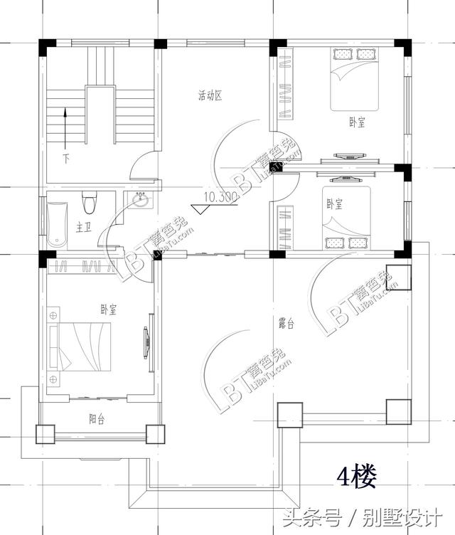
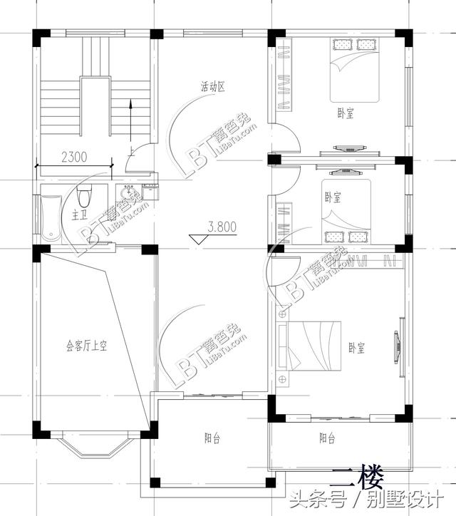
此戶型開間11.4米,進深11.8米,占地面積141平米,建筑面積441平米,主體造價50萬左右!
此戶型開間11.4米,進深11.8米,占地面積149平米,建筑面積538.39平米! 圖紙之家-專注農村別墅/自建房設計18年,集合國內200余位經驗豐富的設計師,被評為口碑最好的農村建筑設計公司! |

網紅農村一層小別墅設計圖,建一層的必看
占地:多戶型可選
三層新農村自建小型別墅設計圖及效果圖,三間三層樓房戶型
占地:114平方米
農村一層別墅設計圖,3室2廳帶書房,占地面積200平米左右
占地:200平方米
鄉下120平米二層樓房設計圖,23萬就可以建漂亮別墅
占地:120平方米
120平方米農村漂亮實用的兩層別墅設計圖紙,含外觀圖片
占地:120平方米
占地130平三層現代別墅設計圖方案,帶電梯和地下室設計
占地:134.75平方米
140平一層平房別墅設計圖,兩客廳兩衛四臥室
占地:140平方米
倆兄弟蓋房子的雙拼設計圖,小宅基地設計方案
占地:151.91平方米
農村一層養老別墅設計圖,14.8x17.9米,戶型對稱,實用布局
占地:193平方米
普通農村二層房子設計圖 ,復式結構,帶車庫,占地160平米左右
占地:160平方米
歐式三層雙拼別墅設計圖,精致大氣布局實用,兄弟建房上上之選
占地:234平方米
村里三層新中式風自建別墅圖,對稱設計,氣派好看
占地:135.3平方米
農村三層復式樓房住宅設計圖,私人別墅設計
占地:165平方米
復式別墅農村四層霸氣豪宅設計圖紙,建好你就是村里第一
占地:136.356平方米
面寬8米農村二間二層小別墅設計方案,施工簡單造價低
占地:73.77平方米
300平方二層別墅四合院設計圖紙方案(效果圖+施工圖)
占地:332平方米
簡潔大氣140平方三層房子設計圖,帶車庫戶型極佳
占地:140平方米
農村中式二層雙拼四合院別墅設計圖,兄弟父母三戶典雅大氣
占地:360平方米
新農村私人別墅建筑設計施工圖,全套別墅設計圖紙
占地:多種戶型
農村18萬元二層小樓圖,帶開放式車庫
占地:110平方米
推薦:10套新農村自建房設計圖,2026年最新設計
閱讀次數:4825737次
100套鄉村別墅圖片大全,2026年最新設計
閱讀次數:2492203次
6款農村蓋一層平房的設計圖,10萬元就能建起來
閱讀次數:1852637次
這11個一層農村自建房別墅火爆了朋友圈!我最喜歡戶型十!你呢
閱讀次數:750268次
農村6萬元建一層小別墅圖,你敢相信嗎
閱讀次數:567686次
農村5萬塊就能自建房,6套普通房子設計圖分享,你沒看錯!
閱讀次數:419410次
8套農村漂亮三間平房圖片,非常適合在農村修建!
閱讀次數:411197次
農村自建房化糞池怎么做?附方案及施工過程
閱讀次數:391783次
農村一層三間平房設計圖,告別土氣養老房,讓人忍不住點贊
閱讀次數:350581次
新農村二層樓房圖片造價12萬,挑一套回家建房吧!
閱讀次數:349126次
