
|
別墅給人的第一印象就是豪華。這種豪華不一定是價格昂貴,而是別墅設計人性化,配備的空間設計合理,讓人住著舒服。如果價格合理,相信每個人都會想要擁有屬于自己的小別墅。下面五款農村二層別墅就擁有著豪華的外形和合理的空間設計。 第一款
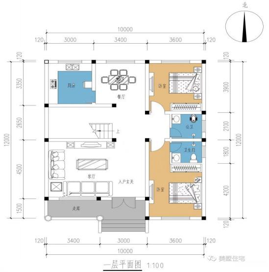
紅銅色的大門,前面有一個小小的庭院。 基本信息: 別墅編號:MS1702125 占地尺寸:12.54X11.04米 結構形式:磚混結構 占地面積:128.53平米 建筑面積:236.45平米 主體造價:17-23萬 一層平面圖:
在住宅中玄關雖然面積不大,但使用頻率較高,是進出住宅的必經之處。雜物間的設計方便堆積雜物,是個收納的好地方,客廳的設計選擇的是挑空,這樣客廳里就能有更多的陽光照射進來使客廳顯得更加寬敞明亮。 二層平面圖:
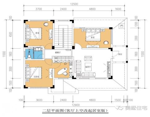
二樓挑空客廳上空,二樓走道可以放置休閑座椅,主臥帶書房衣帽間衛生間的設計,更加舒適方便。 第二款
別墅顏色的選擇比較鮮艷,給別墅活潑感。 基本信息: 別墅編號:MS1702127 占地尺寸:12.04X10.54米 占地面積:120平方米 建筑面積:224平方米 結構類型:磚混結構 一層平面圖:
整個空間里的隔間不多,但每一個隔間空間都保證足夠大。 二層平民圖:
衣柜和書房放在一起也很合理。 第三款
一層的墻面直接用二層墻面的墻磚也很適合。 基本信息: 別墅編號:MS1702128 占地尺寸:11.2X12.22米 占地面積:106平方米 建筑面積:206平方米 結構類型:磚混結構 造價估計:20萬左右 一層平面圖:
進門以后就有一個超大客廳。 二層平面圖:
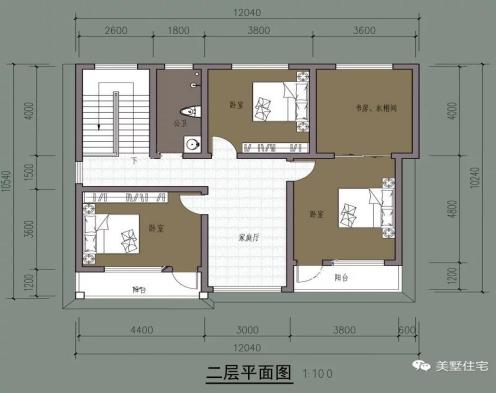
二樓主要是三個臥室,休息區域。 第四款
二樓隔出一個大空間的陽臺做休閑區域。 基本信息: 別墅編號:MS1702129 占地尺寸:10.2X12.2米 占地面積:125平方米 建筑面積:207平方米 結構類型:磚混結構 造價預算:16萬左右 一層平面圖:
二層平面圖:
側面設計圖:
一層樓和二層樓看起來十分對稱。 第五款
門洞型的大門設計可以給戶主增加一些大門附近的使用空間。 基本信息: 別墅編號:MS1702130 開間:12.5米 進深:11米 占地面積:138平方米 建筑面積:232平方米 造價估計:20萬左右 一層平面圖:
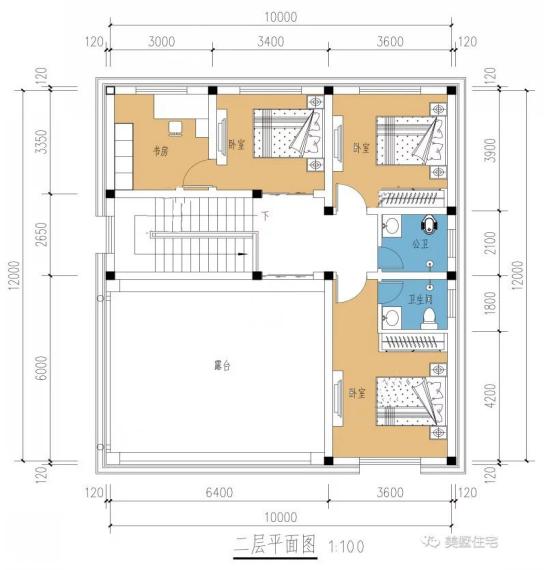
一層被隔離成幾個小空間。 二層平面圖:
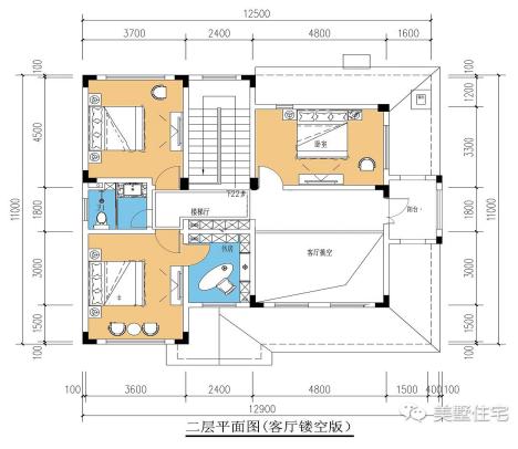
二層平面圖:
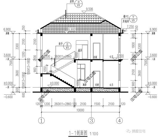
兩個版本基本差不多,只有客廳部分一個改為起居室,一個鏤空了。 圖紙之家-專注農村別墅/自建房設計18年,集合國內200余位經驗豐富的設計師,被評為口碑最好的農村建筑設計公司! |

面寬12米三層自建房別墅設計圖,廚房在前面,農村施工隊都能建
占地:138.18平方米
堂屋共用的三層雙拼別墅設計圖,總占地面積245平米
占地:245平方米
偏徽派風格民居三層農村住宅設計圖,白墻黛瓦的古雅簡潔
占地:101.01平方米
建一棟就成了村里的門面擔當!三層歐式別墅,左右對稱太氣派
占地:173.67平方米
農村蓋房設計大全一層房子的設計圖紙,色調清新靚麗
占地:220平方米
最漂亮五間一層自建別墅設計圖,布局實用顏值高!
占地:多戶型可選
300平四層別墅房屋設計圖,含外觀效果圖,大面積、多臥室
占地:261平方米
豪華三層別墅設計圖紙,全套施工方案帶效果圖
占地:130平方米
人字坡紅磚一層別墅設計圖,簡約低調超實用,這樣的房子人人能
占地:136.51平方米
四層簡單新農村房屋設計圖紙,造價低,適合農村自建
占地:多種戶型
性價比超高一層農村自建別墅設計圖,戶型耐看不用爬樓
占地:158.6平方米
鄉村最美四合院設計圖及外觀效果圖片,國人的理想住宅
占地:280.62平方米
農村二層半樓房效果圖及全套設計圖紙,自建房簡單實用
占地:121平方米
160平方米新農村自建二層樓房設計圖紙及效果圖,15x11米
占地:160平方米
時尚的農村二層別墅圖紙設計,現代風格,簡約的外觀
占地:152平方米左右
新農村帶陽臺三層樓房圖紙,占地180平米左右,豪華大氣
占地:180平方米
120平方米農村四層別墅施工設計圖紙及效果圖
占地:120平方米
130平方米湖南二層復式自建房屋設計圖紙12x11米
占地:128平方米
歐式大氣新農村三層別墅豪宅設計圖,外觀高端,對稱設計
占地:225平方米左右
簡約現代的二層別墅自建房設計圖,13米乘9米
占地:124平方米
推薦:10套新農村自建房設計圖,2026年最新設計
閱讀次數:4825737次
100套鄉村別墅圖片大全,2026年最新設計
閱讀次數:2492203次
6款農村蓋一層平房的設計圖,10萬元就能建起來
閱讀次數:1852637次
這11個一層農村自建房別墅火爆了朋友圈!我最喜歡戶型十!你呢
閱讀次數:750268次
農村6萬元建一層小別墅圖,你敢相信嗎
閱讀次數:567686次
農村5萬塊就能自建房,6套普通房子設計圖分享,你沒看錯!
閱讀次數:419410次
8套農村漂亮三間平房圖片,非常適合在農村修建!
閱讀次數:411197次
農村自建房化糞池怎么做?附方案及施工過程
閱讀次數:391783次
農村一層三間平房設計圖,告別土氣養老房,讓人忍不住點贊
閱讀次數:350581次
新農村二層樓房圖片造價12萬,挑一套回家建房吧!
閱讀次數:349126次
