
|
相愛的兩個人總要說及買房的問題,畢竟房子是兩個人的棲息之地,繁忙的一天工作過去了,兩個人可以依偎于家中,體驗平淡的生活的樂趣。說到房子,接下來的這款農村別墅,真的可以說是滿足兩個人間絕大多數的買房問題。
坐落于綠色森林之中的一座別墅,滿滿的綠色氣息,總給人一種清新舒適的感覺。每天一大早兩個人就可以透過窗外,看到滿眼的綠色,飽含生機。彼此之間都會很有活力。
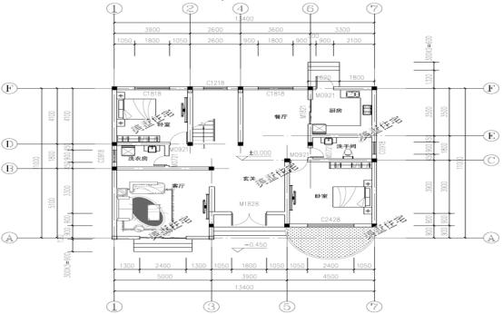
一層的設計一應俱全,臥室、客廳、餐廳都有,并且專門設計了一個洗衣房,不用跟其他人家一樣,把洗衣房放到衛生間,這樣做洗起衣服來方便,空間大。
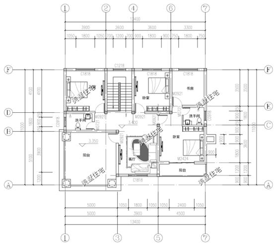
二層的設計有獨特的地方是專門設計了一個書房,這個書房可以供兩人經常在一起學習,升華兩人間的感情,提高兩人間的精神境界。三臥室的設計也大大解決了客人或者來賓的住宿問題。 如此一款超洋氣,現代的農村花園別墅,是不是很適合兩個人的棲息之地呢? 圖紙之家-專注農村別墅/自建房設計18年,集合國內200余位經驗豐富的設計師,被評為口碑最好的農村建筑設計公司! |

農村兩層新中式仿古四合院別墅戶型圖,小型占地不到200平
占地:193平方米
275平方米新農村雙拼樓中樓戶型別墅設計圖紙及效果圖21X14米
占地:275平方米
復式三層帶車庫簡歐小別墅設計圖,農村三層房屋設計圖
占地:126平方米
小型三層別墅cad建筑圖紙帶效果圖,帶屋頂露臺
占地:101平方米左右
三層新農村住宅設計圖及效果圖,三層樓房設計圖展示
占地:140平方米
2026年新款別墅外觀圖及全套施工圖紙,占地面積13×10米
占地:130平方米
130平米新農村自建房屋施工建筑圖紙及效果圖
占地:132平米
二層小別墅外觀圖片,別墅圖紙,外觀時尚,布局簡單實用,挑空
占地:230平方米
占地170平米2026新款三層別墅設計圖片及設計方案
占地:170平方米
面寬8米農村二間二層小別墅設計方案,施工簡單造價低
占地:73.77平方米
新中式120平米農村20萬元二層小樓圖,外觀柔和而雅致
占地:120平方米
最新140平米三層自建房屋設計圖紙,本戶型帶小院
占地:140平米
帶車庫的新中式風格一層別墅設計圖,鳥語花香回家建房
占地:184平方米
一層中式七字型房屋設計圖,帶院子經典設計,耐看不過時
占地:163.18平方米
三間三層樓房設計圖紙,復試的設計,漂亮的一塌糊涂
占地:175平方米
帶地下室一層別墅設計方案,功能布局齊全實用
占地:256.5平方米
三層樓房設計圖紙含效果圖,外觀造型高低錯落,別致大方
占地:152.4平方米
好看又簡單的二層樓房設計圖紙,戶型還實用
占地:150平方米
農村三間四層樓房設計圖,農村輕奢型四層別墅
占地:160平方米
四開間2層別墅設計圖,外觀圖配色清新淡雅,占地200平米
占地:200平方米
推薦:10套新農村自建房設計圖,2026年最新設計
閱讀次數:4825737次
100套鄉村別墅圖片大全,2026年最新設計
閱讀次數:2492203次
6款農村蓋一層平房的設計圖,10萬元就能建起來
閱讀次數:1852637次
這11個一層農村自建房別墅火爆了朋友圈!我最喜歡戶型十!你呢
閱讀次數:750268次
農村6萬元建一層小別墅圖,你敢相信嗎
閱讀次數:567686次
農村5萬塊就能自建房,6套普通房子設計圖分享,你沒看錯!
閱讀次數:419410次
8套農村漂亮三間平房圖片,非常適合在農村修建!
閱讀次數:411197次
農村自建房化糞池怎么做?附方案及施工過程
閱讀次數:391783次
農村一層三間平房設計圖,告別土氣養老房,讓人忍不住點贊
閱讀次數:350581次
新農村二層樓房圖片造價12萬,挑一套回家建房吧!
閱讀次數:349126次
