
|
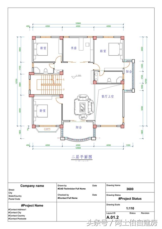
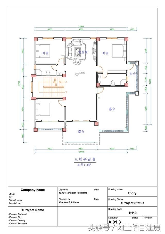
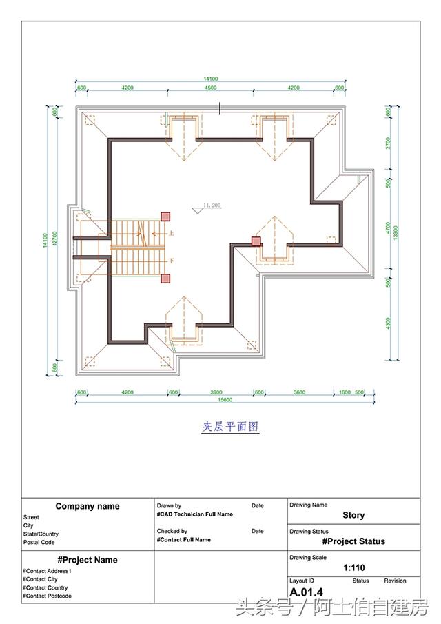
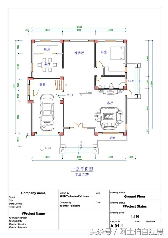
去年阿土伯在頭條發了一個三層別墅的圖紙,許多老鐵們問我主體結構要多少錢,我說30萬,沒有一個老鐵相信。現如今這個圖紙的已經有建成落地的案例了,主體結構結算的時候才29.6萬,事實勝于雄辯。為什么這個房子主體造價能控制這么好了?因為是結構合理,柱網對齊,抗震有利配筋量小,每平方的砼量也少,同時造型平整,模板量少,所以主體結構造價就省了。讓我們來看看這個設計圖,和建好的樣子吧。 1、用地尺寸:13X13米 2、占地大小:170平方米 3、總建筑面積:450平方米 4:總層數:3層 5:主體結構造價(不包內外裝修):25萬
![]() 圖紙之家-專注農村別墅/自建房設計18年,集合國內200余位經驗豐富的設計師,被評為口碑最好的農村建筑設計公司! |

農村三層樓房設計圖及效果圖,復式磚混結構
占地:148平方米
110平方米農村三層自建房設計圖紙帶外觀圖
占地:110平方米
150平米農村兩層樓房設計圖,簡單大氣時尚
占地:150平方米
8×12米農村三層別墅自建房設計圖,小開間精選方案
占地:103平方米
面寬不到8米的農村二層半別墅建筑圖紙及效果圖
占地:96平方米左右
150平米田園風格二層別墅設計圖紙,沉穩大氣有內涵
占地:150平方米
農村平屋頂三層現代風別墅戶型圖,簡約實用經濟顏值高
占地:111.9平方米
帶柴火房農村一層自建房設計圖,戶型布局接地氣
占地:126.29平方米
農村四層復式房屋設計圖紙,占地105平方米預算35萬左右
占地:105平方米
農村120方三層自建房子圖,好看又不貴的三層農村別墅
占地:120平方米
五十萬二層半鄉村別墅,客廳挑空設計,占地200平米左右
占地:200平方米
100平左右鄉下三層樓房設計圖,戶型方正,小面積宅基地的福音
占地:100平方米
100平方米自建三層半別墅設計圖紙,帶地下車庫
占地:100平方米
2026新款農村四層別墅設計圖紙戶型圖,帶挑空客廳
占地:150平方米
簡歐式三層半(4層)農村自建房別墅設計圖效果圖,帶車庫戶型
占地:127平方米
面寬13米方正戶型二層小別墅設計方案,南北通透采光好
占地:166.78平方米
農村建房兄弟雙拼兩層住宅設計圖,單戶150平米左右
占地:300平方米
145平方米新農村二層別墅設計效果圖及施工圖,12.6米x11.4米
占地:147平方米
農村蓋平房設計大全圖,鄉下建房一層戶型圖及效果圖
占地:160平方米
仿古建筑中式祠堂設計圖紙及外觀效果圖
占地:546平方米
推薦:10套新農村自建房設計圖,2026年最新設計
閱讀次數:4825737次
100套鄉村別墅圖片大全,2026年最新設計
閱讀次數:2492203次
6款農村蓋一層平房的設計圖,10萬元就能建起來
閱讀次數:1852637次
這11個一層農村自建房別墅火爆了朋友圈!我最喜歡戶型十!你呢
閱讀次數:750268次
農村6萬元建一層小別墅圖,你敢相信嗎
閱讀次數:567686次
農村5萬塊就能自建房,6套普通房子設計圖分享,你沒看錯!
閱讀次數:419410次
8套農村漂亮三間平房圖片,非常適合在農村修建!
閱讀次數:411197次
農村自建房化糞池怎么做?附方案及施工過程
閱讀次數:391783次
農村一層三間平房設計圖,告別土氣養老房,讓人忍不住點贊
閱讀次數:350581次
新農村二層樓房圖片造價12萬,挑一套回家建房吧!
閱讀次數:349126次
