
|
一直以來,三層別墅在農村就一直占據著主導位置,很多家庭建房時選擇的第一款式就是三層別墅。現在農村發展越來越好,大家的需求相應的也就越來越高,房子是一輩子的事,大家對其要求也就越來越高,不再是以前能住就行。 下面,小編就給大家推薦4款美觀又實用的農村3層小別墅! 第一款
占地面積:156.76平方米 建筑面積:504.12平方米 這款外形非常簡潔,沒有過多裝飾,但是看起來非常清新舒適。客廳,餐廳,廚房相連,非常方便,娛樂室設在左側,二樓三樓共有4間臥室,并設有衛生間,衣帽間,大大的露臺晾曬非常方便,或者根據喜好裝成露臺花園也是很不錯。 第二款
占地尺寸:12X9.3米 占地面積:97.6平方米 建筑面積:275.4平方米 這款低調大氣,外墻文化石裝飾又帶有一點莊重豪華,大大的落地窗在近年也是被越來越多的朋友所接受。室內共有7間臥室,在家里來人的時候就不會擔心家里房間不夠的尷尬了,雙露臺的設計也是很有新意。 第三款
占地尺寸:9.8X12.8米 占地面積:127.8平方米 建筑面積:380.2平方米 這款是一款中式建筑,在中國人的建筑史中,中式風格一直就占領著一席之地。外觀具有韻味,很有古典美。一樓很貼心的設計了老人房,方便老人的出行,避免了很多不安全因素,二樓除了主臥,還設有套房,三樓設有書房(茶室)和佛堂。 第四款
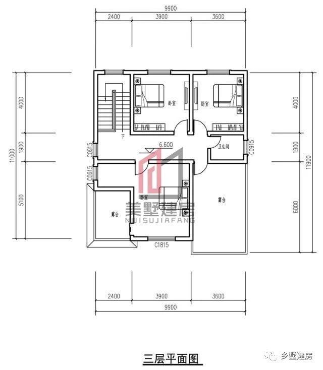
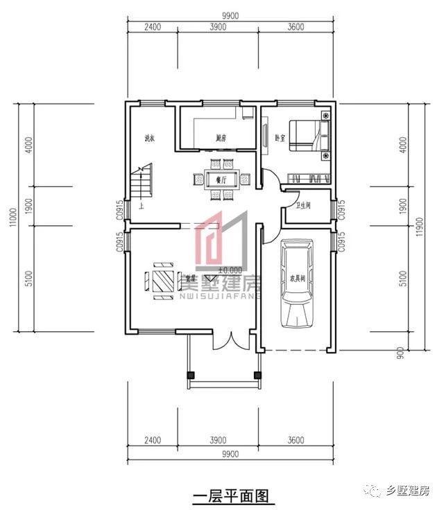
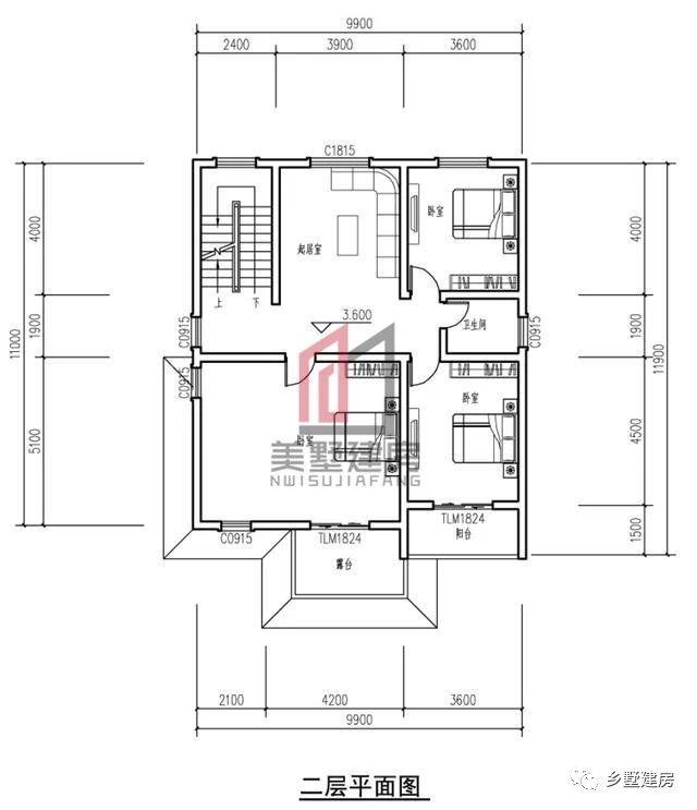
占地尺寸:9.9米x11米 占地面積:112.1平方米 建筑面積:439.723平方米 這款現代風格很濃烈,高低錯落有致的造型讓人看著就非常舒適。右側的車庫采用的是封閉式設計,里面還可用來存放農具。空間緊湊,布局合理,很適合一家人居住。 這幾款三層別墅非常不錯,有興趣的朋友可以收藏一下。 圖紙之家-專注農村別墅/自建房設計18年,集合國內200余位經驗豐富的設計師,被評為口碑最好的農村建筑設計公司! |

140平二層帶閣樓別墅設計方案圖,外觀圖片色彩明快
占地:140平方米
三層帶地下室+旋轉樓梯別墅設計圖紙,復式挑空客廳
占地:多種戶型
高端三層帶地下室別墅房屋設計圖方案及效果圖
占地:135平方米
110平房子設計圖,經典的農村自建房屋設計圖
占地:110平方米
經典中式三合院設計,一層空間實用大氣,輕松實現理想家園!
占地:160.53平方米
大氣的150平方米新中式三層別墅建筑圖及效果圖
占地:150平方米左右
多臥室復式二層別墅房屋設計圖,含外觀效果圖
占地:175平方米
120平方房子設計圖帶效果圖,農村自建房戶型推薦
占地:120平方米
建一棟就成了村里的門面擔當!三層歐式別墅,左右對稱太氣派
占地:173.67平方米
170平方米新農村實用的三層雙拼設計圖紙,帶公用堂屋!
占地:173.62平方米
人氣最旺的二層半別墅設計圖紙,復式挑空二層半自建房
占地:122.679平方米
簡單農村二層平屋頂房屋設計圖,外觀簡潔、大方
占地:200平方米
帶地下室三層復式別墅設計方案,全套設計圖+效果圖
占地:168平方米
時尚漂亮的二層小洋樓設計圖,設計師建房都選這個方案
占地:149.27平方米
面寬20米四開間二層別墅,火爆全村的戶型,美好生活的起點
占地:245.73平方米
新款農村四層復式別墅設計圖紙及效果圖,外立面清新別致
占地:207平方米
客廳中空復式二層別墅設計圖,歐式風格外觀
占地:180平方米
面寬8米的新農村三層自建房設計圖平屋頂,全套cad圖紙+效果圖
占地:115平方米
超大氣的農村一層雙拼自建別墅設計方案,絕對讓人羨慕的“平房
占地:424平方米
帶閣樓的二層半別墅設計圖和效果圖,外飾簡單但不失奢華
占地:210平方米
推薦:10套新農村自建房設計圖,2026年最新設計
閱讀次數:4825737次
100套鄉村別墅圖片大全,2026年最新設計
閱讀次數:2492203次
6款農村蓋一層平房的設計圖,10萬元就能建起來
閱讀次數:1852637次
這11個一層農村自建房別墅火爆了朋友圈!我最喜歡戶型十!你呢
閱讀次數:750268次
農村6萬元建一層小別墅圖,你敢相信嗎
閱讀次數:567686次
農村5萬塊就能自建房,6套普通房子設計圖分享,你沒看錯!
閱讀次數:419410次
8套農村漂亮三間平房圖片,非常適合在農村修建!
閱讀次數:411197次
農村自建房化糞池怎么做?附方案及施工過程
閱讀次數:391783次
農村一層三間平房設計圖,告別土氣養老房,讓人忍不住點贊
閱讀次數:350581次
新農村二層樓房圖片造價12萬,挑一套回家建房吧!
閱讀次數:349126次
