
|
現在的農村發展快,家家戶戶都建了新房,住起了小別墅,但是建房就和買衣服一樣,自已喜歡,漂亮,合身,更重要的是不要撞衣,所以如果只是仿建十里八鄉建的房子,那就一點特色都沒有了,建的再說,火的還是別人,今天給大家帶來了三套自建房別墅,效果圖與實景圖的鮮明對比,給你最直觀的感受。 款式一: 效果圖
這款別墅采用大理石外墻加文化石點綴,凹凸有致的造型加坡屋頂的設計,更有層次感,開間12.54米,進深11.04米,占地面積128.53平方米,建筑面積236.45平方米,造價在19萬左右。 實景圖
進門處設有玄關,兩間臥室中間設計了衛生間,衛生間一定要離臥室近,廚房后還設有一個門,雜物間與洗衣房占地空間小,但利用率卻很大,在客廳的凸窗處擺放兩張板凳,作為一個小型的會客場所也是不錯的。
二層采用挑空客廳的設計,樓上圍欄旁擺放兩張板凳,在那里談天也別有一番滋味。 效果圖
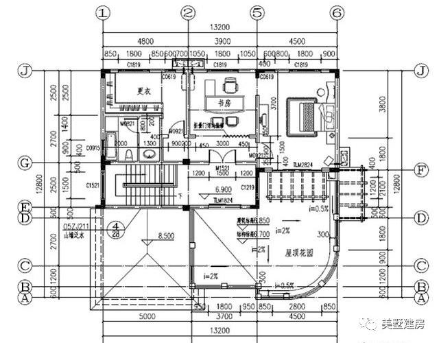
這款別墅開間14米,進深8.6米,占地面積121.9平方米,建筑面積224.2平方米,采用磚混結構,造價在18萬左右。 實景圖
一層進門處有個門廊,它是一處獨特的風景,也是室內外空間的延伸與交融,樓梯口的那些次臥,小編覺得可以改成書房,娛樂室都可。
二樓設有四間臥室、書房、陽臺、露臺、衛生間。
款式三: 效果圖
小編是很雨露均沾的,有了二層怎么可以沒有三層別墅呢,這款別墅的造型凸顯舒適美觀大方。 實景圖
實景圖也依舊很美的感覺,一層的餐廳很大,親戚朋友來也不顯得擁擠,獨立式車庫與儲藏室,如果覺得車庫的儲藏室夠了,樓梯下方也可以設計一點山水景觀,麻將室與客房動靜結合。
二層采用挑空客廳設計,這樣的設計方式在農村現在已經很成熟了,二樓同樣設計了一個娛樂室,一般在農村一桌麻將桌肯定是不夠的,起碼是一桌麻將,一桌撲克。
三層就像一間套房一樣,書房,臥室,更衣室,衛生間,花園,每一個都有,生活在頂樓,宛若在總統套房內。
小編可以很負責的告訴大家,我們完全可以做到“所見即所得”,就是您看到方案上是什么樣子,以后您的家就是什么樣子,甚至更加和諧美麗,有喜歡的款式就收藏下來吧! 圖紙之家-專注農村別墅/自建房設計18年,集合國內200余位經驗豐富的設計師,被評為口碑最好的農村建筑設計公司! |

精致簡歐一層別墅設計圖,經典大氣百看不厭
占地:139.57平方米
四層農村別墅設計圖,一二層都有廚房和餐廳的戶型方案
占地:128.52平方米
小占地二層徽派別墅設計圖,白墻黛瓦韻味十足,太氣派了
占地:89.6平方米
最美二層樓別墅圖片大全及全套建筑設計圖紙,20萬左右
占地:140平方米
二開間二層別墅設計圖,面寬9米,不可多得的好選擇!
占地:93.24平方米
農村25萬別墅款式二層自建房設計圖,外觀簡約大氣
占地:多種戶型
2026最受歡迎的三層農村小別墅設計圖紙,占地155平方米
占地:155平方米
兩層半雙拼別墅設計方案,超大露臺+歐式風格,好設計別錯過!
占地:175.8平方米
150平二層別墅房屋設計圖,現代風格,造型精致
占地:150平方米
高端農村三層歐式房屋設計圖紙,帶車庫,帶露臺
占地:163平方米
農村二層舒適好房,這款四開間別墅設計圖真的很不錯
占地:220.46平方米
造價15萬經濟美觀一層農村別墅設計圖,占地150平米
占地:多戶型可選
一層半中式合院別墅設計圖,帶配房,有庭有院有品位
占地:135平方米左右
100平米兩間三層樓房設計圖,農村蓋房舒服實用最重要
占地:100平方米
新農村小開間三層樓房設計圖,占地100平米左右
占地:多種戶型
農村三層樓房設計圖及效果圖,復式磚混結構
占地:148平方米
三層平頂現代別墅設計圖,實用不花冤枉錢,建好倍有面子
占地:113.02平方米
135平復式別墅房屋設計圖,外觀時尚、漂亮
占地:135平方米
13×16米農村自建樓房三層別墅戶型設計圖,大氣
占地:168平方米
帶地下室三層復式別墅設計方案,全套設計圖+效果圖
占地:168平方米
推薦:10套新農村自建房設計圖,2026年最新設計
閱讀次數:4825737次
100套鄉村別墅圖片大全,2026年最新設計
閱讀次數:2492203次
6款農村蓋一層平房的設計圖,10萬元就能建起來
閱讀次數:1852637次
這11個一層農村自建房別墅火爆了朋友圈!我最喜歡戶型十!你呢
閱讀次數:750268次
農村6萬元建一層小別墅圖,你敢相信嗎
閱讀次數:567686次
農村5萬塊就能自建房,6套普通房子設計圖分享,你沒看錯!
閱讀次數:419410次
8套農村漂亮三間平房圖片,非常適合在農村修建!
閱讀次數:411197次
農村自建房化糞池怎么做?附方案及施工過程
閱讀次數:391783次
農村一層三間平房設計圖,告別土氣養老房,讓人忍不住點贊
閱讀次數:350581次
新農村二層樓房圖片造價12萬,挑一套回家建房吧!
閱讀次數:349126次
