
|
10x10米的宅基地不算大,但在農村還是比較常見的。雖然大房子有大房子的氣派,但小房子有小房子的溫馨。只要設計合理,布局得當,一樣可以擁有最好的居住感受。 住宅公園在這里為您推薦3套戶型,雖然沒有完全的合適的,但希望可以為您提供一些參考。 第一套:這套別墅外觀樸實無華,但溫暖的大地色系配色的外墻,更顯淡雅別致。
戶型基本信息: 占地尺寸12m*10.7m,占地面積132㎡,建筑面積240㎡,總高度10.4m 建筑情況:共設5室 3廳 1廚 2衛 1儲藏室 1書房 2陽臺
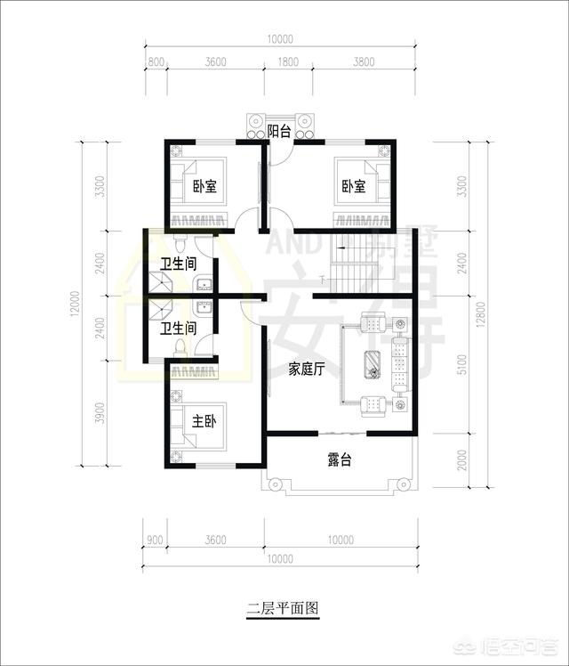
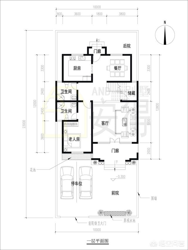
第二套:2017農村別墅最佳戶型?這套小別墅因其精致的外表、實用的布局,深受各地自建房朋友喜愛,在全國已有多套實際建成案例。
戶型基本信息: 占地尺寸10.9m*11.14m,占地面積122㎡,建筑面積211㎡,總高度9.63m 建筑情況:共設5室 3廳 1廚 2衛 1雜物間 1露臺
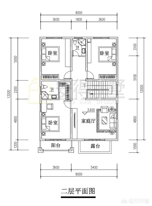
第三套:這套別墅外觀通過退臺陽臺、凸出陽臺的設計,從而形成立面的錯落感,很是精致。
戶型基本信息: 占地尺寸11m*10m,占地面積111㎡,建筑面積208㎡,總高度10.1m 建筑情況:共設4室 2廳 1廚 3衛 1書房 2陽臺
自建房是一個比較個性的事情,畢竟每個人的宅基地情況、個人的需求都不同。所以建房最好還是找專業設計師進行個性定制,才能打造出最宜居的房子! ======================================= 第一款 10.8x10.1米
第二款 10x9.5米
第三款 10.2x9.7米
================================ 10×10的農村自建房我這邊可以給你尺寸相近的兩個戶型參考,希望可以幫到你! 第一款 10.5*10.61米
第二款 9×10米
溫馨提示:此兩套戶型尺寸相近,外觀及平面布局可供參考。 ==================================================== 宅基地10x10的2層自建別墅,很方正也很常見的地塊,這里先給您推薦2款,希望能夠幫到您!更多別墅設計圖紙可關注我們! 第一款: 簡約歐式風格,基地雖不是很大,但可以建出精致好看的外觀
戶型平面如下: 客廳和老人臥室均朝南,北面設置廚房和餐廳;空間利用率很高
二層平面為:3房1廳2衛,朝南大露臺;
第二款: 簡約歐式風格,外墻主要采用淺黃色面磚和白色涂料兩種材料;
平面圖如下: 入戶為堂屋,獨立方正的空間;走進是客廳和廚房,內部是臥室區域,南北各一間臥室,其中一間臥室也可作為棋牌室或儲藏室;
二層平面:3間臥室,其實一間豪華主臥;朝南家庭廳,配有陽臺;
圖紙之家-專注農村別墅/自建房設計18年,集合國內200余位經驗豐富的設計師,被評為口碑最好的農村建筑設計公司! |

鄉下復式三層房子設計圖,帶堂屋,客廳中空,輕奢風格
占地:190平方米
經典三層歐式造型別墅圖紙,功能房豐富,挑空客廳
占地:180平方米
農村三層帶地下室住宅設計圖及圖片,房內設計了兩個套間
占地:210平方米
農村三間三層豪宅設計圖,自建別墅推薦戶型,帶地下室
占地:170平方米
面寬9米的三層農村自建房設計圖,適合鄉下地區自建
占地:121.94平方米
兩層半新農村別墅設計圖紙,CAD設計圖+高清效果圖
占地:90平方米
平屋頂四間一層農村自建房設計圖紙,經濟時尚
占地:144平方米
農村二層帶閣樓四間別墅設計圖,外觀美觀,戶型實用
占地:175平方米
農村15萬元二層小樓設計圖,造價低,簡潔、好看
占地:90平方米
農村二間二層房子設計方案圖,造型小巧精致,10米乘12米
占地:110平方米
歐式二層小別墅設計圖紙(含外觀效果圖)
占地:141平方米
二開間二層別墅設計圖,面寬9米,不可多得的好選擇!
占地:93.24平方米
新中式帶露臺30萬左右農村三層別墅,客廳中空
占地:110平方米
新款三層農村自建別墅設計圖,中式風復式客廳
占地:158.96平方米
農村新中式別墅設計圖及效果圖,造價25萬左右
占地:95平方米
帶開放式車庫的二層別墅!配土灶、室外樓梯,新穎還顯品味
占地:127.2平方米
三層新中式別墅建筑設計圖紙及圖片,11.66m*9.76m,典雅耐看
占地:114平方米
帶地下室一層別墅設計方案,功能布局齊全實用
占地:256.5平方米
14米×10米農村二層小別墅自建房設計圖,外觀設計時尚美觀
占地:125平方米
120平方米農村一層平房別墅設計圖紙,含外觀效果圖
占地:125平方米
推薦:10套新農村自建房設計圖,2026年最新設計
閱讀次數:4825737次
100套鄉村別墅圖片大全,2026年最新設計
閱讀次數:2492203次
6款農村蓋一層平房的設計圖,10萬元就能建起來
閱讀次數:1852637次
這11個一層農村自建房別墅火爆了朋友圈!我最喜歡戶型十!你呢
閱讀次數:750268次
農村6萬元建一層小別墅圖,你敢相信嗎
閱讀次數:567686次
農村5萬塊就能自建房,6套普通房子設計圖分享,你沒看錯!
閱讀次數:419410次
8套農村漂亮三間平房圖片,非常適合在農村修建!
閱讀次數:411197次
農村自建房化糞池怎么做?附方案及施工過程
閱讀次數:391783次
農村一層三間平房設計圖,告別土氣養老房,讓人忍不住點贊
閱讀次數:350581次
新農村二層樓房圖片造價12萬,挑一套回家建房吧!
閱讀次數:349126次
