
|
在別墅的設計與造型中,要論大氣感,選擇復式的設計毫無疑問是最佳的,因為復式的設計會讓別墅的整體空間顯得十分大氣。因為客廳樓上與樓下架空想通,除了讓房子更顯大氣之外,還會讓通風采光更加有優勢。最近很多人都向我們問到了二層的復式別墅,所以今天我們特意為大家推薦數款超火爆的二層復式樓別墅圖紙。 戶型一:
點評:此款別墅屬于典型的歐式簡約風格,非常受人喜愛。在設計戶型的時候特意設計了前后2個陽臺,并且1樓與2樓均有,一大一小,這樣不管是晾曬衣物還是想在陽臺曬曬太陽或者打打牌都非常的方便。而進門處與客廳均屬開放式,這樣加上客廳的復式設計,整個房子就會顯得空間感更足,更顯大氣! 戶型二:
點評:本套別墅設計了兩個衛生間,主人房或老人房單獨配有一個衛生間,與公用衛生間分開,這樣不單在人多的時候更加方便也同樣更加衛生。這套房還有一個很大的特點,那就是設計了一個娛樂房,對于在農村來說,打牌可是非常重要的娛樂活動,所以邀上三兩個好友撮一頓牌,客氣又有面,當然對于不打牌的朋友也可改為臥室。 戶型三:
點評:建別墅,怎能沒車庫?此圖就配帶車庫(亦可自行改為臥室)。戶型大門羅馬柱造型也是典型的歐式風格,顯得大氣。1樓配備單獨洗衣房,廚房客廳分開,能做到真正的干濕分離,讓房子更加干凈整潔。2樓作為主要的臥房,配備兩個衛生間,讓您再也不用擔心“搶”廁所啦~ 戶型四:
點評:這個戶型采用的露天陽臺,可在上面擺放躺椅或玻璃茶幾,不管是喝茶聊天或曬太陽都是不錯的選擇。與復式客廳呼應,更顯大氣。前后都有門廊,進出方便。一共有7房4衛,不管是自住還是接待親友都足夠,讓您倍有面。主臥設有衣帽間,更加增添別墅的豪華程度。 戶型五:
點評:歐式風格,外圈獨立的環形客廳,也是復式別墅非常典型的設計方式,這樣能讓復式客廳看上去更加突出獨立,進門一看會讓感覺非常大氣。此圖紙設計有煙囪造型,因此可在廚房設計一個柴火灶亦可。樓上書房連接陽臺,能讓你看書娛樂的同時狀態更加放松舒心。對于小孩子做作業也是一個非常合適的地方。客廳頂部,設一個大露臺,同樣作為休閑放松的好地方。 戶型六:
點評:同樣帶車庫的別墅,但是因為在農村,很多都需要一個柴火灶,所以為廚房留下可以放柴火灶的設計。同樣也讓別墅整體外觀更加美麗。進門處設置一個小臺階,也符合風水中的步步高升財源廣進的寓意。還要提醒的就是,車庫也是可以自行改成臥室的哦! 戶型七:
點評:挑空的客廳,配上一個超大面積的玻璃窗,能讓復式別墅的視野感與空間感更加立體。每個窗戶上特意設計突出的立體浮雕,增加視覺感,也更加凸顯別墅的尊貴感。一共有5房2衛,還有一個舒適陽臺,足夠滿足日常所需。 圖紙之家-專注農村別墅/自建房設計18年,集合國內200余位經驗豐富的設計師,被評為口碑最好的農村建筑設計公司! |

最接農村地氣的二層農村小別墅,造價30萬左右,經濟實用
占地:170平方米
110平房子設計圖,經典的農村自建房屋設計圖
占地:110平方米
四層(三層半)豪華歐式別墅房屋設計圖,外觀高端、大氣
占地:150平方米
簡單大氣二層兄弟雙拼樓房設計圖,外觀簡約
占地:268平方米
帶閣樓二層別墅設計圖,帶外觀效果圖片
占地:160平方米
180平米農村二層小別墅設計圖,外觀漂亮,帶露臺
占地:180平方米
三層新中式別墅設計圖,面寬12米經典漂亮
占地:154.93平方米
簡單實用的四層農村自建房屋設計圖,占地100平米左右
占地:100平方米
80平方米農村四層房屋設計圖紙及效果圖
占地:80平方米
農村三間兩層樓房設計圖,帶車庫,戶型簡單實用
占地:140平方米
歐式復式型三層別墅施工設計圖紙及效果圖大全
占地:164平方米
高端三層帶地下室別墅房屋設計圖方案及效果圖
占地:135平方米
高端三層獨棟歐式別墅效果圖,帶大衛生間,CAD全套施工設計圖
占地:158平方米
150平二層別墅房屋設計圖,現代風格,造型精致
占地:150平方米
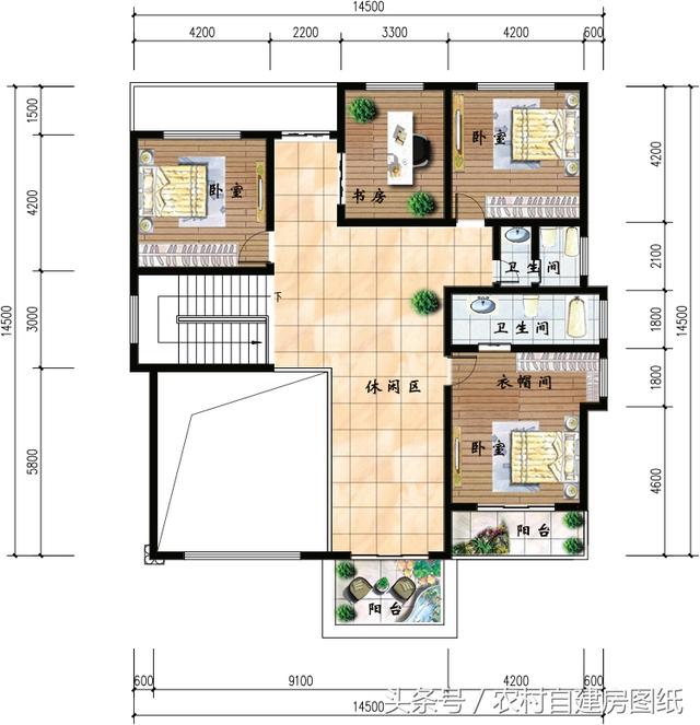
面寬14.5米三層獨棟別墅設計圖,經典設計,大氣之作
占地:123.85平方米
占地70平米一層小戶型別墅設計圖,功能齊全造價低,耐看實用
占地:70.19平方米
全套三層農村房屋設計圖紙,客廳中空,大大的窗戶,采光極好,
占地:160平米
新農村歐式時尚二層別墅設計圖紙,120平方米自建房
占地:多種戶型
農村小別墅設計圖二層,占地不大顏值高,最適合農村建造。
占地:108.66平方米
2款現代風格農村兩層別墅設計圖,時尚漂亮
占地:多戶型可選
推薦:10套新農村自建房設計圖,2026年最新設計
閱讀次數:4825737次
100套鄉村別墅圖片大全,2026年最新設計
閱讀次數:2492203次
6款農村蓋一層平房的設計圖,10萬元就能建起來
閱讀次數:1852637次
這11個一層農村自建房別墅火爆了朋友圈!我最喜歡戶型十!你呢
閱讀次數:750268次
農村6萬元建一層小別墅圖,你敢相信嗎
閱讀次數:567686次
農村5萬塊就能自建房,6套普通房子設計圖分享,你沒看錯!
閱讀次數:419410次
8套農村漂亮三間平房圖片,非常適合在農村修建!
閱讀次數:411197次
農村自建房化糞池怎么做?附方案及施工過程
閱讀次數:391783次
農村一層三間平房設計圖,告別土氣養老房,讓人忍不住點贊
閱讀次數:350581次
新農村二層樓房圖片造價12萬,挑一套回家建房吧!
閱讀次數:349126次
