
|
案例基本信息 ? 占地尺寸:16.7x12m ? 占地面積:200㎡ ? 建筑面積:465㎡ ? 建筑情況:5室3廳1廚房6衛1健身房1棋牌室1影音室1娛樂室1酒窖 ? 建筑結構:框架結構 ? 造價估算:56萬元
該宅基地兩側均有住宅,因此根據實際情況,別墅需要嚴格限制高度、寬度及進深,避免側面開窗是設計需要考慮的一大問題。 設計說明: 該案例為美式風格別墅,基地兩側均建有兩層住宅,為避免影響鄰居采光,別墅向下建地下室滿足家庭需求。 效果圖
別墅外觀素雅,坡面屋頂增添美式元素,設計感強,夾層做閣樓,增加室內空間。
小院是農村建房不可或缺的一部分,既能儲物,停放車輛,又是私家室外活動空間,可種植花草裝飾。
別墅造型富有層次,二三兩層的露臺供晨練遠眺,也為居家生活增添趣味。
平面圖 地下室是住宅的主要娛樂空間,內設健身房,影音室和棋牌室等,閑暇時可約三五好友一起享用。
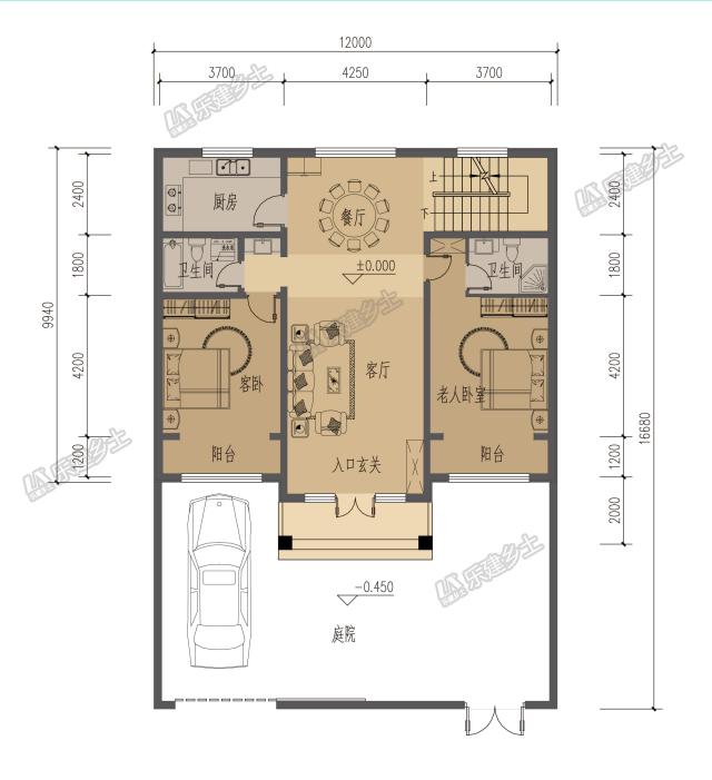
▲ 負一層平面圖 二層老人房設置獨立衛生間,方便老人使用,廚房及餐廳處開窗保障了良好的采光及通風,客廳與餐廳處于同一開放空間,視野開闊,并形成了南北通透的優質布局。
▲ 一層平面圖 三層利用較大面積布置兒童娛樂室,就算家里有兩三個孩子也可以自由活動,不受局限。
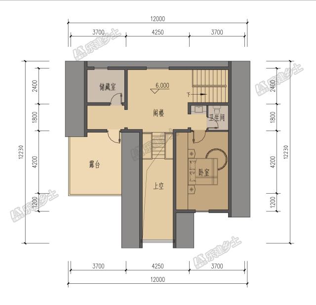
▲ 二層平面圖 閣樓面積相對狹窄,只設置一間臥室,可供客人居住。閣樓露臺也是家庭晾曬衣物的好去處。
▲ 閣樓平面圖 立面圖
▲ 南立面
▲ 北立面
▲ 東立面
▲ 西立面 這座美式別墅精巧美觀,布局滿足普通家庭需求,在高度及層數上適應居住環境,與其它住宅保持相近高度及進深,以免鄰里互相影響,思慮周全。 圖紙之家-專注農村別墅/自建房設計18年,集合國內200余位經驗豐富的設計師,被評為口碑最好的農村建筑設計公司! |

11×10米農村二層別墅圖,百平占地經典實用舒適大氣
占地:103.47平方米
兄弟兩戶雙拼房屋設計圖及外觀圖片,戶型合理
占地:185平方米
農村自建二層半樓房效果圖,美觀大氣布局合理,很適合農村人自
占地:160.11平方米
250平方米農村三層別墅設計圖紙及效果圖大全,18.3x15米
占地:247平方米
小戶型三層別墅房屋設計圖紙,占地80多平米,麻雀雖小五臟俱全
占地:80平方米
鄉村典型自建房中式二層四合院別墅設計圖,左右對稱設計
占地:430平方米
150平方米農村二層房屋建筑設計圖,15.2x9.4米
占地:148平方米
二層新農村自建房設計圖,帶外觀效果圖
占地:140平方米
兩層半帶閣樓別墅房屋設計圖,含外觀效果圖片
占地:118平方米
高端大氣的三層新中式合院別墅設計圖紙及外觀效果圖
占地:203.4平方米
高端大氣三層別墅設計圖,建好就是村里最靚的
占地:120平方米
三層帶挑空客廳旋轉樓梯,農村這樣建別墅高檔大氣
占地:130.51平方米
現代風平屋頂一層自建房設計,經濟時尚
占地:147.17平方米
適合農村自建四合院圖片,中式二層四合院別墅設計施工圖紙
占地:232平方米
全網都在抄的二層別墅!爆款12米面寬設計戶型太實用
占地:139.51平方米
一層半中式合院別墅設計圖,帶配房,有庭有院有品位
占地:135平方米左右
新農村現代簡約別墅建筑設計圖紙(含外觀效果圖),28萬左右
占地:107平方米
四層復式別墅設計方案,外觀氣派布局實用,舒適宜居美極了!
占地:204.64平方米
歐式三層別墅設計圖,低調奢華,實用布局,好設計不容錯過
占地:134.1平方米
新款農村四層復式別墅設計圖紙及效果圖,外立面清新別致
占地:207平方米
推薦:10套新農村自建房設計圖,2026年最新設計
閱讀次數:4825737次
100套鄉村別墅圖片大全,2026年最新設計
閱讀次數:2492203次
6款農村蓋一層平房的設計圖,10萬元就能建起來
閱讀次數:1852637次
這11個一層農村自建房別墅火爆了朋友圈!我最喜歡戶型十!你呢
閱讀次數:750268次
農村6萬元建一層小別墅圖,你敢相信嗎
閱讀次數:567686次
農村5萬塊就能自建房,6套普通房子設計圖分享,你沒看錯!
閱讀次數:419410次
8套農村漂亮三間平房圖片,非常適合在農村修建!
閱讀次數:411197次
農村自建房化糞池怎么做?附方案及施工過程
閱讀次數:391783次
農村一層三間平房設計圖,告別土氣養老房,讓人忍不住點贊
閱讀次數:350581次
新農村二層樓房圖片造價12萬,挑一套回家建房吧!
閱讀次數:349126次
