
|
徽派建筑可以說是傳統建筑中的中流砥柱了,但是現在農村中黛瓦、粉壁、馬頭墻的徽派風格反而是比較少見的,但是喜愛徽派建筑的朋友肯定不少,下面4款徽派別墅看看吧! 戶型一
小河邊一棟黛瓦白墻的徽派建筑,岸邊幾顆垂楊柳,這一切分明就是畫中的場景!
一層建筑說明:1入戶平臺,1客廳,1餐廳,1廚房,1棋牌區,1車庫,1玄關,1臥室,2衛生間。
二層建筑說明:1休閑茶室,1起居室,1露臺,1書房,3臥室,2衛生間。 戶型二
造型方正,朱門白墻,二樓現代玻璃陽臺和古典風格十分和諧,整棟建筑與現代道路的氛圍融合的很好。
一層建筑說明:1客廳,1餐廳,1廚房,2臥室,1儲藏室,1衛生間。
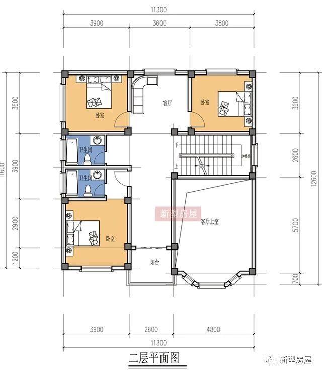
二層建筑說明:1客廳,1陽臺,3臥室,2衛生間。
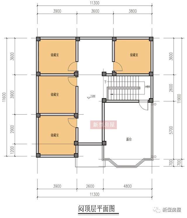
悶頂層建筑說明:1露臺,4儲藏室。 戶型三
這么棟小房子,徽派賦予了更獨特的味道,很是適合建在山林間,曲徑旁。
一層建筑說明:1客廳,1餐廳,1廚房,3臥室,1衛生間。 戶型四
徽派風格主體加上現代的點綴,能很好的與周圍各異的建筑相適應,獨特的庭院更是點睛之筆。
一層建筑說明:1客廳,1餐廳,1廚房,1玄關,1庭院,1衛生間。
二層建筑說明:1客廳,2臥室,1陽臺,1衛生間。
三層建筑說明:1書房,1陽臺,2臥室,1衛生間。 這4套徽派別墅喜歡就轉發吧! 圖紙之家-專注農村別墅/自建房設計18年,集合國內200余位經驗豐富的設計師,被評為口碑最好的農村建筑設計公司! |

2026新中式農村三層別墅圖,外觀漂亮,看一眼就愛上
占地:240平方米
占地105平實用三層樓房別墅設計圖紙,造型方正簡單大氣
占地:105平方米
農村一層平房設計圖,人字坡戶型簡單大方,養老自住都不錯
占地:139.2平方米
歐式二層別墅cad施工圖紙,含效果圖,歐式別墅設計圖紙展示
占地:189平方米
豪華農村帶露臺三層樓房別墅設計圖紙,占地200平方米左右
占地:200平方米
簡單實用農村自建小樓二層別墅設計圖,戶型造型簡約好看
占地:146平方米
簡潔干練三層現代風平頂別墅設計圖,8X15米
占地:115.1平方米
農村一層四開間養老別墅設計圖,造型美布局佳
占地:164.27平方米
2026年新款二層半農村自建小別墅設計圖紙,占地150平方米
占地:150平方米
農村二層半樓房設計圖及效果圖,歐式風格
占地:150平方米
13X13米新農村中式風三層別墅設計方案,內部布局緊湊溫馨
占地:168.43平方米
占地70平方米的三層獨棟別墅設計圖,小戶型自建房屋效果圖
占地:70平方米左右
鄉村三層別墅CAD建筑設計圖,110平方米戶型,帶效果圖和全套施工
占地:110平方米
180平方米農村二層別墅四合院建筑設計圖紙
占地:181平方米
二層復式小洋樓設計圖,外觀精致,戶型合理
占地:115平方米
新農村三層帶露臺自建房設計施工圖,農村自建別墅推薦
占地:112平方米
帶小院子的鄉村一層別墅設計圖紙,120平方米
占地:多戶型
獨棟別墅設計戶型圖帶外觀效果圖,雙向樓梯設計
占地:155平方米
造價低經濟簡單的二層農村自建房圖紙設計,簡潔實用
占地:136.08平方米
新中式二層別墅設計圖,農村最適合建的兩層小樓,13×12米
占地:143平方米
推薦:10套新農村自建房設計圖,2026年最新設計
閱讀次數:4825737次
100套鄉村別墅圖片大全,2026年最新設計
閱讀次數:2492203次
6款農村蓋一層平房的設計圖,10萬元就能建起來
閱讀次數:1852637次
這11個一層農村自建房別墅火爆了朋友圈!我最喜歡戶型十!你呢
閱讀次數:750268次
農村6萬元建一層小別墅圖,你敢相信嗎
閱讀次數:567686次
農村5萬塊就能自建房,6套普通房子設計圖分享,你沒看錯!
閱讀次數:419410次
8套農村漂亮三間平房圖片,非常適合在農村修建!
閱讀次數:411197次
農村自建房化糞池怎么做?附方案及施工過程
閱讀次數:391783次
農村一層三間平房設計圖,告別土氣養老房,讓人忍不住點贊
閱讀次數:350581次
新農村二層樓房圖片造價12萬,挑一套回家建房吧!
閱讀次數:349126次
