
|
新中式具有中國傳統風格文化意義,在當前時代背景下的演繹,是對中國當代文化充分理解基礎上的當代設計。新中式是傳承傳統中式風格的精髓,通過與現代潮流的對話碰撞而產生的創新。
|

80多平米二層小型自建房設計圖,經濟舒適別具一格
占地:84.48平方米
帶小院新農村房屋設計圖紙,三層別墅推薦
占地:115平方米
農村一層平房別墅設計圖紙,130平米左右,主體十幾萬
占地:130平方米左右
一層中式三合院農村自建別墅圖,面寬18米帶堂屋設計
占地:165.72平方米
農村四間二層小洋樓設計圖,歐式別墅、現代洋氣
占地:200平方米
二層農村房子圖片及全套施工圖紙,占地150平面左右
占地:150平方米
面寬17米農村一層平房設計圖,簡約空間敞亮
占地:169.393平方米
農村二層樓建房造型圖及全套施工圖紙,占地110平米左右,帶地下
占地:110平方米
性價比超高一層農村自建別墅設計圖,戶型耐看不用爬樓
占地:158.6平方米
簡單實用新農村三層住宅房屋設計圖,時尚大氣,低調
占地:140平方米
經濟實用二層復式樓房設計圖 ,占地150平方米,造價25萬左右
占地:150平方米
農村小戶型三層復式樓房設計圖,100平左右
占地:100平方米
新農村三層房屋設計圖紙大全,新農村住宅圖紙
占地:108平方米
三層新農村140平方米房屋設計圖紙,全套施工圖及效果圖
占地:140平方米
新中式農村50萬三層別墅款式圖,占地面積160平米左右
占地:150平方米
110平左右二層小洋樓設計圖,含效果圖片
占地:108平方米
新農村中式二層樓房設計圖紙及效果圖,125,150,170三個戶型可行
占地:多種戶型
兩層15萬農村自建房設計圖,農村蓋房設計大全圖
占地:130平方米
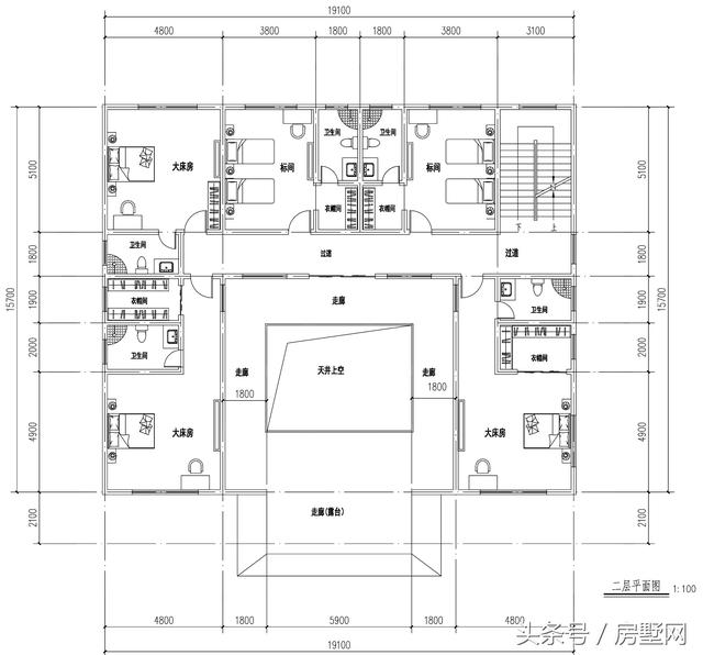
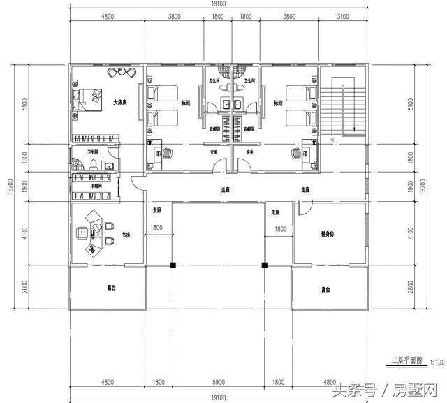
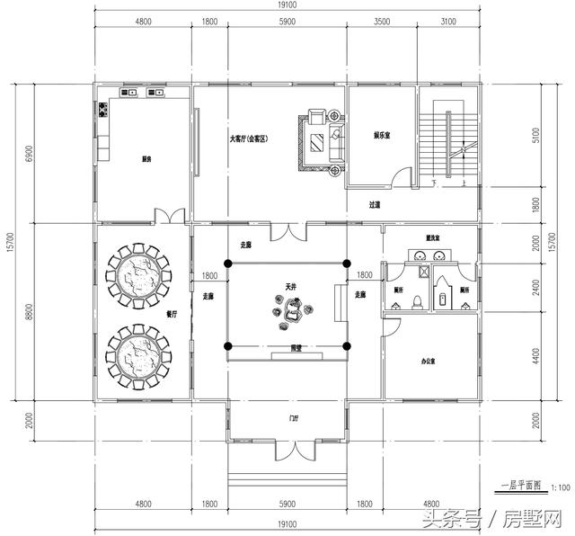
中式四合院風格別墅設計圖,平屋頂,書房、茶室、健身房一應俱
占地:370平方米
經濟實用二層樓房設計圖紙,功能布局多,12×11米
占地:130平方米
推薦:10套新農村自建房設計圖,2026年最新設計
閱讀次數:4825737次
100套鄉村別墅圖片大全,2026年最新設計
閱讀次數:2492203次
6款農村蓋一層平房的設計圖,10萬元就能建起來
閱讀次數:1852637次
這11個一層農村自建房別墅火爆了朋友圈!我最喜歡戶型十!你呢
閱讀次數:750268次
農村6萬元建一層小別墅圖,你敢相信嗎
閱讀次數:567686次
農村5萬塊就能自建房,6套普通房子設計圖分享,你沒看錯!
閱讀次數:419410次
8套農村漂亮三間平房圖片,非常適合在農村修建!
閱讀次數:411197次
農村自建房化糞池怎么做?附方案及施工過程
閱讀次數:391783次
農村一層三間平房設計圖,告別土氣養老房,讓人忍不住點贊
閱讀次數:350581次
新農村二層樓房圖片造價12萬,挑一套回家建房吧!
閱讀次數:349126次
