
|
房子是家的載體,家是人生的歸宿,一切的一生一世都將歸結于房子。選擇一處居所,也就意味著選擇了一種生活方式,優質的生活源于精致高端的別墅住宅,那么,你想要怎樣的生活呢?
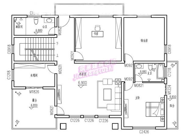
本戶型為農村三間四層別墅設計圖,客廳中空,清新脫俗的外觀,非常流暢的線條讓整棟別墅看起來非常自然,寬大的窗戶彰顯不一樣的氣質,戶型布局合理、實用。 開間:16米 進深:11.7米 占地面積:185平方米左右; 建筑層高:四層; 建筑高度:16.15米(含屋頂); 平面布局圖:
一層戶型展示:客廳、休閑區、餐廳、廚房、洗衣房、衛生間、主臥(帶衛生間)、工具房(可自定義功能);
二層戶型展示:客廳上空、起居室、主人套間(衛生間和書房)、主臥(帶衣帽間)、洗衣房、衛生間、露臺;
三層戶型展示:起居室、主臥(帶衛生間)、練功房、衣帽間、衛生間、書房、露臺;
四層戶型展示:起居室、臥室x3、儲藏間、衛生間。 圖紙之家-專注農村別墅/自建房設計18年,集合國內200余位經驗豐富的設計師,被評為口碑最好的農村建筑設計公司! |

面寬不到8米的農村二層半別墅建筑圖紙及效果圖
占地:96平方米左右
130平左右三層樓房設計圖,新農村住宅自建推薦
占地:128平方米
150平米田園風格二層別墅設計圖紙,沉穩大氣有內涵
占地:150平方米
100平新農村三層復式房屋別墅設計圖紙,造價30萬左右
占地:106平方米
帶閣樓二層別墅設計圖,帶外觀效果圖片
占地:160平方米
占地180平方米二層農村新款樓房別墅設計圖,外觀漂亮
占地:180平方米
簡單實用新農村三層住宅房屋設計圖,時尚大氣,低調
占地:140平方米
一層中式七字型房屋設計圖,帶院子經典設計,耐看不過時
占地:163.18平方米
經典小戶型雙拼二層新農村房屋住宅設計圖,含效果圖
占地:80平方米
新農村二層房屋建筑施工圖紙,廚房獨立在配房
占地:107平方米
中式二層對稱別墅設計圖,帶地下室設計,整體造價經濟
占地:171.6平方米
120平米簡單實用型農村小別墅設計圖,二層屋頂為全露臺,小開間
占地:120平方米
歐式二層農村別墅設計圖,140平方米戶型方正的好方案
占地:142.51平方米
兄弟三層雙拼房屋設計圖,帶效果圖,戶型好
占地:256平方米
大氣的三層鄉村別墅設計方案圖,小面積建出豪宅感
占地:104.9平方米
鄉下建房一層戶型圖及全套圖紙,養老房,還是一層好
占地:210平方米
面寬20米農村自建房設計圖一層設計圖,五開間養老戶型
占地:194平方米
面寬22米的高端三層自建房別墅設計圖,功能齊全
占地:222.47平方米
五十萬二層半鄉村別墅,客廳挑空設計,占地200平米左右
占地:200平方米
農村五間房子設計圖,大戶型別墅設計圖推薦
占地:240平方米
推薦:10套新農村自建房設計圖,2026年最新設計
閱讀次數:4825737次
100套鄉村別墅圖片大全,2026年最新設計
閱讀次數:2492203次
6款農村蓋一層平房的設計圖,10萬元就能建起來
閱讀次數:1852637次
這11個一層農村自建房別墅火爆了朋友圈!我最喜歡戶型十!你呢
閱讀次數:750268次
農村6萬元建一層小別墅圖,你敢相信嗎
閱讀次數:567686次
農村5萬塊就能自建房,6套普通房子設計圖分享,你沒看錯!
閱讀次數:419410次
8套農村漂亮三間平房圖片,非常適合在農村修建!
閱讀次數:411197次
農村自建房化糞池怎么做?附方案及施工過程
閱讀次數:391783次
農村一層三間平房設計圖,告別土氣養老房,讓人忍不住點贊
閱讀次數:350581次
新農村二層樓房圖片造價12萬,挑一套回家建房吧!
閱讀次數:349126次
