
|
人人都想住豪宅,人人都渴望自己能夠擁有一棟屬于自己的別墅,但生活總是讓人覺得心有余而力不足,長時間在城市里摸爬滾打的你是否覺得身心俱疲?你是否覺得在城市里掙再多的錢也沒有什么幸福感?或許是因為城市的生活讓你覺得壓力太大了吧!回歸田園,擁抱大自然的號角不斷在腦海里激蕩回旋,如果掙夠了錢,就會老家蓋一套別墅,過著悠閑自在的生活,這或許是你最理想的生活方式。 下面給大家介紹一款三層新別墅設計圖,開間14.5米,進深12.5米,首層占地面積157.59,總建筑面積436.65㎡,建筑總高度12.56m,采用磚混結構,主體造價40萬。
正面效果圖 本套三層新農村自建房設計圖設計精美闊氣,有超大拱形聯體通窗玻璃,多個陽臺和露臺,外墻采用統一的金黃色為主色,效果閃亮,屋頂的橘黃色與之協調搭配,一層客廳挑空設計,設有娛樂室、影音室、休閑廳,豪華套間等功能,整體設計現代時尚。
背面效果圖 功能設計及室內布局展示
一層平面圖 一層:挑空客廳、神位、娛樂室、影音室、廚房、餐廳、公衛
二層平面圖 二層:休閑廳(帶陽臺)、主臥(帶衛生間、陽臺、書房)、次臥(帶衛生間)
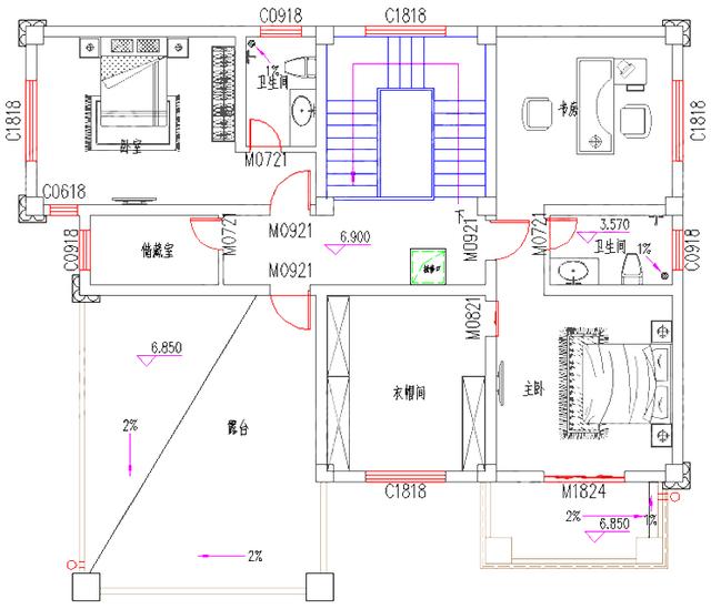
三層平面圖 三層:主臥(帶陽臺、衛生間、衣帽間、書房)、次臥(帶衛生間)、儲藏室、露臺 其它5款受歡迎的別墅圖紙展示:
1
2
3
4
5 圖紙之家-專注農村別墅/自建房設計18年,集合國內200余位經驗豐富的設計師,被評為口碑最好的農村建筑設計公司! |

中式一層仿古自建平房設計圖,灰墻青瓦,外觀古香古色
占地:168.48平方米
造價低經濟簡單的二層農村自建房圖紙設計,簡潔實用
占地:136.08平方米
農村兄弟合建一層雙拼房別墅圖,對稱設計,工整大方!
占地:170平方米
單棟多戶三層別墅設計圖,適合兩三家一起住
占地:125平米
好看又簡單的二層樓房設計,經濟實用型的農村小別墅
占地:135平方米
經濟實用二層樓房設計圖紙,功能布局多,12×11米
占地:130平方米
時尚創意型二層小別墅設計圖,占地面積110平方米,外觀清新典雅
占地:110平方米
三層現代簡約農村雙拼小別墅圖,好看精致,開間17米
占地:187平方米
超現代風格平頂別墅設計圖,外觀時尚,80、90很喜歡
占地:112.18平方米
農村三間兩層樓房設計圖,背面不開窗,氣勢上就勝人一籌
占地:153.7平方米
簡約現代的二層別墅自建房設計圖,13米乘9米
占地:124平方米
時尚一層別墅圖,一層這樣蓋房最漂亮
占地:160平方米
一層5間歐式平房小洋樓建筑設計圖紙,大戶型一層別墅戶型
占地:216平方米
農村一層中式三合院戶型設計圖,造型古香古色
占地:215平方米左右
140平方米一層歐式新農村平房設計圖,主體造價僅11萬
占地:141.218平方米
面寬不到8米的農村二層半別墅建筑圖紙及效果圖
占地:96平方米左右
農村二層帶車庫樓房設計圖,帶外觀效果圖片
占地:125平方米
人氣最旺的二層半別墅設計圖紙,復式挑空二層半自建房
占地:122.679平方米
經濟實惠一層戶型圖,農村養老房舒適至上,簡約而不失溫馨
占地:147.5平方米
簡單實用的四層農村自建房屋設計圖,占地100平米左右
占地:100平方米
推薦:10套新農村自建房設計圖,2026年最新設計
閱讀次數:4825737次
100套鄉村別墅圖片大全,2026年最新設計
閱讀次數:2492203次
6款農村蓋一層平房的設計圖,10萬元就能建起來
閱讀次數:1852637次
這11個一層農村自建房別墅火爆了朋友圈!我最喜歡戶型十!你呢
閱讀次數:750268次
農村6萬元建一層小別墅圖,你敢相信嗎
閱讀次數:567686次
農村5萬塊就能自建房,6套普通房子設計圖分享,你沒看錯!
閱讀次數:419410次
8套農村漂亮三間平房圖片,非常適合在農村修建!
閱讀次數:411197次
農村自建房化糞池怎么做?附方案及施工過程
閱讀次數:391783次
農村一層三間平房設計圖,告別土氣養老房,讓人忍不住點贊
閱讀次數:350581次
新農村二層樓房圖片造價12萬,挑一套回家建房吧!
閱讀次數:349126次
