
|
今天給大家分享一款三層農村別墅圖紙,這款別墅戶型設計豪華大氣,有超大聯體通窗玻璃,屋頂涼亭,還有露臺花園,休閑廳、娛樂廳等特色功能,主體35萬可以建成,共設有3廳6臥,滿足農村三四代同堂的住房需求。下面一起來看看這款別墅詳細介紹。
效果圖 層數:三層 結構形式:框架結構 主體造價:35萬 開間:12.8米 進深:10.8米 占地面積:129.80平方米 建筑面積:343.76平方米 設計功能
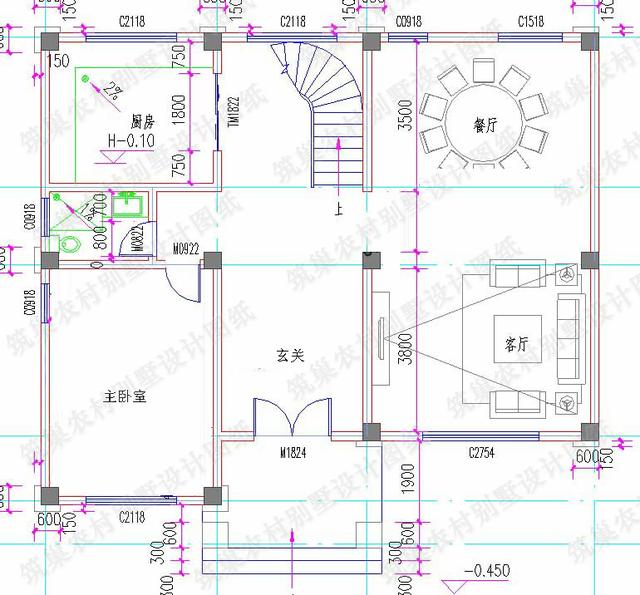
一層平面圖 一層:廚房、公共衛生間、主臥、門廳、客廳、餐廳
二層平面圖 二層:主臥室(帶衛生間)、臥室(帶衛生間)、臥室、休閑廳、陽臺
三層平面圖 三層:主臥(帶衛生間)、臥室、娛樂廳、露臺花園 圖紙之家-專注農村別墅/自建房設計18年,集合國內200余位經驗豐富的設計師,被評為口碑最好的農村建筑設計公司! |

四開間一層半別墅設計圖,帶閣樓設計的戶型方案
占地:190.7平方米
農村27萬二層自建別墅設計圖,占地140平米左右,戶型極好
占地:140平方米
農村自建三間三層樓房設計圖,帶露臺,經典實用
占地:135平方米
大戶型三層別墅設計圖,高貴大氣,占地面積將近300平
占地:273.33平方米
150平米農村兩層樓房設計圖,簡單大氣時尚
占地:150平方米
復式三層帶車庫簡歐小別墅設計圖,農村三層房屋設計圖
占地:126平方米
新農村一層平屋頂簡單自建房別墅設計圖紙,全套設計
占地:130平方米
新農村田園風格兩層半別墅設計圖,外觀造型非常漂亮
占地:147.8平方米
140平米平屋頂二層新農村自建房設計圖,極簡主義設計 ,實用優
占地:143平方米
方方正正的二層農村別墅設計圖,普通農村人都能建
占地:201.05平方米
面寬13米二層鄉村自建別墅戶型圖,帶堂屋和露臺
占地:135.47平方米
進深15米新農村三層房屋設計圖紙,農村住宅設計圖集
占地:128平方米
農村一層獨棟別墅設計圖,帶閣樓,設計感十足
占地:250平方米
造價40萬內三層別墅房屋設計方案,設計圖+外觀效果圖
占地:150平方米
占地170平米2026新款三層別墅設計圖片及設計方案
占地:170平方米
簡約實用農村自建房戶型圖,美觀經濟又通透,南北通透住得爽!
占地:160.6平方米
二層雙拼別墅外觀效果圖及施工圖,帶露臺,14乘12米
占地:168平方米
簡歐風格二層別墅設計圖,經典不過時大氣時尚,漂亮的不像話!
占地:205.68平方米
爆款農村兄弟雙拼自建房設計圖,占地不大舒適宜居
占地:147.2平方米
小型三層別墅cad建筑圖紙帶效果圖,帶屋頂露臺
占地:101平方米左右
推薦:10套新農村自建房設計圖,2026年最新設計
閱讀次數:4825737次
100套鄉村別墅圖片大全,2026年最新設計
閱讀次數:2492203次
6款農村蓋一層平房的設計圖,10萬元就能建起來
閱讀次數:1852637次
這11個一層農村自建房別墅火爆了朋友圈!我最喜歡戶型十!你呢
閱讀次數:750268次
農村6萬元建一層小別墅圖,你敢相信嗎
閱讀次數:567686次
農村5萬塊就能自建房,6套普通房子設計圖分享,你沒看錯!
閱讀次數:419410次
8套農村漂亮三間平房圖片,非常適合在農村修建!
閱讀次數:411197次
農村自建房化糞池怎么做?附方案及施工過程
閱讀次數:391783次
農村一層三間平房設計圖,告別土氣養老房,讓人忍不住點贊
閱讀次數:350581次
新農村二層樓房圖片造價12萬,挑一套回家建房吧!
閱讀次數:349126次
