
|
三層平屋頂35萬2廳7臥帶挑空餐廳+涼亭獨棟自建房圖紙 這款農村獨棟自建房圖紙采用平屋頂設計,比較符合農村建房審美,外墻采用灰色為主色,比較耐看,而且很耐臟,二三層均有涼亭,室內餐廳挑空設計,寬敞明亮,高大上,四面開窗,室內通透明亮,還有臥室套房,居住舒適。
效果圖 圖紙詳情 層數:三層 開間:12.2米 進深:9.9米 首層占地面積:126.14㎡ 總建筑面積:305.79㎡ 結構形式:框架結構 主體造價:35萬 室內布局
一層平面圖 一層:客廳、臥室(帶衛生間)、臥室、臥室、廚房、餐廳(挑空)、公衛
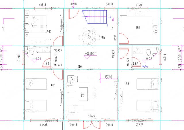
二層平面圖 二層:主臥(帶主衛、露臺)、次臥(帶露臺)、次臥、儲藏室、涼亭、公衛
三層平面圖 三層:臥室(帶衛生間)、休閑室、涼亭、露臺 圖紙之家-專注農村別墅/自建房設計18年,集合國內200余位經驗豐富的設計師,被評為口碑最好的農村建筑設計公司! |

一層自建別墅設計圖,占地70平不大功能很齊全,非常適合農村養
占地:69.61平方米
中國最美建筑四合院設計圖紙及效果圖,顏值爆棚
占地:152平方米左右
125平兩層別墅房屋設計圖,帶普通和復式兩個戶型
占地:125平方米
簡單時尚二層住宅設計圖紙,簡單的設計,不平凡的視覺感受
占地:110平方米
16米乘11米接地氣農村二層自建房圖,帶配房設計
占地:149.8平方米
一層中式七字型房屋設計圖,帶院子經典設計,耐看不過時
占地:163.18平方米
農村兄弟雙拼別墅三層,美觀氣派,室內布局合理實用
占地:300平方米
村里三層新中式風自建別墅圖,對稱設計,氣派好看
占地:135.3平方米
160平米三層別墅設計圖,功能齊全,外觀漂亮,適合和父母同住
占地:160平方米
120平方米三層歐式別墅設計圖,進門就是旋轉樓梯
占地:119.76平方米
對稱設計二層歐式別墅設計圖,優雅時尚有品位
占地:151.85平方米
經典小戶型二層新農村房屋設計圖紙,客廳中空,造價20萬
占地:94平方米
三層樓房設計圖紙含效果圖,外觀造型高低錯落,別致大方
占地:152.4平方米
歐式豪華三層別墅設計圖,占地面積170平米,高端大氣帶露臺
占地:170平方米
150平米左右農村二層房屋設計圖,造價25萬左右漂亮實用
占地:150平方米
帶地下室獨棟三層高端別墅房圖紙設計圖,復式客廳旋轉樓梯
占地:146.145平方米
歐式三層豪宅樓設計圖紙及外觀效果圖,占地180平左右
占地:177.82平方米
鄉村兄弟二層小戶型雙拼房屋別墅設計圖,造價低,面積小
占地:多種戶型
農村二層帶閣樓四間別墅設計圖,外觀美觀,戶型實用
占地:175平方米
時尚大氣的三層現代風別墅設計圖,露臺+挑空客廳
占地:321平方米
推薦:10套新農村自建房設計圖,2026年最新設計
閱讀次數:4825737次
100套鄉村別墅圖片大全,2026年最新設計
閱讀次數:2492203次
6款農村蓋一層平房的設計圖,10萬元就能建起來
閱讀次數:1852637次
這11個一層農村自建房別墅火爆了朋友圈!我最喜歡戶型十!你呢
閱讀次數:750268次
農村6萬元建一層小別墅圖,你敢相信嗎
閱讀次數:567686次
農村5萬塊就能自建房,6套普通房子設計圖分享,你沒看錯!
閱讀次數:419410次
8套農村漂亮三間平房圖片,非常適合在農村修建!
閱讀次數:411197次
農村自建房化糞池怎么做?附方案及施工過程
閱讀次數:391783次
農村一層三間平房設計圖,告別土氣養老房,讓人忍不住點贊
閱讀次數:350581次
新農村二層樓房圖片造價12萬,挑一套回家建房吧!
閱讀次數:349126次
