
|
本套45萬137㎡3廳7臥帶活動室別墅訂制設計,外觀采用時下流行的簡歐風格,立面采用仿大理石真石漆,配灰藍色坡面屋頂,低調大氣,室內布局緊湊,功能完善齊全,實用美觀。 項目基本信息 建筑面積:386m²,一層建筑面積137m²,二層建筑面積131 m²,三層建筑面積118 m²。 建筑風格:歐式 建筑結構:框架結構 參考造價:主體45萬(浙江杭州市臨安區) 設計機構:杭州一墅設計建筑設計工作室 設計師:王工、馬工 結構師:陸工
效果圖 建筑平面
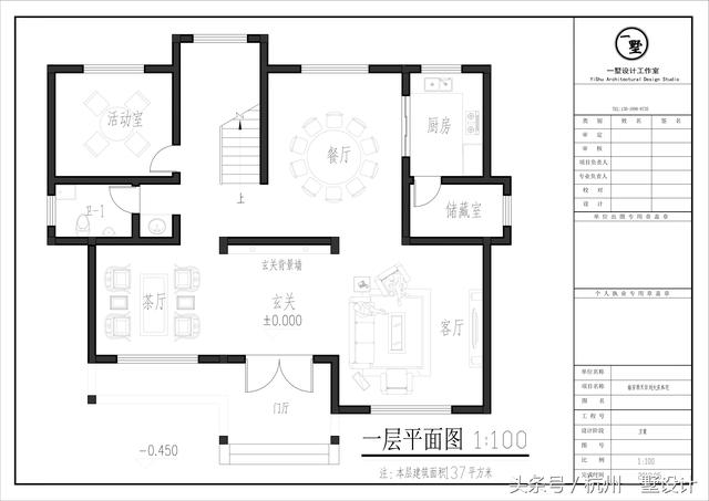
一層平面圖:客廳、餐廳、玄關、茶室、活動室、帶儲藏室廚房、公共衛生間。
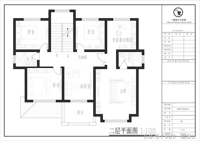
二層平面:主臥(帶內衛衣帽間)、3個臥室、公共衛生間、起居室、陽臺。
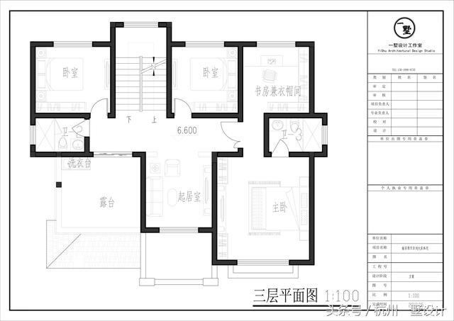
三層平面:主臥(帶內衛衣帽間)、2個臥室、公共衛生間、起居室、生活露臺。 建筑效果圖:
以上內容皆為杭州一墅設計建筑設計工作室出品: 達心之匠,悅人守全,融天匠心一墅!誠信、誠心、用心,以一個工匠精神完成每一個設計! 圖紙之家-專注農村別墅/自建房設計18年,集合國內200余位經驗豐富的設計師,被評為口碑最好的農村建筑設計公司! |

簡約精致的二層房子設計圖,農村自建經濟實用
占地:89.76平方米
150平方米二層別墅設計及效果圖展示下載,17X10米
占地:150平方米
新中式農村自建二層別墅設計圖,占地160平米左右,客廳中空
占地:160平方米
最新潮的90平方米三層房屋設計圖 ,古樸典雅又不失時尚
占地:90平方米
占地130平方米中式二層小樓房設計圖紙,農村自建戶型實用
占地:136.04平方米
12×11米兩層農村建房圖紙,農村建房最佳戶型,簡單的風格
占地:140平方米
面寬11米現代風二層小別墅,平屋頂設計,緊跟潮流時尚前衛
占地:94.43平方米
鄉村最美四合院設計圖及外觀效果圖片,國人的理想住宅
占地:280.62平方米
面寬8米多小開間三層農村別墅設計圖,占地不足百平
占地:95.21
150平方米的新農村自建三層小別墅設計施工圖紙及效果圖
占地:150平方米
農村兩開間農村別墅設計圖,典雅大氣,完全不輸大戶型
占地:116.26平方米
農村四層樓房設計圖,復式結構、客廳中空,外觀效果圖+全套圖
占地:130平方米
20萬農村一層半小洋樓圖,自建別墅設計方案推薦
占地:155平方米
二層復式農村豪宅別墅設計圖,挑空客廳旋轉樓梯高級感十足
占地:215.43平方米
挑空客廳戶型歐式二層別墅設計圖紙,高端大氣帶車庫
占地:236.09平方米
自建小樓二層農村別墅設計圖,大氣好看,13米乘14米
占地:181.62
農村一層四間平房設計圖方案,含外觀圖片,預算10萬
占地:190平方米
115平漂亮的三層別墅設計方案,外觀圖片大氣、精致
占地:115平方米
徽派120平新農村住宅設計方案,帶外觀效果圖
占地:120平方米
三層新農村自建小型別墅設計圖及效果圖,三間三層樓房戶型
占地:114平方米
推薦:10套新農村自建房設計圖,2026年最新設計
閱讀次數:4825737次
100套鄉村別墅圖片大全,2026年最新設計
閱讀次數:2492203次
6款農村蓋一層平房的設計圖,10萬元就能建起來
閱讀次數:1852637次
這11個一層農村自建房別墅火爆了朋友圈!我最喜歡戶型十!你呢
閱讀次數:750268次
農村6萬元建一層小別墅圖,你敢相信嗎
閱讀次數:567686次
農村5萬塊就能自建房,6套普通房子設計圖分享,你沒看錯!
閱讀次數:419410次
8套農村漂亮三間平房圖片,非常適合在農村修建!
閱讀次數:411197次
農村自建房化糞池怎么做?附方案及施工過程
閱讀次數:391783次
農村一層三間平房設計圖,告別土氣養老房,讓人忍不住點贊
閱讀次數:350581次
新農村二層樓房圖片造價12萬,挑一套回家建房吧!
閱讀次數:349126次
