
|
農村很多年輕人都喜歡往大城市里跑,因為那里有更多的機會和機遇,因為想要改變命運的愿望在心里日益強大,但當我們真正在大城市里有扎根了之后,又會特別懷念過去在老家的生活,總覺得現在雖然一切都好,又好像缺少了點什么......似乎那個成長的地方才是我們真正的家,這也正是為什么那么多人愿意花錢回老家蓋房子的原因吧!下面給大家分享一款農村房屋設計圖。
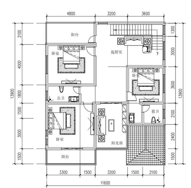
效果圖 這套農村房屋設計圖開間進深11.6×13.9米,占地面積160㎡,建筑面積290㎡,主體成本造價26萬。戶型設計精簡大氣,外墻統一采用黃色墻磚裝飾,搭配灰色坡屋頂,施工難度不高,室內布局合理,擁有眾多功能。 室內布局展示
一層平面圖 一層功能設計:玄關、神龕、車庫、客廳、廚房、餐廳、公衛、臥室(附套衛)、臥室、儲藏室 本層功能齊全,有兩間臥室,其中一間帶套衛,可以家里的老人提供更方便的住處。 入門設有玄關門廳,還有神龕,可以祭拜祖先,與農村的民俗習慣契合。 玄關右邊有車庫,方便停車,對于現在的農村住房來說,帶有車庫的戶型才夠品。
二層平面圖 二層:起居室、陽光房、臥室*2(帶陽臺)、臥室(帶衛生間)、公衛 該層最大的設計亮點,就是設有陽光房,陽光房用玻璃圍護,以便達到更好的采光效果,在陽光房內種植花草,提高生活品質和樂趣。 共3間臥室套房,每個臥室的方位都不一樣,互不干擾。 圖紙之家-專注農村別墅/自建房設計18年,集合國內200余位經驗豐富的設計師,被評為口碑最好的農村建筑設計公司! |

二層帶車庫歐式尊貴別墅圖,客廳中空,美觀,大氣,實用
占地:300平方米
新農村復試兩層半樓房設計圖,帶大露臺,簡單經濟實用大氣
占地:190平方米
中式三層新農村房子別墅設計圖,看了那么久,還是中式最有韻味
占地:97.2平方米
占地110平米兩層半農村房子設計圖,簡單實用
占地:110.25平方米
農村二層帶車庫樓房設計圖,帶外觀效果圖片
占地:125平方米
農村自建房設計圖,三層房屋設計圖及效果圖
占地:120平方米
三層新農村140平方米房屋設計圖紙,全套施工圖及效果圖
占地:140平方米
130平氣派美觀的二層別墅房屋設計圖,含效果圖
占地:130平方米
150平米簡單大方的三層農村自建房設計圖,坡層頂,色彩鮮明,布
占地:150平方米
自建一層三合院別墅圖,雅致鄉村居造價經濟,南北通透更宜居!
占地:176.36平方米
歐式二層農村別墅設計圖,140平方米戶型方正的好方案
占地:142.51平方米
135平方米新農村三層別墅設計圖紙,外觀效果圖很漂亮
占地:134平方米
面寬20米四開間二層別墅,火爆全村的戶型,美好生活的起點
占地:245.73平方米
2026最新款獨棟中西雙餐廳三層別墅設計圖,精巧實用好看不貴
占地:226.12平方米
方正對稱二層農村自建別墅施工圖,經濟實用舒適大氣
占地:129.6平方米
回村蓋一層養老房別墅設計圖紙,面寬16米四開間戶型圖
占地:127平方米左右
新中式三層別墅設計圖紙(含效果圖),110平農村自建房施工圖推
占地:110平方米
三層平頂現代別墅設計圖,實用不花冤枉錢,建好倍有面子
占地:113.02平方米
200平方農村三層別墅房屋設計圖及效果圖,大戶型精選
占地:200平方米
農村13萬元二層小樓圖,簡單易建,造價低
占地:110平方米
推薦:10套新農村自建房設計圖,2026年最新設計
閱讀次數:4825737次
100套鄉村別墅圖片大全,2026年最新設計
閱讀次數:2492203次
6款農村蓋一層平房的設計圖,10萬元就能建起來
閱讀次數:1852637次
這11個一層農村自建房別墅火爆了朋友圈!我最喜歡戶型十!你呢
閱讀次數:750268次
農村6萬元建一層小別墅圖,你敢相信嗎
閱讀次數:567686次
農村5萬塊就能自建房,6套普通房子設計圖分享,你沒看錯!
閱讀次數:419410次
8套農村漂亮三間平房圖片,非常適合在農村修建!
閱讀次數:411197次
農村自建房化糞池怎么做?附方案及施工過程
閱讀次數:391783次
農村一層三間平房設計圖,告別土氣養老房,讓人忍不住點贊
閱讀次數:350581次
新農村二層樓房圖片造價12萬,挑一套回家建房吧!
閱讀次數:349126次
