
|
農村別墅要想建的實用,建的好看,圖紙是一定不能少的,有了好的圖紙,才能蓋出好的房子。 社會的發展促使了人們不得不努力賺錢養家,買房子,買車,老百姓的壓力變得無比巨大。想在城里買房子,那房價的壓力簡直讓一些人們感到恐懼,但是回鄉修房子就不一樣了,找個設計師設計一張圖紙,能夠完美的把自己心中所想展現出來,按設計圖去建房子,不但漂亮還很實惠,實用,這才是理想中的房子。 建筑參數: 占地尺寸:12.7米×9.8米 占地面積:125平方米 建筑面積:400平方米 建筑結構:磚混結構 層數:4層 主體預算:45萬
咱農村建房一般不需要多么復雜,簡單實用漂亮就行了,太復雜了對施工隊水平要求也高,農村施工隊不一定能做出來,這個戶型就比較簡單,沒有施工難度,但是簡單并不意味著不漂亮不實用,首先第一眼看上去非常亮眼,其次大露臺陽光房等也比較適合農村需要,光線也通透,值得借鑒!
一層設客廳、餐廳、廚房、衛生間、3臥室。這個布局相比以往的設計有所不同,客廳放在北面,餐廳放在進門口,而且旁邊就是廁所,不得不說,這個設計是不妥當的,但是考慮到業主的地理位置和臥室數量要求,也只能作這樣布局,其實最好的辦法是把客廳置于廚房位置,餐廳置于客廳位置,而廚房放在西北面的臥室處。這樣一來雖然少一個臥室,但卻更加合理實用。
二層設客廳、休閑區、衛生間、4臥室。由于業主對臥室數量要求比較多,所以功能設計比較單一,可根據自身要求調整。
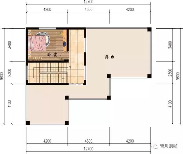
三層設大露臺、3臥室、客廳、衛生間。大露臺可供休閑娛樂,養養花草什么的。
四層設大露臺、臥室。如非必要,臥室可改成雜物間,畢竟沒有坡屋頂,是太適合居住。大露臺可以晾曬衣物、農作物等。 裝修參考: 客廳:
臥室:
衛生間: ![]() 圖紙之家-專注農村別墅/自建房設計18年,集合國內200余位經驗豐富的設計師,被評為口碑最好的農村建筑設計公司! |

帶土灶房一層四開間別墅設計方案,溫馨舒適的雅舍
占地:164.34平方米
超實用的農村一層別墅設計圖,經濟實惠養老自住都不錯,
占地:128.35平方米
120平方房子設計圖帶效果圖,農村自建房戶型推薦
占地:120平方米
三層新農村自建小型別墅設計圖及效果圖,三間三層樓房戶型
占地:114平方米
農村四間一層房屋設計圖,160平方米,用來養老正合適!
占地:160平方米
高顏值又實用的一層雙拼鄉村別墅設計圖,舒適度堪比豪宅
占地:217.3平方米
農村二層半房子設計圖 ,占地110平米和160多平兩個戶型圖
占地:多種戶型
一層4間自建平房別墅及全套戶型圖紙,占地160平左右,簡單實用
占地:162.13平方米
農村兄弟合建一層雙拼房別墅圖,對稱設計,工整大方!
占地:170平方米
農村18萬元二層小樓圖,占地120平面,戶型緊湊合理
占地:120平方米
二層帶架空層的農村別墅設計圖,功能齊全,超越十里八村
占地:130平方米
鄉下三層大氣房子設計圖,外觀挺高大上的,主體29萬多
占地:132.48平方米
農村宅基地建房二層別墅設計圖,適合回鄉自建!
占地:137.5平方米
農村一層中式三合院別墅設計圖,戶型經典實用,19米乘15米
占地:243.21平方米
農村三間一層別墅設計圖,經濟實用還好看
占地:139.56平方米
帶車庫,帶露臺的三層復式樓房設計圖,新農村房屋方案推薦
占地:140平方米
新農村二層小別墅全套設計圖紙(含外觀效果圖)
占地:85.6平方米
125平自建房設計圖二層戶型,建房選這款準沒錯
占地:124.04平方米
精致時尚一層雙拼別墅設計圖,造價實惠,起居互不打擾
占地:369.54平方米
2026戶型方正三層農村小別墅設計圖紙(含外觀圖片)
占地:150平方米
推薦:10套新農村自建房設計圖,2026年最新設計
閱讀次數:4825737次
100套鄉村別墅圖片大全,2026年最新設計
閱讀次數:2492203次
6款農村蓋一層平房的設計圖,10萬元就能建起來
閱讀次數:1852637次
這11個一層農村自建房別墅火爆了朋友圈!我最喜歡戶型十!你呢
閱讀次數:750268次
農村6萬元建一層小別墅圖,你敢相信嗎
閱讀次數:567686次
農村5萬塊就能自建房,6套普通房子設計圖分享,你沒看錯!
閱讀次數:419410次
8套農村漂亮三間平房圖片,非常適合在農村修建!
閱讀次數:411197次
農村自建房化糞池怎么做?附方案及施工過程
閱讀次數:391783次
農村一層三間平房設計圖,告別土氣養老房,讓人忍不住點贊
閱讀次數:350581次
新農村二層樓房圖片造價12萬,挑一套回家建房吧!
閱讀次數:349126次
