
|
現在農村建房子有很多講究,不但要求外觀精致漂亮,布局上也要符合農村風俗和生活習慣,這樣的戶型才是老百姓心中最理想的住房,下面小編為大家推薦2款歐式風格農村房屋設計圖。 【戶型1】
本套農村房屋設計圖開間進深9.3米×7.5米,占地面積75.08平方米,建筑面積150.16平方米,房屋高度8.83米,采用框架結構,主體造價20萬。這戶型設計很簡單,從設計上降低施工難度,造價不高。一層設有2廳1臥1衛1廚1雜物間,二層設有1廳3臥1衛1陽臺。 戶型1室內布局
一層功能設計:玄關7.85㎡、客廳14.82㎡、廚房4.74㎡、餐廳6.82㎡、雜物間3.65㎡、臥室10.11㎡、衛生間2.61㎡
二層功能設計:小廳6.82㎡(帶陽臺2.99㎡)、臥室9.67㎡、臥室11.57㎡、臥室10.11㎡、公衛3.02㎡ 【戶型2】
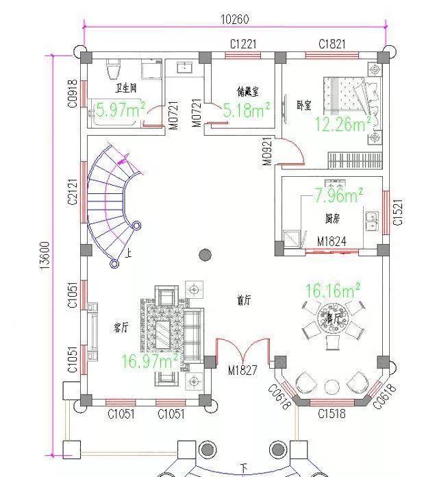
本套農村房屋設計圖開間進深10.26×13.6米,占地面積122㎡,總建筑面積222㎡,采用框架結構,主體造價25萬左右。這是一款歐式風格農村別墅設計圖,設有外走廊,還有大氣的羅馬柱,美觀通透的超大落地窗,黃色外墻與藍色屋頂搭配美給人以大氣與雅致,著實驚艷。 戶型2室內布局
一層功能設計:前廳、挑空客廳16.97㎡、餐廳16.16㎡、儲藏室5.18㎡、臥室12.26㎡、廚房7.96㎡、衛生間5.97㎡
二層功能設計:起居室7.74㎡、臥室15(帶陽臺3.83㎡)、臥室12.67㎡、衛生間8.99㎡ 圖紙之家-專注農村別墅/自建房設計18年,集合國內200余位經驗豐富的設計師,被評為口碑最好的農村建筑設計公司! |

140平方米一層歐式新農村平房設計圖,主體造價僅11萬
占地:141.218平方米
美式風格鄉村兩層小別墅自建房設計圖,外觀圖好看
占地:150平方米
簡潔大氣140平方三層房子設計圖,帶車庫戶型極佳
占地:140平方米
農村15萬元一層半小樓圖,最新的戶型設計
占地:182.31平方米
160平方米三層帶大露臺的復式別墅設計圖紙
占地:155平方米
最美建筑四合院別墅設計方案,大氣經典,開間19米
占地:168.61平方米
160平米三層別墅設計圖,功能齊全,外觀漂亮,適合和父母同住
占地:160平方米
三層三間別墅設計圖方案,含外觀圖片,自建推薦
占地:125平方米
三層樓房設計圖紙含效果圖,外觀造型高低錯落,別致大方
占地:152.4平方米
新農村共用堂屋和樓梯的雙拼別墅設計圖紙,戶型布局空間利用率
占地:207平方米左右
占地70平米一層小戶型別墅設計圖,功能齊全造價低,耐看實用
占地:70.19平方米
三層別墅40萬左右氣派的外觀效果圖,含全套施工設計圖
占地:161.46平方米
農村三層樓房設計圖及效果圖,復式磚混結構
占地:148平方米
農村二層樓簡單大氣的樓房設計圖紙,帶車庫,帶露臺
占地:150平方米
四層農村別墅設計圖,一二層都有廚房和餐廳的戶型方案
占地:128.52平方米
125平方米新農村三層自建別墅施工設計圖,13x10米
占地:125平方米
16米X12米四開間二層別墅設計圖,造型美觀經濟實用
占地:198平方米
26萬二層平頂別墅樓設計圖,客廳中空,占地120平米
占地:120平方米
鄉下建房一層半戶型圖,占地160平米,帶閣樓
占地:多種戶型
農村一層中式三合院別墅戶型圖,這才是適合中國人建的好房子
占地:218.77平方米
推薦:10套新農村自建房設計圖,2026年最新設計
閱讀次數:4825737次
100套鄉村別墅圖片大全,2026年最新設計
閱讀次數:2492203次
6款農村蓋一層平房的設計圖,10萬元就能建起來
閱讀次數:1852637次
這11個一層農村自建房別墅火爆了朋友圈!我最喜歡戶型十!你呢
閱讀次數:750268次
農村6萬元建一層小別墅圖,你敢相信嗎
閱讀次數:567686次
農村5萬塊就能自建房,6套普通房子設計圖分享,你沒看錯!
閱讀次數:419410次
8套農村漂亮三間平房圖片,非常適合在農村修建!
閱讀次數:411197次
農村自建房化糞池怎么做?附方案及施工過程
閱讀次數:391783次
農村一層三間平房設計圖,告別土氣養老房,讓人忍不住點贊
閱讀次數:350581次
新農村二層樓房圖片造價12萬,挑一套回家建房吧!
閱讀次數:349126次
