
|
擁有一棟自己建的農村別墅,是很多農村人奮斗一輩子的夢想,但是并不是每個農村人都能建得起別墅的,大多數的農村還處于溫保水平,建房更要考慮到經濟實用。今天這7款小戶型農村別墅,外觀比較樸素,造價更是親民,而且戶型都很好,很適合農村。 戶型一
三層半的農村建房圖,一層為公用空間,堂屋,車庫,廚房和餐廳,衛生間設在樓梯間下,實用又節省空間。戶型開間8米,進深11.2米,面積不大。二層和三層的布局一樣,三室二廳一衛,樓梯間是獨立的,有兄弟的家族也以一人一層。頂樓的半層設計有衛生間和曬臺。
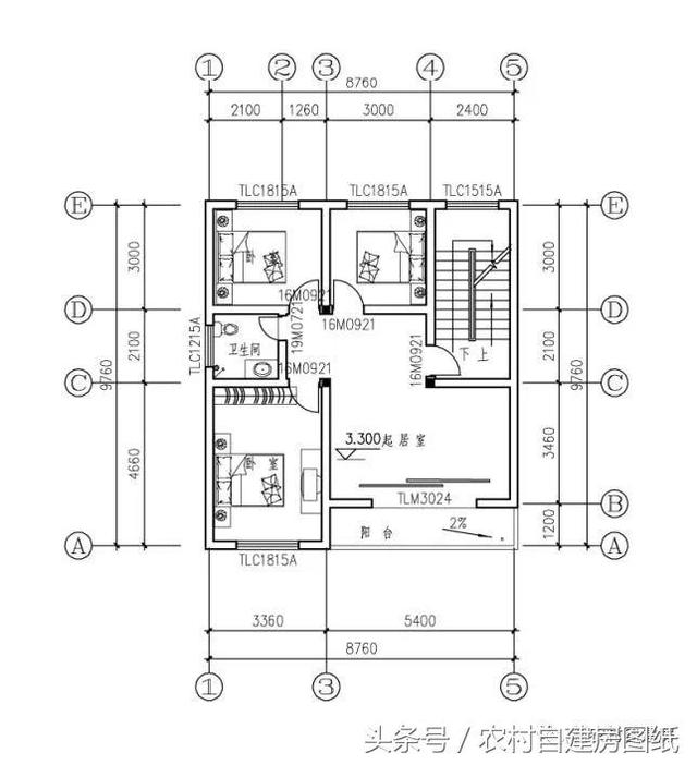
戶型二
比較傳統的農村自建房風格,開間8.76米,進深9.76米,面積適中,功能很實用,一層有2間臥室,廚房有后門可通后院,樓梯間比較獨立,雖然占地面積較小,但三層的建筑面積,足已容得下農村大家族一起居住。
戶型三
這是一款樸素的三層農村自建房,占地90平方米,開間7.76米,進深11.4米,適合狹長形的地基,造價便宜,施工簡單,很適合農村。一層客廳帶堂屋,廚房、臥室和衛生間,堂屋也可以作餐廳,實用性很強。
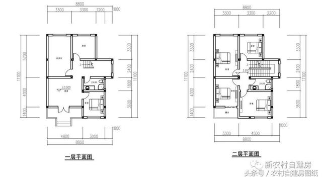
戶型四
現代二層農村小別墅,開間8.8米,進深11.1米。一層設計有堂屋、農具間可以作車庫,另有廚房和衛生間,樓梯間可作雜屋間,二層設計有4間臥室和1個衛生間,屋頂是閣樓和露臺。
戶型五
這是一款獨特的徽派風格的二層上別墅,屋頂上的馬頭墻保留著徽派建筑的精髓,把中式的唯美,簡約都一一呈現。戶型開間7.8米,進深10.9米,一層設計有堂屋、廚房、餐廳、臥室和衛生間,二層也設計有3間臥室,閣樓上設計有露臺,觀景娛樂皆完美。
戶型六
這款外觀沒有過多的造型,但是很精致,普通的瓷磚,藍色的屋面瓦,不是每一眼就讓人驚艷,但卻有獨特的魅力。戶型開間比較小,只有7.8米,進深11.2米,占地面積89平方米,雖然占地小,但是功能齊用,堂屋客廳都有,3層可設計8間臥室,屋頂還帶有露臺,實用又方便。
戶型七
這款戶型開間7.7米,進深11米,可建獨棟也可以兄弟合建成雙拼。戶型簡單大氣,很耐看不容易過時,造型也很簡單,施工難度不大,單戶造價20萬左右,開間有15.64米就可以建雙拼別墅。
圖紙之家-專注農村別墅/自建房設計18年,集合國內200余位經驗豐富的設計師,被評為口碑最好的農村建筑設計公司! |

美爆的三層經典復式別墅設計圖紙及效果圖,建好更漂亮
占地:130平方米左右
南方新農村三層樓房設計圖紙,帶房屋效果圖
占地:110平方米
西班牙風格農村二層樓房設計圖及效果圖,實用美觀
占地:170平方米
160平方米農村三層小別墅設計圖紙,13.8x12.7米
占地:163平方米
普通簡單的平屋頂二層房子設計,造價低施工簡單
占地:151.04平方米
農村大戶型中式二層四合院別墅設計圖含外觀效果圖,戶型經典、
占地:464平方米
農村仿古四合院設計圖自建房,外觀中式古樸典雅
占地:378平方米
五間二層別墅設計圖紙,樓梯設計的無比大氣
占地:300平方米
二層新中式小別墅設計圖紙,舒適實用,16米乘12米
占地:189.88平方米
二層新農村自建房設計圖,帶外觀效果圖
占地:140平方米
中國最美的四合院別墅設計圖方案,復式挑空客廳戶型
占地:343.57平方米
超漂亮的二層別墅設計圖,外觀對稱設計,建好很大氣
占地:255平方米
奢華歐式二層樓房設計圖,入戶設有玄關,一層大窗設計
占地:190平方米
農村二層半別墅圖片大全,二層半別墅設計圖推薦
占地:160平方米
鄉村簡約經濟型二層別墅設計圖紙(效果圖+全套施工方案)
占地:145平方米
現代二層樓房圖片造價25萬,含全套設計圖,風格獨特
占地:多戶型可選
預算30萬左右的新農村三層房屋設計圖推薦,含外觀效果圖
占地:117平方米
農村二層小別墅自建房屋設計圖,客廳中空,占地150平米
占地:150平方米
極簡大氣二層別墅設計圖,15米面寬,簡約大氣,年輕人的最愛!
占地:150平方米
農村二層住宅別墅設計圖,貼心實用,12.8米乘14.5米
占地:156.16平方米
推薦:10套新農村自建房設計圖,2026年最新設計
閱讀次數:4825737次
100套鄉村別墅圖片大全,2026年最新設計
閱讀次數:2492203次
6款農村蓋一層平房的設計圖,10萬元就能建起來
閱讀次數:1852637次
這11個一層農村自建房別墅火爆了朋友圈!我最喜歡戶型十!你呢
閱讀次數:750268次
農村6萬元建一層小別墅圖,你敢相信嗎
閱讀次數:567686次
農村5萬塊就能自建房,6套普通房子設計圖分享,你沒看錯!
閱讀次數:419410次
8套農村漂亮三間平房圖片,非常適合在農村修建!
閱讀次數:411197次
農村自建房化糞池怎么做?附方案及施工過程
閱讀次數:391783次
農村一層三間平房設計圖,告別土氣養老房,讓人忍不住點贊
閱讀次數:350581次
新農村二層樓房圖片造價12萬,挑一套回家建房吧!
閱讀次數:349126次
