
|
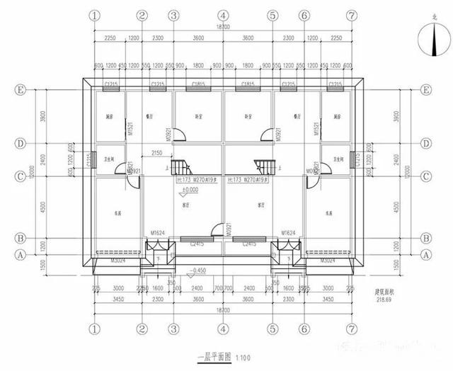
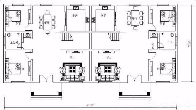
如今在農村自建房中,家里有兄弟姐妹多的人,都習慣愿意建兄弟房,不僅漂亮實用,兄弟一起建還能節省時間,節省造價,何樂不為,更何況,如果把別墅建成下面這6款這樣,不管走到哪,都面子十足。有二層實用的,也有三層豪華大氣的,帶車庫的,帶地下室的都有。 戶型一
功能設計: 一層:2個客廳、2個廚房、2個公衛、2個餐廳、2個老人房; 二層:2個主臥室、2個客廳上空、2個公衛、2個臥室、2個主衛、陽臺;閣樓:閣樓。
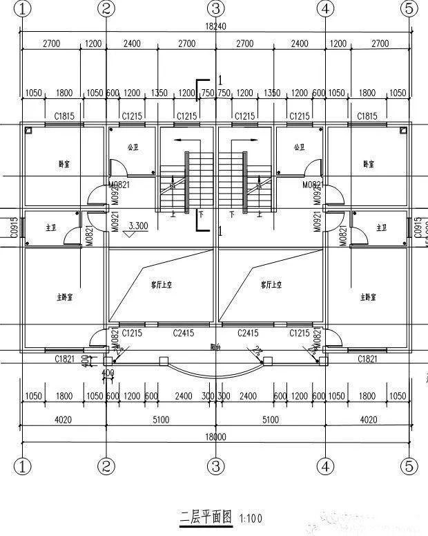
戶型二
戶型開間16.2米,進深10.76米,占地面積174平方米,主體造價28萬左右。
功能設計: 一層設計有堂屋、客廳、臥室、廚房、餐廳、衛生間; 二層設計有3臥室、2衛生間、書房、棋牌室;閣樓既可以臥室又可以做儲藏室。 戶型三
設計功能: 一層:車庫、客廳、衛生間、臥室、餐廳、廚房; 二層:露臺、主臥室、2間臥室、起居室、衛生間。
效果圖2
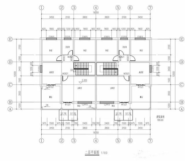
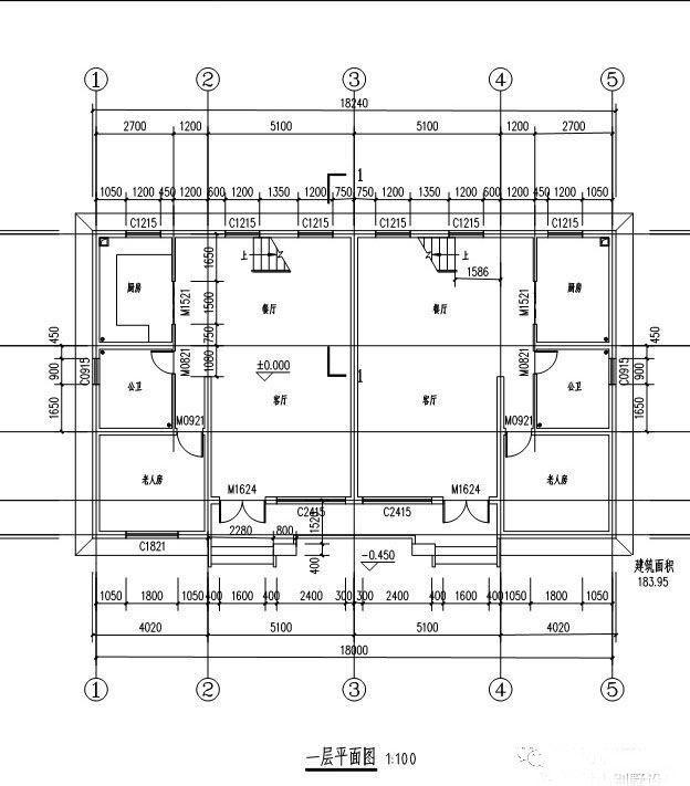
戶型四
開間:22.8米,進深:10.2米,占地面積:239.66平方米,建筑面積:599.15平方米;
功能設計:一 層:客廳、2臥室、廚房、餐廳、衛生間 二 層:客廳(附陽臺)、臥室(附陽臺)、3臥室、書房、衛生間 戶型五
開間18米,進深11.5米,占地面積214.14平方米,建筑面積531.58平方米。
功能設計:一層設計有客廳、臥室、廚房、餐廳、儲藏室、衛生間; 二層設計有客廳(附陽臺)、2臥室、衛生間; 三層設計有2臥室、衛生間、露臺。 圖紙之家-專注農村別墅/自建房設計18年,集合國內200余位經驗豐富的設計師,被評為口碑最好的農村建筑設計公司! |

260平方米兩層帶車庫四合院房屋設計圖紙及效果圖
占地:260平方米
經濟、不張揚!簡單二層別墅設計圖,農村建房直接抄作業
占地:198.58平方米
農村二層中式戶型設計圖,造型古香古色,建好絕對是地標
占地:245.39平方米
面寬12米新中式三層別墅設計圖,回家建房就選它,全家人都愛的
占地:180平方米
南方北方新農村房屋設計圖紙(含效果圖),三層住宅設計圖紙
占地:164平方米
農村帶地下室二層半自建房屋設計圖,樓中樓設計,歐式風格
占地:140平方米
二層美式花園洋房設計圖,帶堂屋戶型,外觀簡直美爆了
占地:159.32平方米
農村四層樓房設計圖及外觀效果圖,造價60萬左右
占地:163.84平方米
12米乘9米占地百平一層平房戶型設計圖,布局寬敞大氣又舒適
占地:108平方米
漂亮的二層中式現代別墅圖,配色非常的溫馨淡雅
占地:160平方米
最新12x9米一層平房別墅設計圖,好看不貴居住舒適!
占地:108平方米
鄉村簡約經濟型二層別墅設計圖紙(效果圖+全套施工方案)
占地:145平方米
簡簡單單一層農村自建別墅方案,布局緊湊又不擁擠
占地:133.55平方米
最漂亮的農村二層小樓設計圖紙,簡約又大氣時尚
占地:120平方米
農村30萬別墅款式三層設計圖紙,帶地下儲藏室,挑空客廳
占地:110平方米
帶露臺陽光房二層建房別墅設計圖,13米乘12米,享受農村悠然慢
占地:143.54平方米
農村2026新式三間二層樓房,12×11.6米,戶型經典,造價實惠
占地:120平方米
農村二層小別墅自建房屋設計圖,客廳中空,占地150平米
占地:150平方米
別致漂亮二層別墅設計圖紙,占地160平米左右,精致的外觀,讓人
占地:160平方米
二層帶地下室樓房設計方案,效果圖+全套施工圖
占地:160平方米
推薦:10套新農村自建房設計圖,2026年最新設計
閱讀次數:4825737次
100套鄉村別墅圖片大全,2026年最新設計
閱讀次數:2492203次
6款農村蓋一層平房的設計圖,10萬元就能建起來
閱讀次數:1852637次
這11個一層農村自建房別墅火爆了朋友圈!我最喜歡戶型十!你呢
閱讀次數:750268次
農村6萬元建一層小別墅圖,你敢相信嗎
閱讀次數:567686次
農村5萬塊就能自建房,6套普通房子設計圖分享,你沒看錯!
閱讀次數:419410次
8套農村漂亮三間平房圖片,非常適合在農村修建!
閱讀次數:411197次
農村自建房化糞池怎么做?附方案及施工過程
閱讀次數:391783次
農村一層三間平房設計圖,告別土氣養老房,讓人忍不住點贊
閱讀次數:350581次
新農村二層樓房圖片造價12萬,挑一套回家建房吧!
閱讀次數:349126次
