
|
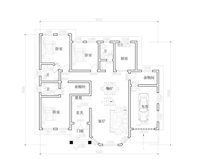
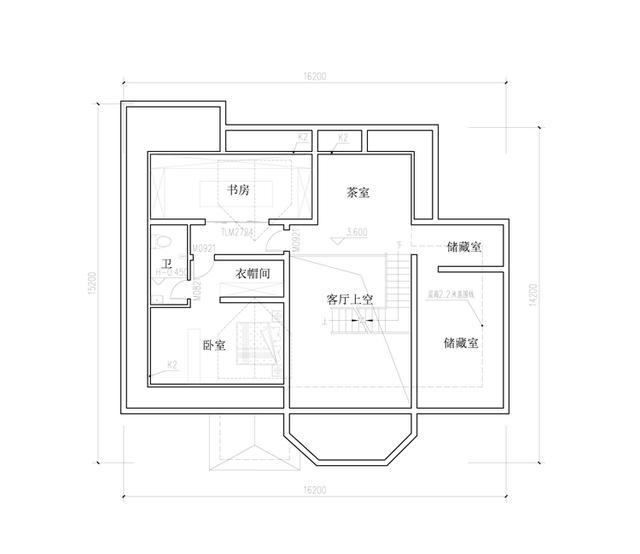
本套農村房屋設計圖帶有閣樓層,共兩層,開間進深16.2米×15.2米,首層占地面積202㎡,建筑面積327㎡。一層設有2廳2臥3衛1雜物間1車庫,二層設有1臥1茶室1衛2儲藏室1書房。
戶型設計亮點:
室內布局展示
一層:玄關、車庫、挑空客廳、餐廳、臥室(帶衣帽間、衛生間)、臥室(帶衛生間)、臥室、廚房、衛生間、雜物間
二層:臥室(帶衣帽間、衛生間、書房)、儲藏室×2、茶室 圖紙之家-專注農村別墅/自建房設計18年,集合國內200余位經驗豐富的設計師,被評為口碑最好的農村建筑設計公司! |

大平方大面積別墅設計方案圖,樓中樓客廳中空
占地:247平方米
農村四間三層豪華別墅設計方案圖,造型輕奢雅致
占地:200平方米
四開間兩層別墅設計圖,農村自建住著舒適的好方案!
占地:187.04平方米
210平左右三層(兩層半)雙拼新農村別墅設計圖紙及外觀效果圖
占地:206.712平方米
新農村雙拼別墅全套設計圖方案及效果圖,餐廳廚房獨立設計
占地:338.02平方米
簡單質樸三層新農村小別墅設計圖紙,別墅圖片,戶型簡單合理實
占地:120平方米
農村三間三層豪宅設計圖,自建別墅推薦戶型,帶地下室
占地:170平方米
2026年簡單實用二層農村別墅,經典大氣真的香
占地:165.98平方米
140平歐式二層半帶露臺的獨棟別墅圖片,含全套設計圖
占地:140平方米
新農村帶陽臺三層樓房圖紙,占地180平米左右,豪華大氣
占地:180平方米
150平米簡單大方的三層農村自建房設計圖,坡層頂,色彩鮮明,布
占地:150平方米
農村自建一層房子設計圖,大開間小進深,20米x10米
占地:188平方米
130-140平方米簡歐風格二層別墅設計施工圖紙,簡約大氣
占地:137平方米左右
150平米田園風格二層別墅設計圖紙,沉穩大氣有內涵
占地:150平方米
農村兩層新中式自建房屋設計圖,受歡迎的帶小配房戶型
占地:多戶型可選
二層雙拼別墅外觀效果圖及施工圖,帶露臺,14乘12米
占地:168平方米
210平米新農村自建二層施工圖紙,預留電梯位,美觀大氣舒適實用
占地:208.5平方米
帶配房的二層鄉村歐式別墅設計圖,尺寸15.84×13.84米
占地:149.19平方米
150平方米農村二層磚混結構別墅施工建筑設計圖,平頂設計
占地:150平方米
230平方農村雙拼別墅設計圖,26x11米自建房屋戶型
占地:230平方米
推薦:10套新農村自建房設計圖,2026年最新設計
閱讀次數:4825737次
100套鄉村別墅圖片大全,2026年最新設計
閱讀次數:2492203次
6款農村蓋一層平房的設計圖,10萬元就能建起來
閱讀次數:1852637次
這11個一層農村自建房別墅火爆了朋友圈!我最喜歡戶型十!你呢
閱讀次數:750268次
農村6萬元建一層小別墅圖,你敢相信嗎
閱讀次數:567686次
農村5萬塊就能自建房,6套普通房子設計圖分享,你沒看錯!
閱讀次數:419410次
8套農村漂亮三間平房圖片,非常適合在農村修建!
閱讀次數:411197次
農村自建房化糞池怎么做?附方案及施工過程
閱讀次數:391783次
農村一層三間平房設計圖,告別土氣養老房,讓人忍不住點贊
閱讀次數:350581次
新農村二層樓房圖片造價12萬,挑一套回家建房吧!
閱讀次數:349126次
