
|
農村很常見的就是開間12米左右的宅基地,而且大家都喜歡二三層小別墅,比較經濟實用,而且蓋個房建個小院子,這樣在院子里種些蔬菜花草,再養上幾只禽畜,下面推薦的這兩款農村三層小別墅,氣派又實用,真的美出新高度。 農村別墅一: 基本信息 占地尺寸:12.42X13米 占地面積:156.76平方米 建筑面積:504.12平方米 結構類型:磚混結構 毛坯造價:40萬左右
一層設有客廳、娛樂室、廚房、餐廳、臥室、2衛生間。進門處可自行隔斷成玄關、門廳或堂屋,左手邊的娛樂室安靜無打擾,廚房與餐廳相鄰,餐廳又屬于大空間,方便加桌,主臥內設衛生間,作為老人房十分方便。
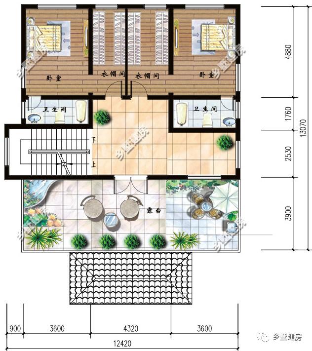
二層設有2臥室、2衣帽間、客廳、陽臺。二層的設計十分簡潔,兩間主臥相對而立,大小功能都相同,內都設了衣帽間與獨立衛生間,挑空客廳的設計時尚又大氣,通光采光而且還開闊了視野。
三層設有2臥室、2衣帽間、2衛生間、露臺。居住區域與二層相同,把客廳與挑空的區域改為了大露臺,而露臺前有一小片區域可以改為開放式書房或茶室。
農村別墅二: 基本信息 占地尺寸:12.2X13.5米 占地面積:146平方米 建筑面積:433平方米 結構類型:磚混結構 層高:12.4米 毛坯造價:35萬左右
一層設有玄關、客廳、3臥室、2衛生間、廚房、餐廳。進門便是玄關,左手邊的主臥可作為老人房,內設衛生間,對老人腿腳好,上階梯便是廚房與餐廳的位置,餐廳的位置較寬闊,可加桌,兩間次臥離主衛較近,可作客房也可作棋牌室等娛樂區域。
二層設有5臥室、2衛生間、休閑區、客廳、3陽臺。二層的設計就十分簡潔明了,主要是臥室為主,5間臥室對于一般家庭來說也夠了,當然,也可以根據需要,改一些衣帽間書房等功能區域。
三層設有客廳、4臥室、2衛生間、2陽臺。三層的設計也十分簡潔,客廳與陽臺相連,小陽臺可作秘密會談,每層的臥室數量都很可觀,對于農村多人口家庭來說,很方便。
你們喜歡嗎? 圖紙之家-專注農村別墅/自建房設計18年,集合國內200余位經驗豐富的設計師,被評為口碑最好的農村建筑設計公司! |

農村養老房還是一層好,帶閣樓的一層房子設計圖
占地:135平方米
12×12米農村二層經濟型自建房設計圖,設計了6間臥室
占地:140平方米
15萬左右一層農村自建房設計圖,一家住剛剛好
占地:131.33平方米
經典二層農村自建房屋別墅設計圖紙,占地110平米左右
占地:110平方米
面寬20多米二層新中式雙拼別墅設計圖,外觀漂亮時尚
占地:246.66平方米左
經濟型實用歐式一層小樓房別墅平房設計圖,11X10米
占地:103平方米
新古典中式風格別墅設計圖,全套施工圖+效果圖
占地:188平方米
16x14米三層雙拼別墅設計圖,外觀精致大氣內里實用,兄弟建房上
占地:217.28平方米
時尚一層別墅圖,一層這樣蓋房最漂亮
占地:160平方米
10萬農村別墅設計圖小戶型,經濟、耐看、實用
占地:多種戶型
鄉村典型自建房中式二層四合院別墅設計圖,左右對稱設計
占地:430平方米
人字坡紅磚一層別墅設計圖,簡約低調超實用,這樣的房子人人能
占地:136.51平方米
二層歐式別墅設計圖,挑空客廳+柴火灶,12.5米乘12米
占地:131.25平方米
大氣、簡約三層雙拼別墅設計圖,適合和父母同住,既相互關照又
占地:260平方米
二層農村兄弟雙拼別墅設計圖,一墻之隔互不干擾,鄰居看了都喜
占地:164.24平方米
簡單時尚二層住宅設計圖紙,簡單的設計,不平凡的視覺感受
占地:110平方米
高端歐式四層別墅房屋施工圖紙及效果圖,圓弧大窗
占地:170平方米
12.8x10米二層自建房別墅設計圖,大氣美觀實用,建造無憂
占地:128平方米
10米×13米最好看的農村三層樓房圖,客廳中空
占地:124平方米
大開間小進深的一層別墅設計圖,進深僅8.7米,獨立餐廚照樣美觀
占地:130.32平方米
推薦:10套新農村自建房設計圖,2026年最新設計
閱讀次數:4825737次
100套鄉村別墅圖片大全,2026年最新設計
閱讀次數:2492203次
6款農村蓋一層平房的設計圖,10萬元就能建起來
閱讀次數:1852637次
這11個一層農村自建房別墅火爆了朋友圈!我最喜歡戶型十!你呢
閱讀次數:750268次
農村6萬元建一層小別墅圖,你敢相信嗎
閱讀次數:567686次
農村5萬塊就能自建房,6套普通房子設計圖分享,你沒看錯!
閱讀次數:419410次
8套農村漂亮三間平房圖片,非常適合在農村修建!
閱讀次數:411197次
農村自建房化糞池怎么做?附方案及施工過程
閱讀次數:391783次
農村一層三間平房設計圖,告別土氣養老房,讓人忍不住點贊
閱讀次數:350581次
新農村二層樓房圖片造價12萬,挑一套回家建房吧!
閱讀次數:349126次
