
|
農村自建房近年發展火熱,新建起來的別墅層出不窮,這估計跟今年的農村土地政策是有關的,所以很多人都把這個計劃提前了,說到農村自建房,應該很多人都有非常多的苦惱,就是希望建一款時尚大方適合農村居住的,那到底什么樣的農村別墅適合?
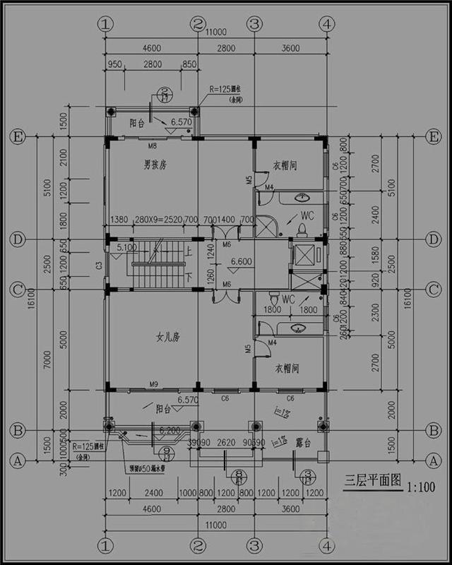
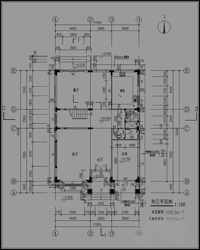
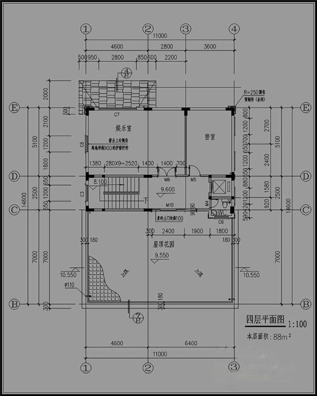
本戶型清新自然,融入了拱形元素,還有黑色的鐵藝欄桿,以及白色的石柱,紫色屋頂,黃色和白色外墻,整體結構美觀漂亮,讓人眼前一亮。 建筑占地面積為:11m*16.1m; 建筑層數:三層半(四層); 建筑高度:14.5m(含屋頂);坡屋頂; 建筑結構:框架結構;
設計功能: 一層:客廳、過廳、車庫、衛生間、餐廳、廚房; 二層:老人房、陽臺、衛生間、客廳上空、主人房、陽臺、衣帽間、衛生間; 三層:露臺、女兒房、陽臺、衣帽間、衛生間、男孩房、陽臺、衣帽間、衛生間; 四層:屋頂花園、娛樂室、密室、衛生間;
圖紙之家-專注農村別墅/自建房設計18年,集合國內200余位經驗豐富的設計師,被評為口碑最好的農村建筑設計公司! |

三層獨棟別墅設計圖紙帶效果圖,全套施工方案(建筑圖+結構圖
占地:144平方米
二層復式樓房設計圖,平實接地氣的平面布局
占地:180平方米
最漂亮五間一層自建別墅設計圖,布局實用顏值高!
占地:多戶型可選
帶架空層的一層自建房太香了!防潮、停車、儲物全兼顧
占地:152.06平方米
歐式兩層別墅設計圖及歐式效果圖,造價25萬左右
占地:150平方米
新中式三層別墅,旋轉樓梯+挑空客廳,高級感拉滿
占地:125平方米
五間兩層農村自建房設計圖,大門居中真氣派,空間寬敞生活質量
占地:219.94平方米
農村2026新式好看又簡單的二層樓房設計圖,外形美觀,家用足夠
占地:200平方米
90平農村自建房二層新款,占地不大但很實用,
占地:88平方米
鄉下建房一層戶型圖及全套圖紙,養老房,還是一層好
占地:210平方米
新農村住宅設計圖集,三層房屋設計圖紙展示
占地:110平方米
170平方米歐式農村兩層小別墅設計圖紙帶外觀圖,精致好看
占地:多種戶型
面寬20米大氣的農村二層別墅設計圖,戶型帶車庫和土灶房設計
占地:250.85平方米
120平米三層30萬別墅圖片大全及全套施工圖,外觀簡潔大方
占地:120平方米
100平方米農村二層CAD設計圖紙帶外觀圖,12X8米
占地:100平方米
農村三層半自建房子效果圖及設計圖,戶型占地90平方米左右
占地:92.17平方米
新農村兩層樓房設計圖,占地110平米,戶型簡單實用
占地:110平方米
一層半房屋別墅設計圖,帶閣樓圖、帶露臺,外觀新穎時尚
占地:130平方米
新中式農村三層四合院別墅設計圖,四合院風格的別墅圖
占地:177平方米
現代風格二層別墅設計圖,外觀時尚、大氣
占地:153平方米
推薦:10套新農村自建房設計圖,2026年最新設計
閱讀次數:4825737次
100套鄉村別墅圖片大全,2026年最新設計
閱讀次數:2492203次
6款農村蓋一層平房的設計圖,10萬元就能建起來
閱讀次數:1852637次
這11個一層農村自建房別墅火爆了朋友圈!我最喜歡戶型十!你呢
閱讀次數:750268次
農村6萬元建一層小別墅圖,你敢相信嗎
閱讀次數:567686次
農村5萬塊就能自建房,6套普通房子設計圖分享,你沒看錯!
閱讀次數:419410次
8套農村漂亮三間平房圖片,非常適合在農村修建!
閱讀次數:411197次
農村自建房化糞池怎么做?附方案及施工過程
閱讀次數:391783次
農村一層三間平房設計圖,告別土氣養老房,讓人忍不住點贊
閱讀次數:350581次
新農村二層樓房圖片造價12萬,挑一套回家建房吧!
閱讀次數:349126次
