圖紙介紹:本戶型為一層帶閣樓鄉村別墅設計圖,含外觀效果圖片,外觀中式兼現代風格,房間多,滿足大家庭自建。
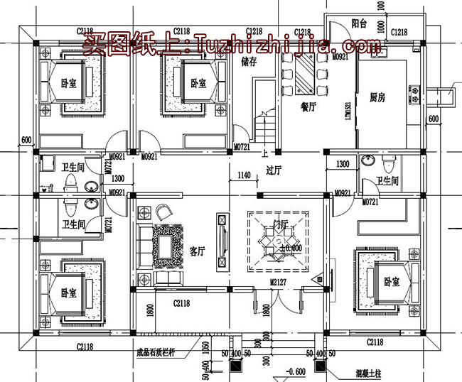
占地面積:16.0m*12.0m,190平方米左右;
建筑層高:一層半;
建筑高度:8.3米(含屋頂);
設計功能:
一層:客廳、餐廳、廚房、臥室x4(2個臥室帶衛生間)、衛生間、儲藏間;
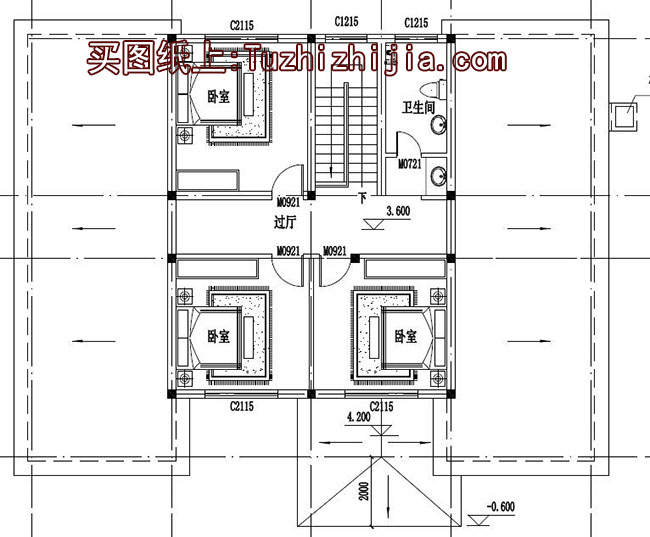
閣樓:臥室x3、衛生間;
圖紙目錄:
建筑施工圖:建筑設計說明、一層平面圖、閣樓平面圖、屋頂平面圖、立面圖x4、剖面圖、節點大樣圖、樓梯大樣圖、門窗詳圖;
結構施工圖:結構設計說明、坡屋頂做法、節點做法、基礎平面圖、地梁平面圖、一層梁平面圖、閣樓梁平面圖、一層板布筋圖、屋頂布筋圖、樓梯結構圖、屋頂折角配筋詳圖;
電氣施工圖:電氣設計說明、配電系統圖、一層照明圖、閣樓照明圖、一層插座圖、閣樓插座圖、一層弱電圖、閣樓弱電圖;
給排水施工圖:給排水設計說明、一層給排水平面圖、閣樓給排水平面圖;
本套圖紙A3設計圖+高清效果圖。





























































































