
|
146平四室兩廳裝修成北歐風格,整個裝修就花20萬,越看越值錢! 裝修亮點: 1.極簡隨意的北歐風情; 2.MUJI自然簡約的原木范; 3.以實用為主的家居布置。 戶型圖
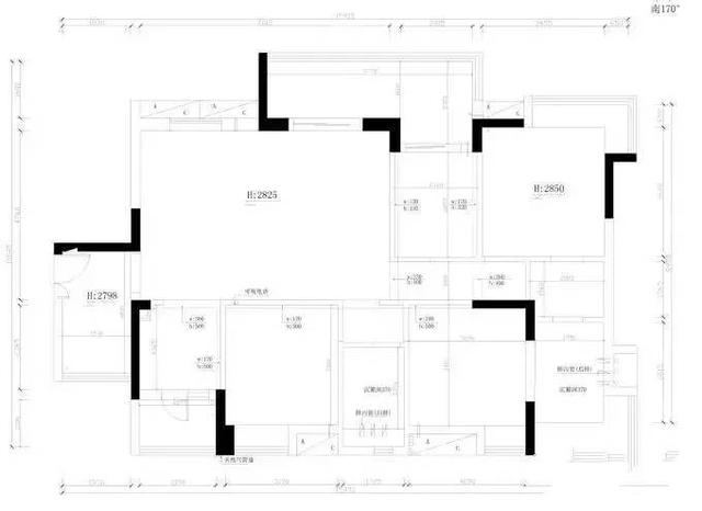
▲ 原始結構圖
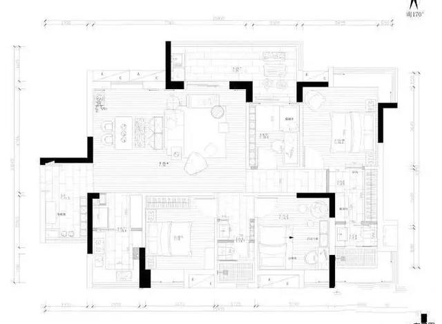
▲ 平面布置圖 最終定下來的平面布置圖,與原始結構圖的差異是北邊工作陽臺打掉了,與廚房連同,中間設置一道推拉門做了一個中西廚分區,雖然西廚只有滴滴大;公衛墻往里移了點,考慮到家里人口較多做了一個開放式的洗手臺;主衛墻往里移動,擴大了衣帽間的面積。 實景圖 按照空間順序來,首先是打開大門進去的入戶。
▲ 門簾我以為是北歐風,結果群眾們都認為是東北風的,話說上次師傅來家修柜子,修完都走了,還轉過頭來問,你們家是東北的么……真是情何以堪。
▲ 入戶,有點模糊了,晚上拍的,不是很清楚。
▲ 入戶的另外一邊,放了換鞋凳,和掛包衣服的架子。 02 客廳
▲ 效果圖 入戶過了之后,掀開東北風的門簾,就是客廳了~~
▲ 沙發和電視柜,我爹嫌棄萬分的簡陋裝飾電視墻。
▲ 黑板墻在沙發的右邊,一點沒有藝術細胞的一家人,黑板墻上全是鬼畫符><
▲ 從沙發角度看電視柜。
▲ 沒有裝茶幾的客廳,方便娃在地上滾來滾去。
▲ 話說以上都是擺拍,平時我家客廳是下面這樣的。 餐廳 下面是飯廳
▲ 飯廳在沙發的后面,換一個角度看得更清楚。
▲ 飯廳的旁邊是廚房,這樣可以看見。 下面是廚房
▲ 廚房分兩個部分,想象的很美好的中西廚分開,其實沒個卵用~~
▲ 左邊的櫥柜,放點杯子水壺什么的,右邊是冰箱和一個放零食的大柜子。
▲ 推拉門里面,是中廚,煎炸蒸煮,都在這里。
▲ 灶臺做了高低柜,方便切菜,目前使用下來感覺良好。 05 兒童房 下面是小爺的房間
▲ 小爺現在都和我睡,原本的高低床把上面的床拆到主臥去了,剩了一張床放在兒童房,來客的時候用用,所以兒童房平時就是小爺玩的
▲ 從房間的窗戶望過來,桌凳、帳篷都是宜家的。 06 老人房 下面是爹媽的房間
▲ 光線有點暗了,這是老人房的床
▲ 另一個角度,可以看到索菲亞的柜子。
▲ 飄窗鋪了墊子,平時坐著沒那么冰。
▲ 呃,老人房的電腦桌、書柜~~好吧,大家忽略墻上那幾幅色彩艷麗的畫,老爹自己淘寶買的,我只能無奈><!! 07 主臥 下面主臥
▲ 主臥用了舊房子的床,原來買的那張新床猶豫好久實在不喜歡最后搬到舊房子了。主臥擺了兩張床,什么空間都木有了。 書房
▲ 書房放了張沙發床,目前完全沒有發揮書房的功能,都是小爺的玩具。
▲ 從陽臺看書房,整面墻的柜子。 09 主衛 下面是主衛
▲ 主衛的洗手臺,馬云家買的隔板自己裝上去的,沒有做柜子,下面懸空可以放臟衣籃之類的。
▲ 從門口望過去,窗簾用了速干布,掛了兩層,要不實在沒有安全感。
▲ 主衛馬桶君 10 公衛 下面是公衛
▲ 公衛洗手臺
▲ 公衛馬桶君 轉載請注明出自別墅設計網:http://www.bjcyqiyejia.com/ 千套別墅設計帶別墅圖片 |
高端大氣三層半別墅客廳挑空設計,豪華農村自建房圖
占地:179.52平方米
帶車庫二層別墅設計圖及效果圖,帶車庫的農村二層樓房推薦
占地:123平方米
適合農村建的二層別墅設計圖,簡約美觀,讓人心動不已
占地:153平方米
最漂亮的一層平房圖片及設計圖,造價18萬左右,結構簡單易于施
占地:186平方米
140平米二層半帶露臺別墅圖片及圖紙,戶型極佳
占地:140平方米
200平農村二層別墅設計圖,外觀現代簡約
占地:204平方米
農村蓋房三層自建別墅設計圖紙,11米乘12米戶型方案
占地:132.55平方米
小戶型兄弟雙拼別墅房屋設計圖,帶外觀效果圖
占地:150平方米
最美農村一層合院設計圖紙,自建一棟火遍十里八鄉
占地:190平方米左右
三層奢華歐式別墅圖片及全套設計圖,帶地下室和車庫
占地:208平方米左右
3款挑空客廳的二層小樓房設計圖,款款漂亮
閱讀次數:48516次
立邦油漆哪個系列好?小編一一對比分析
閱讀次數:31501次
2024十大環保油漆,中國十大環保油漆排名榜
閱讀次數:11505次
手上的油漆怎么洗-快速洗掉油漆小竅門
閱讀次數:7981次
無味油漆到底對人有沒有害?真實曝光
閱讀次數:7922次
8款不同風格樓梯設計效果圖,我最喜歡第8款
閱讀次數:7024次
立邦油漆價格表,立邦油漆一般多少錢一桶?
閱讀次數:6809次
為大家分享一套兩層農村自建房裝修案例,15萬搞定裝修
閱讀次數:6111次
2024年紫荊花油漆價格一般是多少錢一桶?品牌怎么樣
閱讀次數:6012次
嘉寶莉油漆價格一般是多少錢一桶?
閱讀次數:5765次
